46 M² GARTENFLÄCHE DIREKT VOR DER TERRASSE: ERDGESCHOSSWOHNUNG IM ERSTBEZUG
Lage & Außenbereich
In Sukošan, einem beliebten Küstenort in Dalmatien, entsteht ein modernes Wohnhaus, nur 250 Meter vom Meer entfernt. Die südwestliche Ausrichtung sorgt für helle Räume und angenehme Sonnenstunden am Nachmittag. Das Umfeld ist ruhig, grün und vermittelt ein Gefühl von Leichtigkeit. Ein Ort, an dem Wohnen und Erholung selbstverständlich zusammenfinden.
Das kompakte Gebäude umfasst sechs Wohneinheiten, jeweils zwei pro Etage. Klare Linien und moderne Architektur bestimmen den Stil. Der Bau schreitet planmäßig voran, die Fertigstellung ist bis spätestens 15. März 2026 vorgesehen. Jede Wohnung verfügt über einen eigenen Parkplatz direkt vor dem Haus.
Innenraum & Interieur
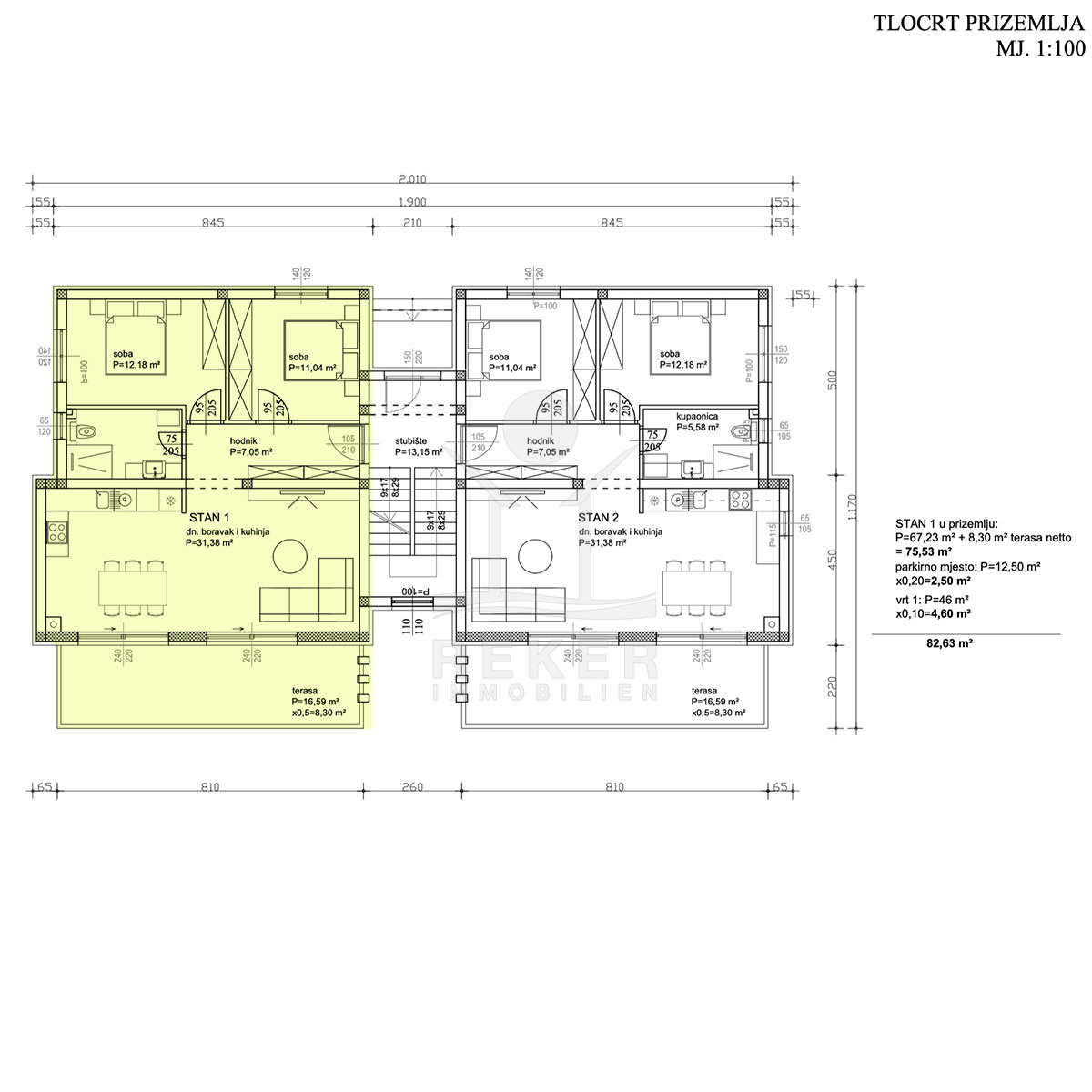
Die Wohnung im Erdgeschoss links bietet eine Wohnfläche von 67,23 m² und überzeugt mit klarer, funktionaler Raumaufteilung. Der offene Wohnbereich bildet den Mittelpunkt und verbindet Kochen, Essen und Wohnen auf einer Ebene. Zwei Schlafzimmer und ein Bad mit Fußbodenheizung ergänzen den Innenraum. Hochwertige Marazzi-Keramik, maßgefertigte Innenausbauten sowie wärmegedämmte Aluminiumfenster mit Dreifachverglasung betonen den hohen Ausstattungsstandard. Für ein angenehmes Raumklima sorgen Daikin-Inverter-Klimaanlagen in allen Räumen. Sicherheit gewährleisten eine einbruchsichere Eingangstür und eine Video-Türsprechanlage. Elektrische Rollläden unterstreichen den modernen Komfort.
An den Wohnraum schließt eine 16,59 m² große Terrasse an, die direkt in den privaten Garten mit 46 m² übergeht. Diese geschützte Außenfläche bietet ausreichend Platz für Essbereich, Sonnenliegen oder Grünbepflanzung – ein Rückzugsort mit direktem Bezug zur Natur.
Die Erdgeschosswohnung erwartet Sie in Sukošan!
- Ort: Sukošan (Gemeinde)
- Einwohnerzahl: 4.583 (2011)
- Region: Dalmatien-Zadar
- Autobahnentfernung: ca. 15 km *
- Nächster Flughafen: Zadar / ca. 11 km *
Immobiliendaten
- Objektart: Wohnung
- Objekttyp: Erdgeschosswohnung
- Baujahr: 2026
- ID: 9461
- Kaufpreis: 289.205 €
- Provision: 3,75 % inkl. MwSt. in Kroatien
- Wohnfläche: 83 m²
- Gartenfläche: 46 m²
- Anzahl Zimmer: 3
- Anzahl Schlafzimmer: 2
- Anzahl Badezimmer: 1
- Land: Kroatien
- Region: Dalmatien-Zadar
- Ort: Sukošan
- Meerentfernung: 250 m
Haben Sie Interesse die schöne Erdgeschosswohnung zu besitzen?
Nehmen Sie gerne Kontakt mit mir auf!
Ich bin Heiner Reker, Gründer und
Geschäftsführer von Reker Immobilien d.o.o. Ich begleite Sie bei Ihrer aufregenden Reise in die Welt der Immobilien in Kroatien.
Gerne organisiere ich persönlich mit meinen qualifizierten Partnern jeden Schritt bei Ihrem rechtssicheren und stressfreien Immobilienkauf in Kroatien.
Füllen Sie das Formular aus und ich melde mich gerne zum gewünschten Zeitpunkt bei Ihnen.
Bis bald
Exposé mitnehmen?
Laden Sie unser PDF-Exposé herunter und Sie haben die wichtigste Objektdaten & Bilder immer zur Hand
Exposé mitnehmen?
Nehmen Sie Kontakt mit uns auf, ein Exposé schicken wir gerne per E-Mail
Ihre Traum-Immobilie noch nicht gefunden?
Besuchen Sie diese Seiten!


















