EIN ORT, DER SIE BEGEISTERN WIRD: LUXURIÖSE 4-NEUBAU-WOHNUNG IM ERDGESCHOSS IN PRIVLAKA MIT POOL

Exklusiver Neuau nahe Zadar und dem Meer
Die Erdgeschosswohnung befindet sich in Privlaka, nur 70 Meter vom Meer entfernt. Die Wohnung ist von einer Vielzahl von Restaurants und Einkaufsmöglichkeiten umgeben und das Zentrum von Privlaka ist bequem zu Fuß zu erreichen. Eine kurze 15-minütige Autofahrt bringt Sie nach Zadar, einer Stadt mit reicher kultureller Geschichte und einem pulsierenden Ambiente. Der nahegelegene Flughafen verbindet Zadar mit vielen europäischen Zielen und macht die Region gut erreichbar. Privlaka selbst ist ein malerischer Urlaubsort an der Riviera von Zadar, umgeben von kristallklarem Wasser und kinderfreundlichen Sandstränden. Zahlreiche Sport- und Freizeitmöglichkeiten sind in der Umgebung vorhanden, darunter Rad- und Wanderwege, historische Sehenswürdigkeiten und vieles mehr. Die Wohnung liegt in einem ruhigen Teil von Privlaka und bietet einen idyllischen Rückzugsort in der Nähe aller wesentlichen Annehmlichkeiten.
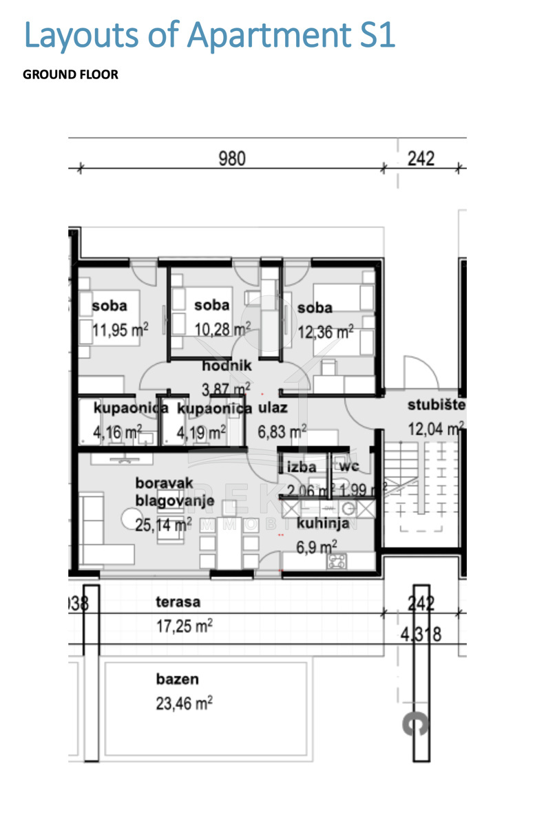
Das Apartment im Erdgeschoss bietet einen privaten Garten von 34,97 m² sowie einen exquisiten Swimmingpool von 23,46 m² für ultimative Entspannung. Das Neubaugebäude besteht aus sechs Wohneinheiten, die nur mit hochwertigsten Materialien namhafter Hersteller gebaut und ausgestattet sind. Der geplante Abschluss aller Arbeiten und der Bezug sind für den 1. Juli 2024 angesetzt. Dreifachverglasung, Sicherheitstüren, Parkettboden und Aluminium-Außenschreinerei sorgen für ein anspruchsvolles Wohnerlebnis. Zusätzlich verfügt die Wohnung über zwei Außenstellplätze von jeweils 12,50 m².
Die klimatisierte Wohnung erstreckt sich über 190 m² und bietet eine einladende Atmosphäre. Sie umfasst einen Eingangsbereich, ein geräumiges Wohnzimmer, eine offene Küche und ein Esszimmer, ein Gäste-WC, eine Speisekammer, drei Schlafzimmer, zwei Badezimmer und eine Terrasse. Genießen Sie den Komfort und die Großzügigkeit dieser modern ausgestatteten Wohnung.
Die Erdgeschosswohnung erwartet Sie in Privlaka!
- Ort: Privlaka (Stadt)
- Einwohnerzahl: 2.253 (2011)
- Region: Dalmatien-Zadar
- Autobahnentfernung: ca. 33 km *
- Nächster Flughafen: Zadar / ca. 31 km *

Immobiliendaten
- Objektart: Wohnung
- Objekttyp: Erdgeschosswohnung
- Baujahr: 2024
- ID: 6808
- Kaufpreis: 435.000 €
- Provision: 3,75 % inkl. MwSt. in Kroatien
- Wohnfläche: 190 m²
- Gartenfläche: 34 m²
- Anzahl Zimmer: 4
- Anzahl Schlafzimmer: 3
- Anzahl Badezimmer: 2
- Land: Kroatien
- Region: Dalmatien-Zadar
- Ort: Privlaka
- Meerentfernung: 70 m
- Ortsmitte: 1 km
Haben Sie Interesse die schöne Erdgeschosswohnung zu besitzen?
Nehmen Sie gerne Kontakt mit mir auf!
Ich bin Heiner Reker, Gründer und
Geschäftsführer von Reker Immobilien d.o.o. Ich begleite Sie bei Ihrer aufregenden Reise in die Welt der Immobilien in Kroatien.
Gerne organisiere ich persönlich mit meinen qualifizierten Partnern jeden Schritt bei Ihrem rechtssicheren und stressfreien Immobilienkauf in Kroatien.
Füllen Sie das Formular aus und ich melde mich gerne zum gewünschten Zeitpunkt bei Ihnen.
Bis bald

Exposé mitnehmen?
Laden Sie unser PDF-Exposé herunter und Sie haben die wichtigste Objektdaten & Bilder immer zur Hand
Exposé mitnehmen?
Nehmen Sie Kontakt mit uns auf, ein Exposé schicken wir gerne per E-Mail
Ihre Traum-Immobilie noch nicht gefunden?
Besuchen Sie diese Seiten!