SELTENE ERDGESCHOSSWOHNUNG IN POREČ: 919 M² GARTEN, POOL UND WALD DIREKT VOR DER TÜR
Lage & Außenbereich
Diese gepflegte Erdgeschosswohnung überzeugt mit einer außergewöhnlich ruhigen Wohnlage in Poreč, direkt am Waldrand. Gleichzeitig erreichen Sie das Meer nach rund 1.300 Metern. Das Stadtzentrum befindet sich ca. 2.500 Meter entfernt. Einkaufsmöglichkeiten, Schule und die städtische Infrastruktur sind bequem erreichbar. Zwei private Parkplätze stehen Ihnen direkt am Objekt zur Verfügung.
Besonders attraktiv zeigt sich der Außenbereich. Der rund 919 m² große Garten vermittelt echtes Hausgefühl und bietet viel Privatsphäre. Vom Wohnbereich aus betreten Sie die Terrasse und gelangen weiter in den Garten. Dort stehen Ihnen ein ca. 40 m² großer Swimmingpool, ein Gartenhaus und eine gepflegte Grünfläche zur Verfügung. Die Nähe zum Wald sorgt für Ruhe und einen freien Blick ins Grüne. Eine seltene Kombination in Poreč.
Innenraum & Interieur
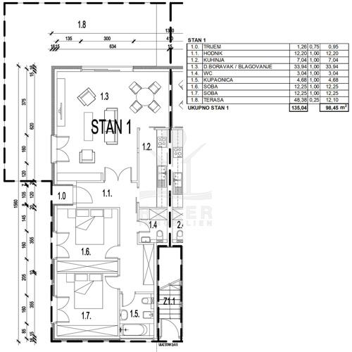
Die Wohnung bietet 98,45 m² Wohnfläche und einen separaten Eingang. Der Grundriss umfasst einen Eingangsbereich, zwei Schlafzimmer, ein Badezimmer und ein zusätzliches Gäste-WC. Hinzu kommt ein großzügiger Wohnbereich mit Wohnzimmer, Essbereich und ausgestatteter Küche. Der Kamin schafft in der kühleren Jahreszeit eine angenehme Stimmung. An warmen Tagen sorgt die Klimaanlage für angenehme Temperaturen. Die Südausrichtung unterstützt den hellen und freundlichen Charakter der Immobilie. Geeignet ist sie sowohl für das ganzjährige Wohnen als auch für die touristische Vermietung.
Die Erdgeschosswohnung erwartet Sie in Poreč!
Die Stadt ist wegen der guten Lage und des umfangreichen Tourismusangebots mehrfach ausgezeichnet worden. Sie ist eine der bedeutendsten Küstenstädte an der Westküste der Halbinsel Istrien in Kroatien.
- Ort: Poreč (Stadt)
- Einwohnerzahl: 16.696 (2011)
- Region: Istrien
- Autobahnentfernung: ca. 10 km *
- Nächster Flughafen: Pula / ca. 56 km *
Immobiliendaten
- Objektart: Wohnung
- Objekttyp: Erdgeschosswohnung
- Baujahr: 2012
- ID: 9581
- Kaufpreis: 485.000 €
- Provision: 3,75 % inkl. MwSt. in Kroatien
- Wohnfläche: 98 m²
- Gartenfläche: 919 m²
- Anzahl Zimmer: 3
- Anzahl Schlafzimmer: 2
- Anzahl Badezimmer: 1
- Land: Kroatien
- Region: Istrien
- Ort: Poreč
- Meerentfernung: 1 km
Haben Sie Interesse die schöne Erdgeschosswohnung zu besitzen?
Nehmen Sie gerne Kontakt mit mir auf!
Ich bin Heiner Reker, Gründer und
Geschäftsführer von Reker Immobilien d.o.o. Ich begleite Sie bei Ihrer aufregenden Reise in die Welt der Immobilien in Kroatien.
Gerne organisiere ich persönlich mit meinen qualifizierten Partnern jeden Schritt bei Ihrem rechtssicheren und stressfreien Immobilienkauf in Kroatien.
Füllen Sie das Formular aus und ich melde mich gerne zum gewünschten Zeitpunkt bei Ihnen.
Bis bald
Exposé mitnehmen?
Laden Sie unser PDF-Exposé herunter und Sie haben die wichtigste Objektdaten & Bilder immer zur Hand
Exposé mitnehmen?
Nehmen Sie Kontakt mit uns auf, ein Exposé schicken wir gerne per E-Mail
Ihre Traum-Immobilie noch nicht gefunden?
Besuchen Sie diese Seiten!

























