BESTE LAGE: ERDGESCHOSSWOHNUNG MIT GARTEN, TERRASSE UND 2 KM ZUM MEER IN POREČ
Lage & Außenbereich
In einem ruhigen Teil von Poreč, nur zwei Kilometer vom Meer und vom Stadtzentrum entfernt, erwartet Sie eine moderne Erdgeschosswohnung in einem Neubau mit nur vier Einheiten. Zwei Stellplätze gehören zur Immobilie und erleichtern den Alltag.
Der private Garten umfasst rund 100 m² und zieht sich vor und seitlich der Wohnung entlang. Zusammen mit der überdachten Terrasse von 20,37 m² entsteht ein großzügiger Außenbereich. Ideal, um den Wohnraum ins Freie zu erweitern.
Innenraum & Interieur
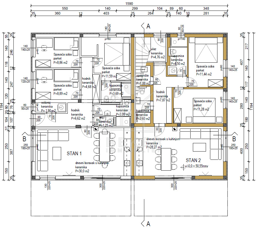
Die Wohnung selbst bietet 68,84 m² Wohnfläche. Der Grundriss ist klar gegliedert: ein Wohnzimmer mit offener Küche und Essbereich, zwei Schlafzimmer, zwei Badezimmer, ein Flur und ein Abstellraum. Mit dieser Ausstattung eignet sich die Wohnung sowohl für Familien als auch für Paare, die gerne Gäste empfangen.
Auch bei der Technik wurde Wert auf Qualität gelegt. Klimaanlagen von Daikin sorgen in allen Räumen für angenehme Temperaturen, inklusive der Schlafzimmer. In den Schlafräumen sind Vinylfliesen (LVT) verlegt, andere Beläge sind auf Wunsch möglich. Die Übergabe erfolgt schlüsselfertig, inklusive ausgewählter Einbaugeräte, jedoch ohne Möbel und Beleuchtung. So bleibt viel Freiheit für die persönliche Gestaltung.
Mit Baujahr 2025, genehmigter Bauausführung und moderner Ausstattung wie Gegensprechanlage, Satellitenfernsehen und Internet erwerben Sie eine Immobilie, die Sicherheit und Qualität verbindet.
Die Erdgeschosswohnung erwartet Sie in Poreč!
Die Stadt ist wegen der guten Lage und des umfangreichen Tourismusangebots mehrfach ausgezeichnet worden. Sie ist eine der bedeutendsten Küstenstädte an der Westküste der Halbinsel Istrien in Kroatien.
- Ort: Poreč (Stadt)
- Einwohnerzahl: 16.696 (2011)
- Region: Istrien
- Autobahnentfernung: ca. 10 km *
- Nächster Flughafen: Pula / ca. 56 km *
Immobiliendaten
- Objektart: Wohnung
- Objekttyp: Erdgeschosswohnung
- Baujahr: 2025
- ID: 9319
- Kaufpreis: 350.000 €
- Provision: 3,75 % inkl. MwSt. in Kroatien
- Wohnfläche: 89 m²
- Gartenfläche: 100 m²
- Anzahl Zimmer: 3
- Anzahl Schlafzimmer: 2
- Anzahl Badezimmer: 2
- Land: Kroatien
- Region: Istrien
- Ort: Poreč
- Meerentfernung: 2 km
Haben Sie Interesse die schöne Erdgeschosswohnung zu besitzen?
Nehmen Sie gerne Kontakt mit mir auf!
Ich bin Heiner Reker, Gründer und
Geschäftsführer von Reker Immobilien d.o.o. Ich begleite Sie bei Ihrer aufregenden Reise in die Welt der Immobilien in Kroatien.
Gerne organisiere ich persönlich mit meinen qualifizierten Partnern jeden Schritt bei Ihrem rechtssicheren und stressfreien Immobilienkauf in Kroatien.
Füllen Sie das Formular aus und ich melde mich gerne zum gewünschten Zeitpunkt bei Ihnen.
Bis bald
Exposé mitnehmen?
Laden Sie unser PDF-Exposé herunter und Sie haben die wichtigste Objektdaten & Bilder immer zur Hand
Exposé mitnehmen?
Nehmen Sie Kontakt mit uns auf, ein Exposé schicken wir gerne per E-Mail
Ihre Traum-Immobilie noch nicht gefunden?
Besuchen Sie diese Seiten!






