DIREKT AM MEER: ERDGESCHOSSWOHNUNG MIT GROSSER TERRASSE UND POOLNUTZUNG
Lage & Außenbereich
Nur ein paar Kilometer von Opatija entfernt liegt diese moderne Villa … direkt an der Küste, nur 50 Meter vom Meer. Dank ihrer Lage am Hang haben Sie freien Blick auf die Adria, ganz ohne störende Bebauung davor. Und weil rundherum dichter Baumbestand ist und der nächste Nachbar etwa 100 Meter entfernt wohnt, bleibt es ruhig. Richtig ruhig. Klingt das nach Rückzug? Ist es auch.
Die Villa selbst ist klar strukturiert und hochwertig gebaut. Insgesamt gibt es sechs Wohnungen, also kein Massenwohnen, sondern eher das Gefühl, man kennt sich. Jede Einheit hat einen eigenen Parkplatz direkt vor der Tür.
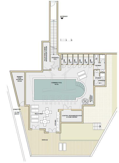
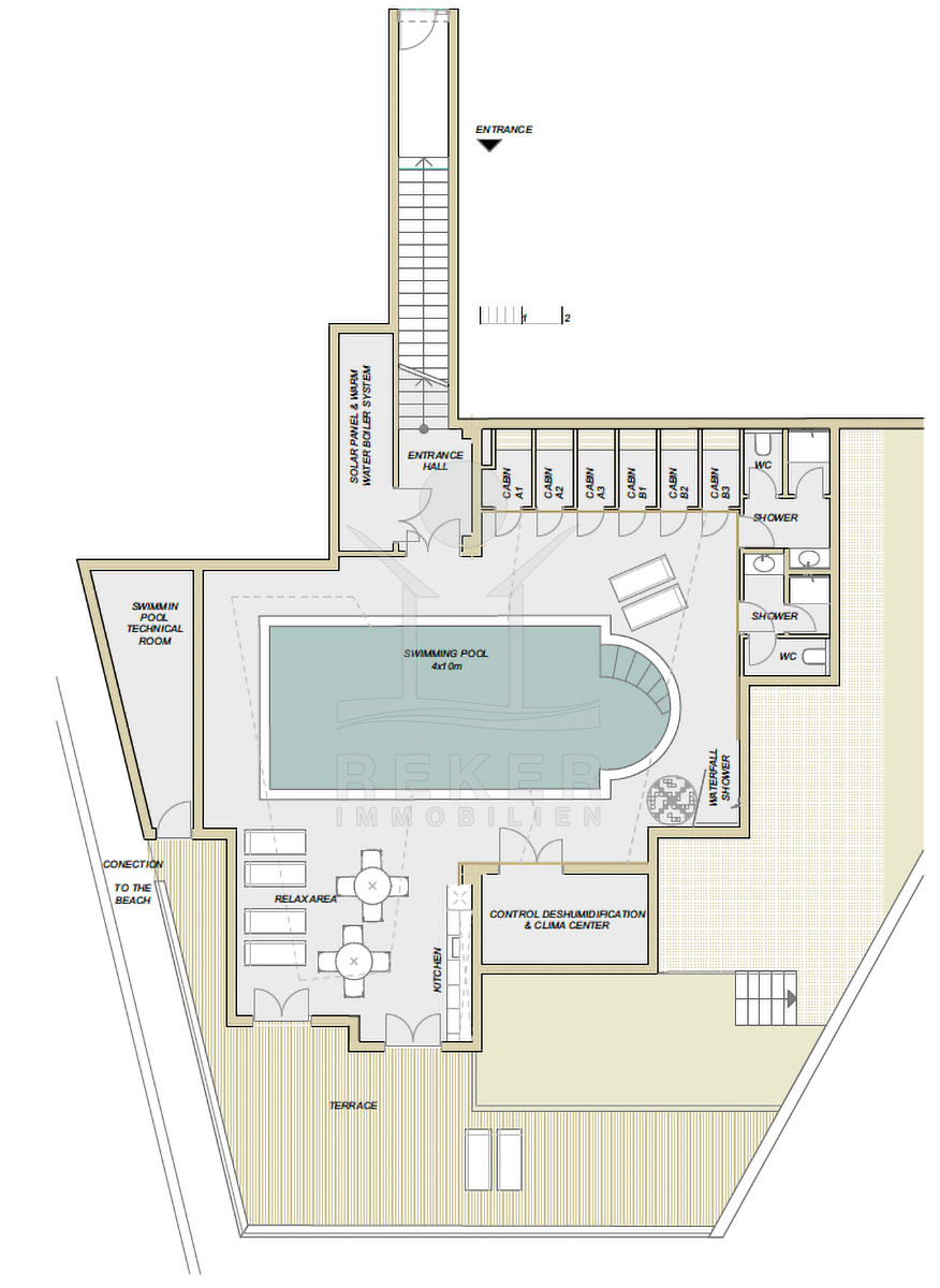
Besonderes Extra: ein beheizter Innenpool für alle Bewohner. So können Sie auch im Winter entspannt Ihre Bahnen ziehen. Die Wege zur Villa sind gepflegt, das Gelände wirkt wie natürlich hineingewachsen, nicht aufgesetzt, sondern stimmig. Wenn Sie auf der Suche nach einem Ort sind, an dem Sie ganz für sich sein können, mit Meerblick und Stil, dann schauen Sie sich diese Immobilie genauer an.
Innenraum & Interieur
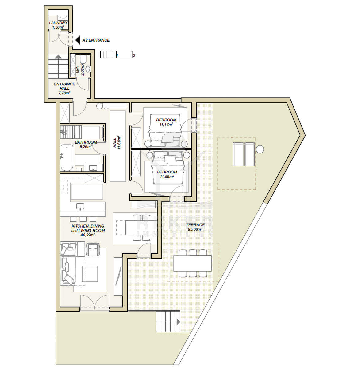
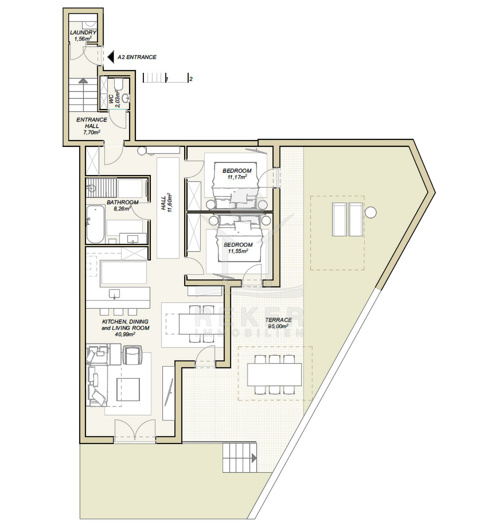
Wohnung A2 liegt komplett auf einer Ebene. Mit 95 m² bietet sie viel Platz und eine durchdachte Raumaufteilung. Alles auf einer Ebene, klingt gut? Der offene Wohnbereich mit Küche, Essplatz und Wohnzimmer ist das helle Zentrum des Alltags. Große Fenster lassen viel Licht hinein und geben immer wieder den Blick aufs Meer frei. So bleibt die Küste ständig präsent. Zwei gleich große Schlafzimmer liegen ruhig nebeneinander – ideal, wenn Sie mit Kindern oder Freunden reisen. Dazu kommen ein großzügiges Bad mit Wanne und ein separates WC. In der Speisekammer mit Waschmaschine lässt sich alles verstauen, was im Alltag nicht offen herumstehen soll. Die Ausstattung? Modern, gepflegt und auf 4-Sterne-Niveau.
Und draußen? Da wartet die 95 m² große Terrasse mit Meerblick. Sie ist ebenerdig zugänglich – perfekt, wenn kleine Kinder dabei sind. Sie wollen draußen essen, spielen oder einfach nur die Aussicht genießen? Kein Problem. Tisch, sechs Stühle, ein Sonnenschirm und zwei Liegestühle sind schon da. Sie müssen nur noch Platz nehmen.
Die Erdgeschosswohnung erwartet Sie in Opatija!
- Ort: Opatija (Stadt)
- Einwohnerzahl: 11.659 (2011)
- Region: Kvarner-Bucht
- Autobahnentfernung: ca. 4 km *
- Nächster Flughafen: Rijeka / ca. 40 km *
Immobiliendaten
- Objektart: Wohnung
- Objekttyp: Erdgeschosswohnung
- Baujahr: 2018
- ID: 9346
- Kaufpreis: 625.000 €
- Provision: 3,75 % inkl. MwSt. in Kroatien
- Wohnfläche: 190 m²
- Gartenfläche: 130 m²
- Anzahl Zimmer: 3
- Anzahl Schlafzimmer: 2
- Anzahl Badezimmer: 1
- Land: Kroatien
- Region: Kvarner-Bucht
- Ort: Opatija
- Meerentfernung: 50 m
Haben Sie Interesse die schöne Erdgeschosswohnung zu besitzen?
Nehmen Sie gerne Kontakt mit mir auf!
Ich bin Heiner Reker, Gründer und
Geschäftsführer von Reker Immobilien d.o.o. Ich begleite Sie bei Ihrer aufregenden Reise in die Welt der Immobilien in Kroatien.
Gerne organisiere ich persönlich mit meinen qualifizierten Partnern jeden Schritt bei Ihrem rechtssicheren und stressfreien Immobilienkauf in Kroatien.
Füllen Sie das Formular aus und ich melde mich gerne zum gewünschten Zeitpunkt bei Ihnen.
Bis bald
Exposé mitnehmen?
Laden Sie unser PDF-Exposé herunter und Sie haben die wichtigste Objektdaten & Bilder immer zur Hand
Exposé mitnehmen?
Nehmen Sie Kontakt mit uns auf, ein Exposé schicken wir gerne per E-Mail
Ihre Traum-Immobilie noch nicht gefunden?
Besuchen Sie diese Seiten!





























