NEUBAU ERDGESCHOSSWOHNUNG MIT PRIVATEM SWIMMINGPOOL & GRANDIOSEN MEERBLICK

Wohnung mit unschlagbarer Nähe zu Strand & Meer
Die exquisite Erdgeschosswohnung in Omiš besticht durch ihre ideale Lage, lediglich 200 Meter vom berühmten Strand entfernt. Hier haben Sie die Möglichkeit, den Beach-Life-Stil in vollen Zügen zu genießen, mit schnellen Fußwegen zu den Stränden, Restaurants und Cafés sowie der kilometerlangen Promenade am Meer. Omiš ist ein atemberaubend schöner Urlaubsort im Herzen von Dalmatien, umgeben von beeindruckenden Bergen und der Adria.
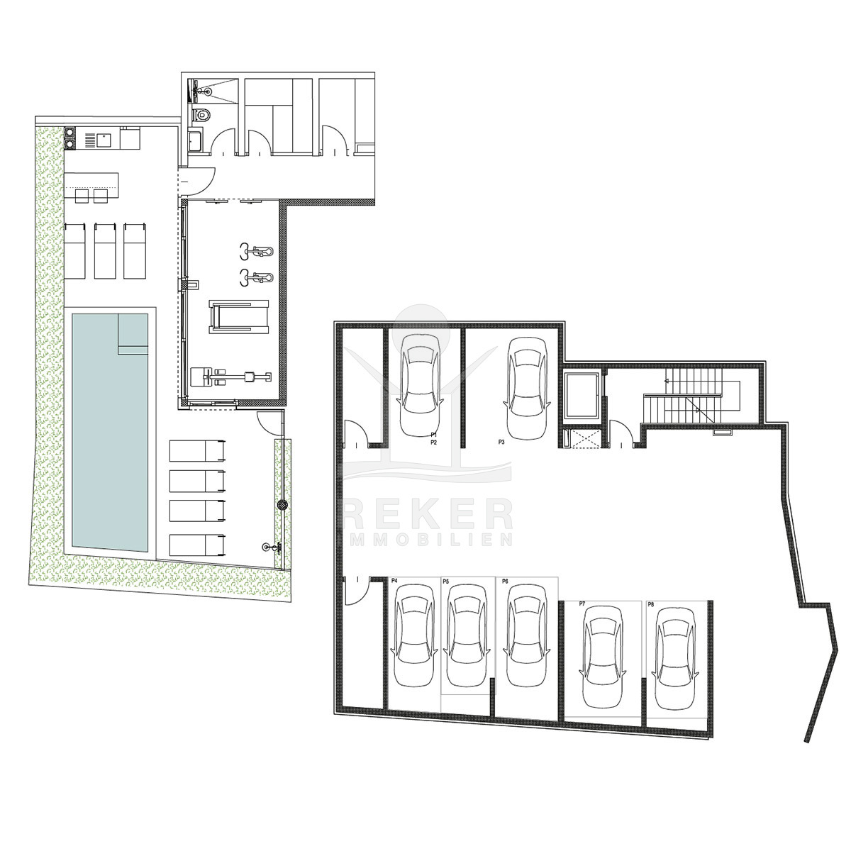
Entdecken Sie diese hochwertige Erdgeschosswohnung in einem modernen Neubau mit insgesamt 6 Wohnungen auf 3 Etagen. Ausgestattet mit besten Materialien, intelligenten Technologien, hochwertigen Rollläden und Sonnenkollektoren. Für Ihren Komfort stehen 2 Parkplätze sowie ein Abstellraum im Preis inbegriffen. Ein Aufzug sorgt für mühelosen Zugang. Ideal für anspruchsvolles Wohnen!
Die beeindruckende Terrasse von 68 m² kombiniert mit einem 15 m² privaten Pool bietet nicht nur Erfrischung, sondern auch einen spektakulären Panorama-Meerblick — ein wahrhaftiger Luxus!
Als besonderes Extra steht Ihnen ein gemeinschaftlicher Bereich mit Sauna und Fitnessmöglichkeiten zur Verfügung. Hier finden Sie das perfekte Rundumpaket für gehobenes Wohnen und puren Genuss!
Luxuriöses Wohnen mit traumhaftem Meerblick!
Diese großzügige Wohnung bietet Ihnen eine Wohnfläche von 143 m², die lichtdurchflutet ist und mit Klimaanlage ausgestattet. Der offene Wohnbereich vereint Ess- und Küchenzimmer, ideal für gesellige Abende. Mit 4 Schlafzimmern und 2 modernen Badezimmern sind Sie bestens versorgt. Genießen Sie den Zugang zu einem einladenden Pool- und Terrassenbereich
Die Erdgeschosswohnung erwartet Sie in Omiš!
- Ort: Omiš (Stadt)
- Einwohnerzahl: 14.936 (2011)
- Region: Dalmatien-Split
- Autobahnentfernung: ca. 20 km *
- Nächster Flughafen: Split / ca. 41 km *

Immobiliendaten
- Objektart: Wohnung
- Objekttyp: Erdgeschosswohnung
- Baujahr: 2025
- ID: 8214
- Kaufpreis: 990.000 €
- Provision: 3,75 % inkl. MwSt. in Kroatien
- Wohnfläche: 143 m²
- Anzahl Zimmer: 4
- Anzahl Schlafzimmer: 3
- Anzahl Badezimmer: 2
- Land: Kroatien
- Region: Dalmatien-Split
- Ort: Omiš
- Lage: Ortslage
- Meerentfernung: 200 m
Haben Sie Interesse die schöne Erdgeschosswohnung zu besitzen?
Nehmen Sie gerne Kontakt mit mir auf!
Ich bin Heiner Reker, Gründer und
Geschäftsführer von Reker Immobilien d.o.o. Ich begleite Sie bei Ihrer aufregenden Reise in die Welt der Immobilien in Kroatien.
Gerne organisiere ich persönlich mit meinen qualifizierten Partnern jeden Schritt bei Ihrem rechtssicheren und stressfreien Immobilienkauf in Kroatien.
Füllen Sie das Formular aus und ich melde mich gerne zum gewünschten Zeitpunkt bei Ihnen.
Bis bald

Exposé mitnehmen?
Laden Sie unser PDF-Exposé herunter und Sie haben die wichtigste Objektdaten & Bilder immer zur Hand
Exposé mitnehmen?
Nehmen Sie Kontakt mit uns auf, ein Exposé schicken wir gerne per E-Mail
Ihre Traum-Immobilie noch nicht gefunden?
Besuchen Sie diese Seiten!