NEUBAU ERDGESCHOSSWOHNUNG MIT GARTEN DER EXTRAKLASSE AN DER ADRIAKÜSTE IN BEGEHRTER LAGE
Exklusives Neubauprojekt: Nur wenige Schritte vom Meer entfernt
Die Erdgeschosswohnung besticht durch ihre Lage nur 120 m vom Meer entfernt in der malerischen Stadt Nin bei Zadar. Eingebettet zwischen majestätischen Gebirgszügen und der funkelnden Adria erwartet Sie hier ein ganz besonderes Ambiente. Nin, als eine der ältesten kroatischen Königsstädte, besticht nicht nur durch ihre historische Bedeutung, sondern auch durch ihre ruhige Schönheit. Die romantische Altstadt auf einer Insel in einer bezaubernden Lagune lädt zum Flanieren ein und bietet kulturelle Highlights wie antike Ruinen, Kirchen und Museen. Für Strandliebhaber sind die Sandstrände von Nin, darunter der berühmte Königinnen-Strand mit seinem heilenden Schlamm, ein Paradies. Aktive Gäste finden in der Umgebung zahlreiche Wander- und Radwege, die durch malerische Landschaften und zu historischen Stätten führen. Kulinarisch kommen Feinschmecker in den gemütlichen Tavernen auf ihre Kosten und können frischen Fisch, Meeresfrüchte und weitere dalmatinische Spezialitäten probieren. Die ruhige Lage der Neubauwohnung in grüner und attraktiver Umgebung bietet hier den perfekten Rückzugsort für alle, die das Besondere suchen.
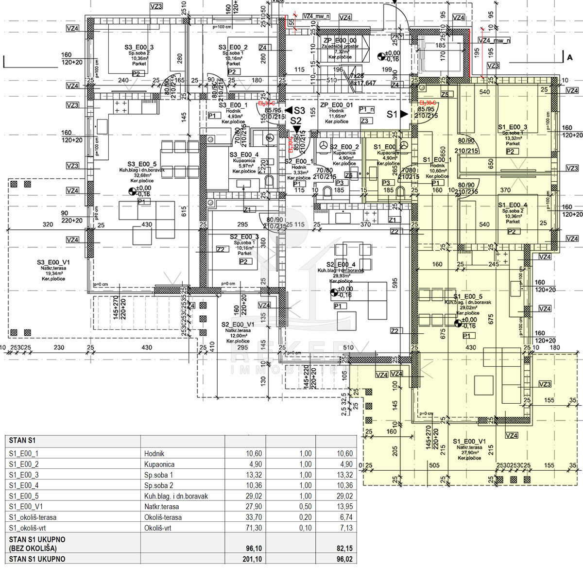
Die exklusive Neubauwohnung im Erdgeschoss bietet einen Garten von 105 m² als hervorragende Ergänzung zum Wohnraum. In einem Gebäude mit insgesamt neun Wohnungen auf 2 Etagen gelegen, genießt man von den Etagen aus einen atemberaubenden Panoramablick auf das Meer. Hochwertige Materialien und modernes Design prägen die Ausstattung, wobei ausschließlich hochwertige Bauelemente verwendet werden. Geplant ist die Fertigstellung im Dezember 2025, inklusive Klimaanlage und Heizung. Jeder Wohnung stehen 2 Außenparkplätze zur Verfügung, um den Bewohnern Komfort und Bequemlichkeit zu bieten.
Modernes Wohnen auf großzügiger Fläche
Die Wohnung bietet eine Wohnfläche von 96 m² mit einem großzügigen Grundriss, der einen Eingangsbereich und ein offenes Konzept mit Wohn-, Ess- und Küchenbereich umfasst. Zwei gemütliche Schlafzimmer und ein Badezimmer ergänzen das moderne Wohnkonzept. Der Außenbereich verfügt über Terrassenflächen von insgesamt 62 m², die viel Platz bieten, um die frische Luft zu genießen und im Freien zu entspannen
Die Erdgeschosswohnung erwartet Sie in Nin!
- Ort: Nin (Stadt)
- Einwohnerzahl: 2.876 (2011)
- Region: Dalmatien-Zadar
- Autobahnentfernung: ca. 28 km *
- Nächster Flughafen: Zadar / ca. 26 km *
Immobiliendaten
- Objektart: Wohnung
- Objekttyp: Erdgeschosswohnung
- Baujahr: 2025
- ID: 7577
- Kaufpreis: 403.000 €
- Provision: 3,75 % inkl. MwSt. in Kroatien
- Wohnfläche: 96 m²
- Gartenfläche: 105 m²
- Anzahl Zimmer: 3
- Anzahl Schlafzimmer: 2
- Anzahl Badezimmer: 1
- Land: Kroatien
- Region: Dalmatien-Zadar
- Ort: Nin
- Meerentfernung: 120 m
Haben Sie Interesse die schöne Erdgeschosswohnung zu besitzen?
Nehmen Sie gerne Kontakt mit mir auf!
Ich bin Heiner Reker, Gründer und
Geschäftsführer von Reker Immobilien d.o.o. Ich begleite Sie bei Ihrer aufregenden Reise in die Welt der Immobilien in Kroatien.
Gerne organisiere ich persönlich mit meinen qualifizierten Partnern jeden Schritt bei Ihrem rechtssicheren und stressfreien Immobilienkauf in Kroatien.
Füllen Sie das Formular aus und ich melde mich gerne zum gewünschten Zeitpunkt bei Ihnen.
Bis bald
Exposé mitnehmen?
Laden Sie unser PDF-Exposé herunter und Sie haben die wichtigste Objektdaten & Bilder immer zur Hand
Exposé mitnehmen?
Nehmen Sie Kontakt mit uns auf, ein Exposé schicken wir gerne per E-Mail
Ihre Traum-Immobilie noch nicht gefunden?
Besuchen Sie diese Seiten!





