ERDGESCHOSSWOHNUNG MIT 3 ZIMMERN & MODERNEM DESIGN IN KANFANAR
Ihr neues Zuhause im malerischen Kanfanar
Die erstklassige Erdgeschosswohnung in Kanfanar besticht nicht nur durch ihre hochwertige Bauweise, sondern auch durch ihre Lage im malerischen Landesinneren der Region Istrien. In einer ländlichen Umgebung finden Sie hier den idealen Ort für Entspannung und Erholung. Mit nur 700 Metern bis zum Zentrum des charmanten Ortes können Sie das lokale Leben hautnah erleben und die kulturellen Veranstaltungen, wie das beliebte Volksfest Jakovljevo, genießen. Die Entfernung von lediglich 17 km zum Meer macht diese Wohnung zu einem attraktiven Rückzugsort für Badeurlauber, während die beliebten Küstenorte Rovinj (18 km) und Vrsar nur einen kurzen Drive entfernt sind. Die atemberaubende Natur in der Umgebung lädt Wander- und Radfreunde dazu ein, die idyllischen Landschaften zu erkunden und die frische Luft zu genießen. Die gute Verkehrsanbindung zu den Flughäfen in Pula (34 km) und Venedig (246 km) sowie zur nächsten Autobahnauffahrt (4 km) sorgt dafür, dass Sie jederzeit einfach und bequem reisen können.
Das Apartment befindet sich in einem Neubaugebäude, das insgesamt 8 stilvolle Wohnungen auf 2 Etagen umfasst. Die hochwertige Bauweise besticht durch erstklassige Ausstattungsdetails, wie beispielsweise eine Fußbodenheizung in den Badezimmern und stilvolle italienische Keramikfliesen. Die Wohnräume werden mit modernem Vinyl ausgelegt, welches eine pflegeleichte und elegante Oberfläche bietet. Die isolierende Fassadenstärke von 10 cm trägt nicht nur zur Energieeffizienz bei, sondern auch zu einem hohen Wohnkomfort. Zudem bietet jede Wohnung den Luxus von 2 Parkplätzen, was für zusätzlichen Komfort sorgt. Die Wohnung wird voraussichtlich im ersten Quartal 2025 fertiggestellt, was Ihnen die Chance bietet, in ein modernes Zuhause einzuziehen.
Geräumige Erdgeschosswohnung mit Naturblick
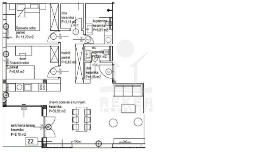
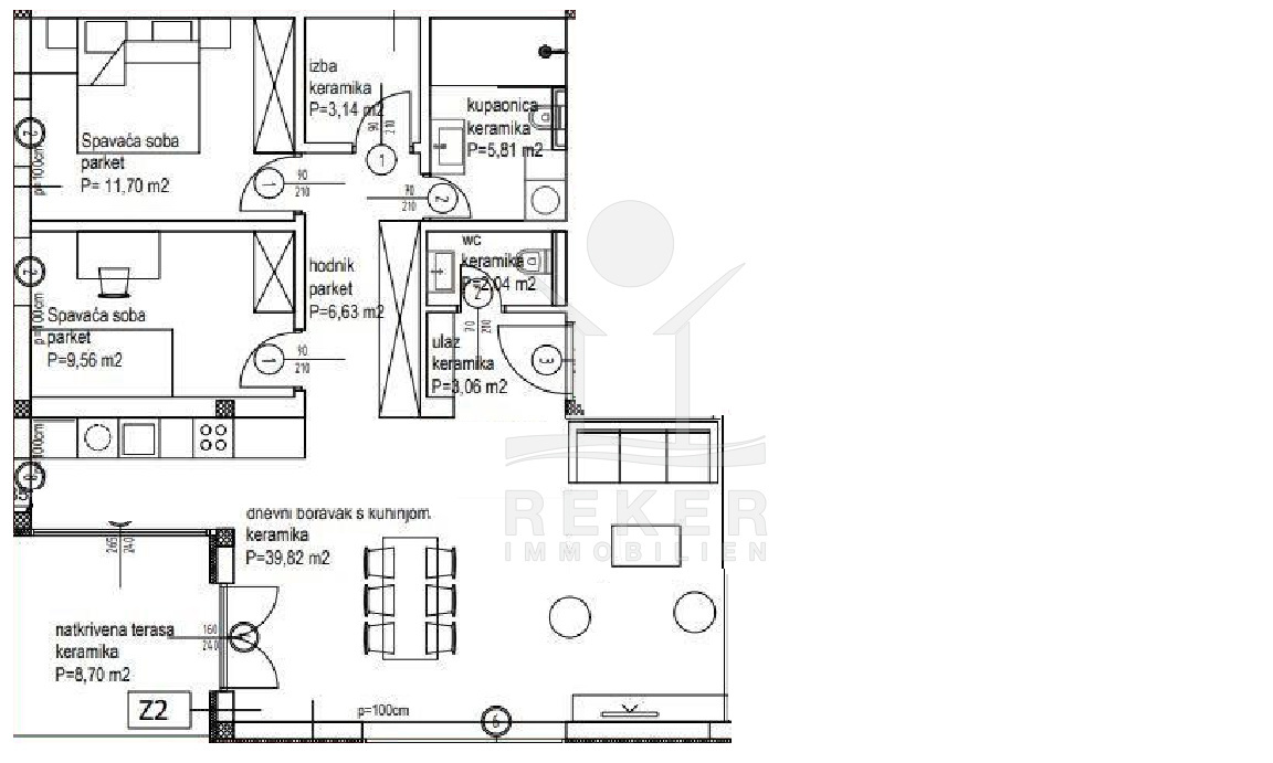
Die 90 m² große Wohnung im Erdgeschoss besticht durch ihren durchdachten Grundriss. Der Eingangsbereich heißt Sie willkommen und führt Sie zu 2 Schlafzimmern, einem modernen Badezimmer sowie einer separaten Toilette. Die offene Küche mit angrenzendem Esszimmer ist ideal für gemeinsame Mahlzeiten und geselliges Beisammensein. Das Wohnzimmer bietet Zugang zu einer großzügigen Terrasse (9 m²), die einen herrlichen Blick auf die umliegende Natur bietet und zum Entspannen im Freien einlädt. Die Wohnung wird mit einer Klimaanlage ausgestattet, die für angenehme Kühlung in den warmen Monaten sorgt und Ihnen ein komfortables Wohngefühl garantiert.
Die Erdgeschosswohnung erwartet Sie in Kanfanar!
- Ort: Kanfanar (Gemeinde)
- Einwohnerzahl: 1.543 (2011)
- Region: Istrien
- Autobahnentfernung: ca. 2 km *
- Nächster Flughafen: Pula / ca. 34 km *
Immobiliendaten
- Objektart: Wohnung
- Objekttyp: Erdgeschosswohnung
- Baujahr: 2025
- ID: 8011
- Kaufpreis: 250.000 €
- Provision: 3,75 % inkl. MwSt. in Kroatien
- Wohnfläche: 90 m²
- Anzahl Zimmer: 3
- Anzahl Schlafzimmer: 2
- Anzahl Badezimmer: 1
- Land: Kroatien
- Region: Istrien
- Ort: Kanfanar
- Lage: Ortslage
- Meerentfernung: 17 km
Haben Sie Interesse die schöne Erdgeschosswohnung zu besitzen?
Nehmen Sie gerne Kontakt mit mir auf!
Ich bin Heiner Reker, Gründer und
Geschäftsführer von Reker Immobilien d.o.o. Ich begleite Sie bei Ihrer aufregenden Reise in die Welt der Immobilien in Kroatien.
Gerne organisiere ich persönlich mit meinen qualifizierten Partnern jeden Schritt bei Ihrem rechtssicheren und stressfreien Immobilienkauf in Kroatien.
Füllen Sie das Formular aus und ich melde mich gerne zum gewünschten Zeitpunkt bei Ihnen.
Bis bald
Exposé mitnehmen?
Laden Sie unser PDF-Exposé herunter und Sie haben die wichtigste Objektdaten & Bilder immer zur Hand
Exposé mitnehmen?
Nehmen Sie Kontakt mit uns auf, ein Exposé schicken wir gerne per E-Mail
Ihre Traum-Immobilie noch nicht gefunden?
Besuchen Sie diese Seiten!









