MODERNE 4-ZIMMER-ERDGESCHOSSWOHNUNG IN KANFANAR ZUM ERSTBEZUG
Wohnen im Herzen Istriens
Die Erdgeschosswohnung befindet sich in Kanfanar, einem charmanten Ort im saftig grünen Landesinneren der Region Istrien. Mit nur 700 Metern zum Ortszentrum erreichen Sie mühelos alle erforderlichen Annehmlichkeiten des täglichen Lebens. Die wunderschöne Küste mit den Stränden von Rovinj und Vrsar ist nur 17 km entfernt, während das lebhafte Stadtzentrum von Rovinj in 18 km erreichbar ist. Der Flughafen Pula liegt 34 km entfernt und bietet eine bequeme Anreise, während Sie den Flughafen Venedig in etwa 246 km erreichen können. Kanfanar, eine Gemeinde mit fast 1.600 Einwohnern, wurde im 17. Jahrhundert gegründet und hat sich zu einem beliebten Ziel für Wander- und Radurlauber entwickelt. Die ländliche Lage und die reizvolle Natur laden dazu ein, die Umgebung zu erkunden und die regionale Schönheit zu genießen. Traditionelle Konobas und Restaurants in der Umgebung verwöhnen Sie mit köstlichen istrischen Spezialitäten und hervorragenden lokalen Weinen. In den Sommermonaten erwarten Sie zahlreiche kulturelle Veranstaltungen, wie das beliebte Volksfest Jakovljevo. Diese Wohnung bietet nicht nur einen idealen Rückzugsort, sondern auch den perfekten Ausgangspunkt, um das Herz Istriens zu entdecken.
Der Neubau, der insgesamt 8 Wohnungen auf 2 Etagen umfasst. Die Bauweise überzeugt durch ihre qualitative Ausführung, gepaart mit modernen Ausstattungsdetails wie einer Fußbodenheizung in den Badezimmern. Die Böden werden in den Badezimmern mit edlen italienischen Keramikfliesen versehen, während in den Wohnräumen hochwertiger Vinylboden verwendet wird. Die Fassadendämmung mit einer Stärke von 10 cm sorgt für eine exzellente Energieeffizienz, und die 3-fach verglasten PVC-Fenster garantieren optimale Isolierung und Lärmschutz. Jede Wohnung verfügt zudem über 2 Stellplätze. Die voraussichtliche Fertigstellung ist für das erste Quartal 2025 geplant, was Ihnen die Möglichkeit gibt, frühzeitig Ihr neues Zuhause zu beziehen.
Erdgeschosswohnung im Herzen Istriens
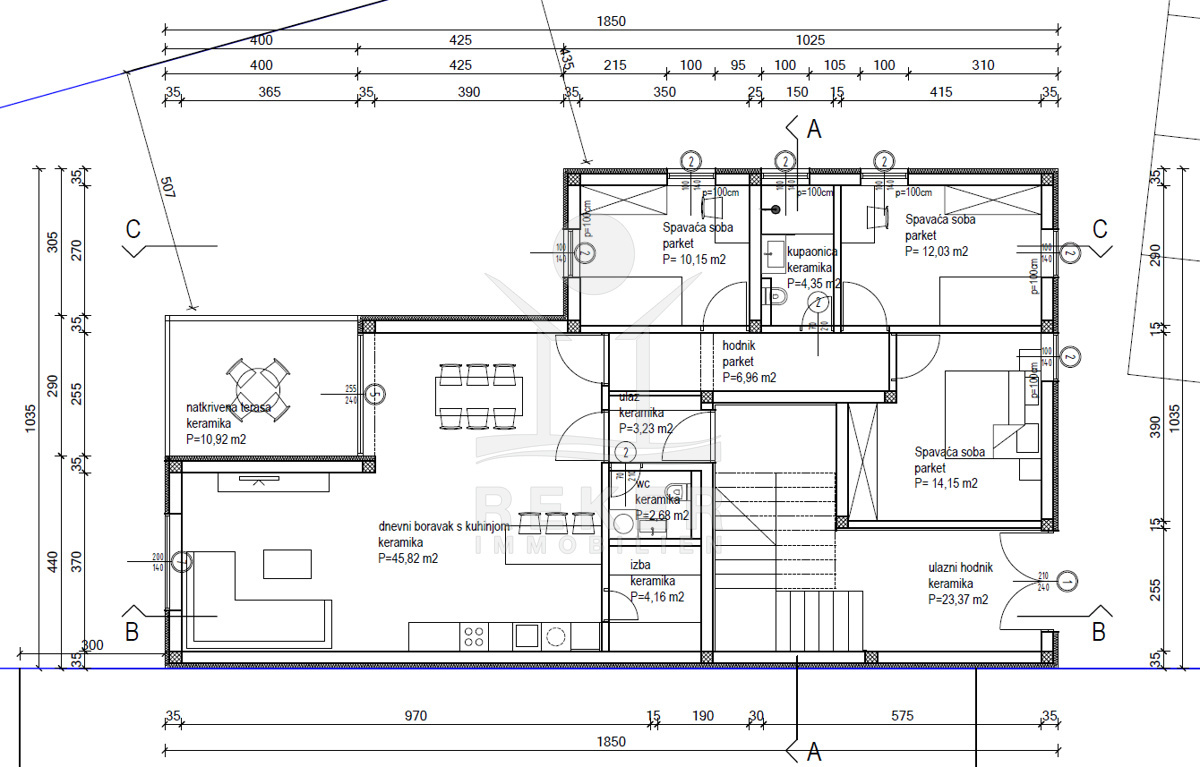
Die großzügige Erdgeschosswohnung von 114 m² bietet eine durchdachte und komfortable Ausstattung für modernes Wohnen. Dank der Klimaanlage genießen Sie ganzjährigen Komfort, während der einladende Eingangsbereich einen warmen Empfang bietet. Die Wohnung verfügt über 3 Schlafzimmer, die als entspannende Rückzugsorte konzipiert sind, sowie 1 Badezimmer, ein separates WC und einen praktischen Abstellraum. Diese Aufteilung sorgt für ausreichend Platz und Privatsphäre für die ganze Familie. Das Herzstück der Wohnung bildet das einladende Wohnzimmer, das harmonisch in die offene Küche mit Essbereich übergeht. Vom Wohnzimmer aus erreichen Sie die nach Westen ausgerichtete Terrasse von 11 m² – ein perfekter Ort für entspannte Stunden im Freien.
Die Erdgeschosswohnung erwartet Sie in Kanfanar!
- Ort: Kanfanar (Gemeinde)
- Einwohnerzahl: 1.543 (2011)
- Region: Istrien
- Autobahnentfernung: ca. 2 km *
- Nächster Flughafen: Pula / ca. 34 km *
Immobiliendaten
- Objektart: Wohnung
- Objekttyp: Erdgeschosswohnung
- Baujahr: 2025
- ID: 8008
- Kaufpreis: 315.000 €
- Provision: 3,75 % inkl. MwSt. in Kroatien
- Wohnfläche: 114 m²
- Anzahl Zimmer: 4
- Anzahl Schlafzimmer: 3
- Anzahl Badezimmer: 1
- Land: Kroatien
- Region: Istrien
- Ort: Kanfanar
- Lage: Siedlung
- Meerentfernung: 17 km
Haben Sie Interesse die schöne Erdgeschosswohnung zu besitzen?
Nehmen Sie gerne Kontakt mit mir auf!
Ich bin Heiner Reker, Gründer und
Geschäftsführer von Reker Immobilien d.o.o. Ich begleite Sie bei Ihrer aufregenden Reise in die Welt der Immobilien in Kroatien.
Gerne organisiere ich persönlich mit meinen qualifizierten Partnern jeden Schritt bei Ihrem rechtssicheren und stressfreien Immobilienkauf in Kroatien.
Füllen Sie das Formular aus und ich melde mich gerne zum gewünschten Zeitpunkt bei Ihnen.
Bis bald
Exposé mitnehmen?
Laden Sie unser PDF-Exposé herunter und Sie haben die wichtigste Objektdaten & Bilder immer zur Hand
Exposé mitnehmen?
Nehmen Sie Kontakt mit uns auf, ein Exposé schicken wir gerne per E-Mail
Ihre Traum-Immobilie noch nicht gefunden?
Besuchen Sie diese Seiten!









