ZWEISTÖCKIGE 152 M² WOHNUNG MIT POOL, BALKON UND TERRASSE
Lage & Außenbereich
In Dramlje entsteht eine attraktive Neubauwohnung, nur 300 Meter vom Meer, der Strandpromenade und allen wichtigen Einrichtungen entfernt. Das moderne Gebäude fügt sich harmonisch in eine ruhige Wohnstraße ein. Ein privater Stellplatz im Gartenbereich gehört ebenfalls dazu. Der Außenbereich ist ein echtes Highlight. Die überdachte Terrasse von 24,90 m² mit Südausrichtung öffnet sich direkt zum Garten mit Pool. So entsteht ein Platz, der das Leben im Freien bereichert. Ein Stellplatz im 200 m² großen Garten gehört ebenfalls dazu. Die Fertigstellung ist für Sommer 2025 geplant. Mit einem Preis von 3.500 €/m² eignet sich diese Immobilie für Familien, die die Nähe zum Meer schätzen. Auch für Käufer, die in die touristische Vermietung investieren möchten, ist sie eine interessante Option.
Innenraum & Interieur
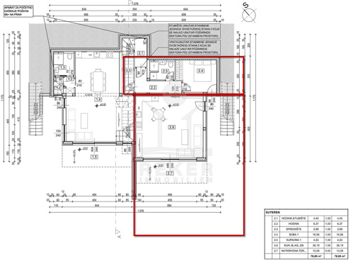
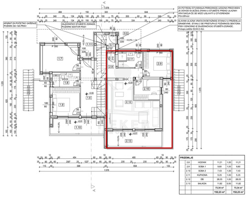
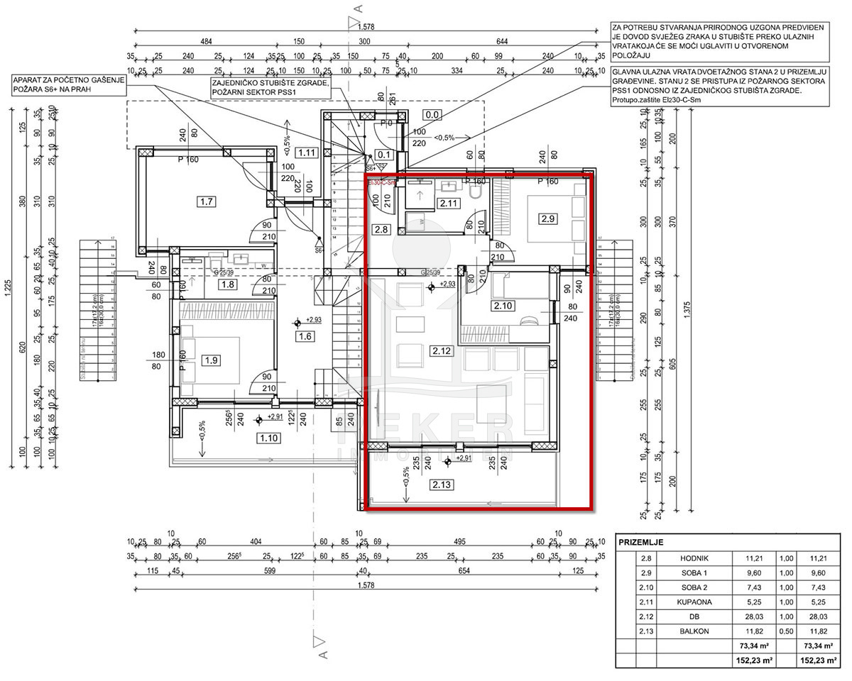
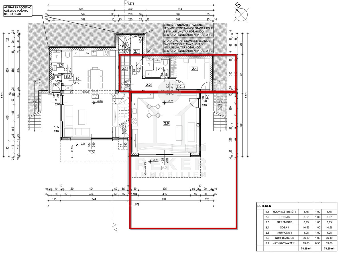
Das Erdgeschoss umfasst eine Eingangshalle, ein Badezimmer, ein Wohnzimmer mit Küche und Essbereich sowie ein Schlafzimmer. Von hier gelangen Sie direkt auf die Terrasse und in den Garten. Über die Innentreppe erreichen Sie das Obergeschoss. Dort warten ein Flur, zwei Schlafzimmer, ein weiteres Badezimmer und ein zusätzlicher Wohn- oder Aufenthaltsraum. Der nach Süden ausgerichtete Balkon bringt Sonne und Helligkeit in die Räume.
Die Wohnung wird in hochwertiger Bauweise erstellt. Während der Bauphase können Käufer die Materialien nach ihrem Geschmack auswählen. Zur Ausstattung zählen eine zentrale Klima- und Ventilationsanlage, Interfon, Sat-TV und Internet. Der Energieausweis mit Klasse A+ bestätigt Effizienz und Nachhaltigkeit.
Die Maisonette erwartet Sie in Dramalj!
- Ort: Dramalj (Dorf)
- Einwohnerzahl: 1.485 (2011)
- Region: Kvarner-Bucht
- Autobahnentfernung: ca. 2 km *
- Nächster Flughafen: Rijeka / ca. 16 km *
Immobiliendaten
- Objektart: Wohnung
- Objekttyp: Maisonette
- Baujahr: 2025
- ID: 9299
- Kaufpreis: 585.000 €
- Provision: 3,75 % inkl. MwSt. in Kroatien
- Wohnfläche: 152 m²
- Gartenfläche: 200 m²
- Anzahl Zimmer: 4
- Anzahl Schlafzimmer: 3
- Anzahl Badezimmer: 2
- Land: Kroatien
- Region: Kvarner-Bucht
- Ort: Dramalj
- Meerentfernung: 300 m
Haben Sie Interesse die schöne Maisonette zu besitzen?
Nehmen Sie gerne Kontakt mit mir auf!
Ich bin Heiner Reker, Gründer und
Geschäftsführer von Reker Immobilien d.o.o. Ich begleite Sie bei Ihrer aufregenden Reise in die Welt der Immobilien in Kroatien.
Gerne organisiere ich persönlich mit meinen qualifizierten Partnern jeden Schritt bei Ihrem rechtssicheren und stressfreien Immobilienkauf in Kroatien.
Füllen Sie das Formular aus und ich melde mich gerne zum gewünschten Zeitpunkt bei Ihnen.
Bis bald
Exposé mitnehmen?
Laden Sie unser PDF-Exposé herunter und Sie haben die wichtigste Objektdaten & Bilder immer zur Hand
Exposé mitnehmen?
Nehmen Sie Kontakt mit uns auf, ein Exposé schicken wir gerne per E-Mail
Ihre Traum-Immobilie noch nicht gefunden?
Besuchen Sie diese Seiten!



















