ZWEISTÖCKIGE NEUBAUWOHNUNG MIT POOL UND 200 M² GARTEN IN MEERESNÄHE
Lage & Außenbereich
In Dramlje entsteht eine attraktive Neubauwohnung, nur 300 Meter vom Meer, der Strandpromenade und allen wichtigen Einrichtungen entfernt. Das moderne Gebäude fügt sich harmonisch in eine ruhige Wohnstraße ein. Ein privater Stellplatz im Gartenbereich gehört ebenfalls dazu.
Der Außenbereich ist ein echtes Plus. Eine überdachte Terrasse von 26 m² mit Südausrichtung und ein Balkon im Obergeschoss schaffen schöne Plätze im Freien. Hinzu kommt ein rund 200 m² großer Garten mit privatem Pool, der viel Raum und Komfort bietet.
Innenraum & Interieur
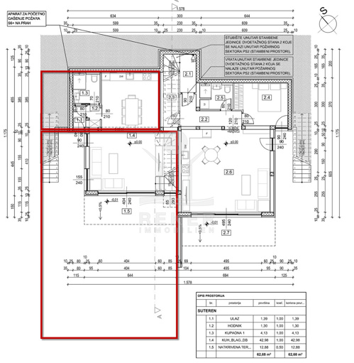
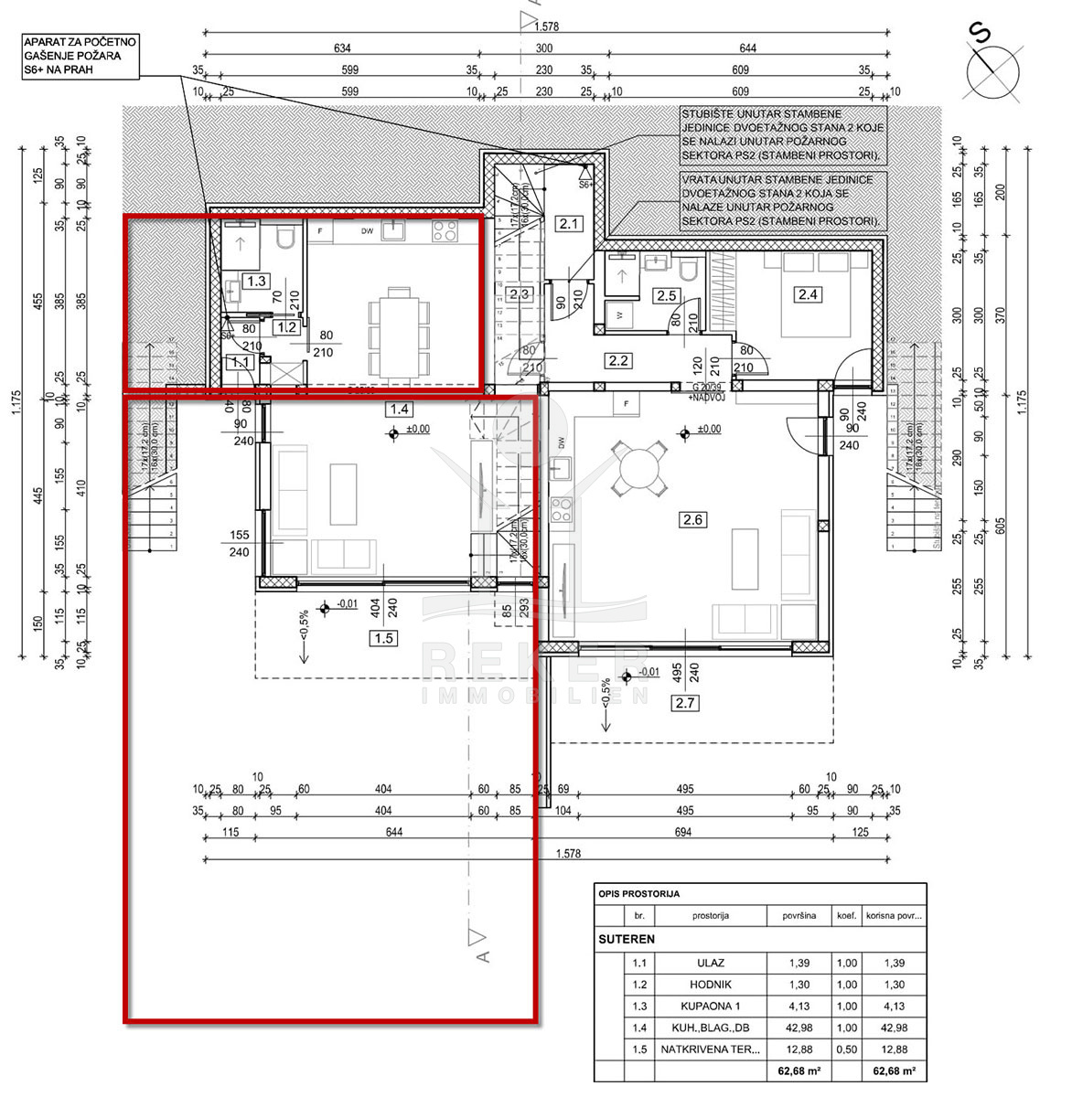
Die 121 m² Wohnfläche verteilen sich auf zwei Etagen. Im Erdgeschoss finden Sie eine Eingangshalle, ein Badezimmer, einen offenen Wohn- und Essbereich mit Küche, ein Schlafzimmer sowie die Terrasse. Über die Innentreppe gelangen Sie ins Obergeschoss. Dort warten zwei weitere Schlafzimmer, ein Badezimmer, ein zusätzliches Wohnzimmer/Aufenthaltsraum und ein Balkon. So entsteht Raum für gemeinsames Leben und persönliche Rückzugsmöglichkeiten.
Zur Ausstattung zählen eine zentrale Klima- und Ventilationsanlage, Klimaanlage, Stadtkanalisation sowie moderne Technik wie Interfon, Sat-TV und Internet. Während der Bauphase können Käufer die hochwertigen Materialien nach eigenem Geschmack wählen. Energieklasse A+ und alle erforderlichen Genehmigungen garantieren zusätzliche Sicherheit. Der Kaufpreis liegt bei 3.500 €/m². Fertigstellung: Sommer 2025.
Die Maisonette erwartet Sie in Dramalj!
- Ort: Dramalj (Dorf)
- Einwohnerzahl: 1.485 (2011)
- Region: Kvarner-Bucht
- Autobahnentfernung: ca. 2 km *
- Nächster Flughafen: Rijeka / ca. 16 km *
Immobiliendaten
- Objektart: Wohnung
- Objekttyp: Maisonette
- Baujahr: 2025
- ID: 9298
- Kaufpreis: 485.000 €
- Provision: 3,75 % inkl. MwSt. in Kroatien
- Wohnfläche: 121 m²
- Gartenfläche: 200 m²
- Anzahl Zimmer: 4
- Anzahl Schlafzimmer: 3
- Anzahl Badezimmer: 2
- Land: Kroatien
- Region: Kvarner-Bucht
- Ort: Dramalj
- Meerentfernung: 300 m
Haben Sie Interesse die schöne Maisonette zu besitzen?
Nehmen Sie gerne Kontakt mit mir auf!
Ich bin Heiner Reker, Gründer und
Geschäftsführer von Reker Immobilien d.o.o. Ich begleite Sie bei Ihrer aufregenden Reise in die Welt der Immobilien in Kroatien.
Gerne organisiere ich persönlich mit meinen qualifizierten Partnern jeden Schritt bei Ihrem rechtssicheren und stressfreien Immobilienkauf in Kroatien.
Füllen Sie das Formular aus und ich melde mich gerne zum gewünschten Zeitpunkt bei Ihnen.
Bis bald
Exposé mitnehmen?
Laden Sie unser PDF-Exposé herunter und Sie haben die wichtigste Objektdaten & Bilder immer zur Hand
Exposé mitnehmen?
Nehmen Sie Kontakt mit uns auf, ein Exposé schicken wir gerne per E-Mail
Ihre Traum-Immobilie noch nicht gefunden?
Besuchen Sie diese Seiten!


















