MODERNE EG-WOHNUNG AUF ČIOVO MIT SÜDTERRASSE, MEERBLICK & GARAGE
Lage & Außenbereich
Auf der Insel Čiovo, nicht weit von Trogir, steht dieses moderne Wohnhaus, umgeben von neuen Wohnhäusern. Eine typische dalmatinische Mischung: grüne Landschaft, Meernähe und alles Wichtige für den Alltag gleich um die Ecke. Die Hanglage bringt zwei Vorteile: Privatsphäre und einen weiten Blick bis zur Küste. Weitblick inklusive. Strände, Spazierwege und Freizeitmöglichkeiten? Erreichen Sie alles bequem in ein paar Minuten.
Das Gebäude umfasst 15 Wohnungen und wird mit einem Aufzug ausgestattet. Jede Wohnung bekommt einen eigenen Garagenplatz im Untergeschoss, natürlich im Preis enthalten. Sie parken bequem in der hauseigenen Garage. Kein Parkplatzsuchen im Sommer.
Das Haus entsteht bis 2026 in solider Bauweise. Es bietet modernen Wohnkomfort und ist so geplant, dass Sie langfristig Energie sparen. Die Umgebung? Ruhig, gepflegt und geprägt von neuen Wohnhäusern.
Innenraum & Interieur
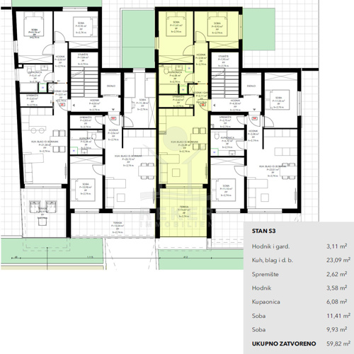
Die Wohnung ist 59,82 m² groß – praktisch aufgeteilt. Sie haben einen Wohn- und Essbereich mit offener Küche (23,09 m²), zwei Schlafzimmer (11,41 m² und 9,93 m²), ein Bad (6,08 m²), einen Flur (3,58 m²), einen Abstellraum (2,62 m²) und einen Eingangsbereich mit Platz für die Garderobe (3,11 m²).
Alle Räume sind klimatisiert – zum Kühlen und Heizen. Im Bad sorgt eine Fußbodenheizung für angenehme Wärme im Winter. Ein Extra, das selten ist: Sie entscheiden mit – bei den Bodenfliesen, der Badeinrichtung sowie bei Innen- und Eingangstüren. Ganz nach Ihrem Geschmack.
Draußen gehört eine große Süd-Terrasse dazu – 14,47 m², sonnig und auf Erdgeschosshöhe. Mehr Sonne geht kaum. Morgens frühstücken, abends aufs Meer blicken: Von hier aus schauen Sie über die Bucht bis zu den Inseln Brač und Šolta.
Die Erdgeschosswohnung erwartet Sie in Trogir!
- Ort: Trogir (Stadt)
- Einwohnerzahl: 13.260 (2011)
- Region: Dalmatien-Split
- Autobahnentfernung: ca. 18 km *
- Nächster Flughafen: Split / ca. 5 km *
Immobiliendaten
- Objektart: Wohnung
- Objekttyp: Erdgeschosswohnung
- Baujahr: 2026
- ID: 9360
- Kaufpreis: 268.000 €
- Provision: 3,75 % inkl. MwSt. in Kroatien
- Wohnfläche: 74 m²
- Anzahl Zimmer: 3
- Anzahl Schlafzimmer: 2
- Anzahl Badezimmer: 1
- Land: Kroatien
- Region: Dalmatien-Split
- Ort: Trogir
- Meerentfernung: 400 m
Haben Sie Interesse die schöne Erdgeschosswohnung zu besitzen?
Nehmen Sie gerne Kontakt mit mir auf!
Ich bin Heiner Reker, Gründer und
Geschäftsführer von Reker Immobilien d.o.o. Ich begleite Sie bei Ihrer aufregenden Reise in die Welt der Immobilien in Kroatien.
Gerne organisiere ich persönlich mit meinen qualifizierten Partnern jeden Schritt bei Ihrem rechtssicheren und stressfreien Immobilienkauf in Kroatien.
Füllen Sie das Formular aus und ich melde mich gerne zum gewünschten Zeitpunkt bei Ihnen.
Bis bald
Exposé mitnehmen?
Laden Sie unser PDF-Exposé herunter und Sie haben die wichtigste Objektdaten & Bilder immer zur Hand
Exposé mitnehmen?
Nehmen Sie Kontakt mit uns auf, ein Exposé schicken wir gerne per E-Mail
Ihre Traum-Immobilie noch nicht gefunden?
Besuchen Sie diese Seiten!













