SONNE, RUHE, SPA: ERDGESCHOSSWOHNUNG MIT EIGENER TERRASSE UND KOMFORT
Lage & Außenbereich
Nur rund einen Kilometer vom Meer entfernt und mitten im Grünen: In Bilice, nahe Vodice, steht dieses moderne Apartmenthaus. Die Lage? Ruhig. Kein Durchgangsverkehr, kein Lärm. Dafür viel Natur. Und trotzdem alles gut erreichbar. Das Haus liegt in einem kleinen Resort – ideal, wenn Sie Erholung suchen und trotzdem flexibel bleiben möchten. Das Gebäude hat fünf Wohnungen. Zwei im Erdgeschoss, je eine im ersten und zweiten Stock. Dazu eine Maisonette über zwei Etagen. Die Architektur ist klar, zeitgemäß, praktisch. Gebaut für das ganze Jahr.
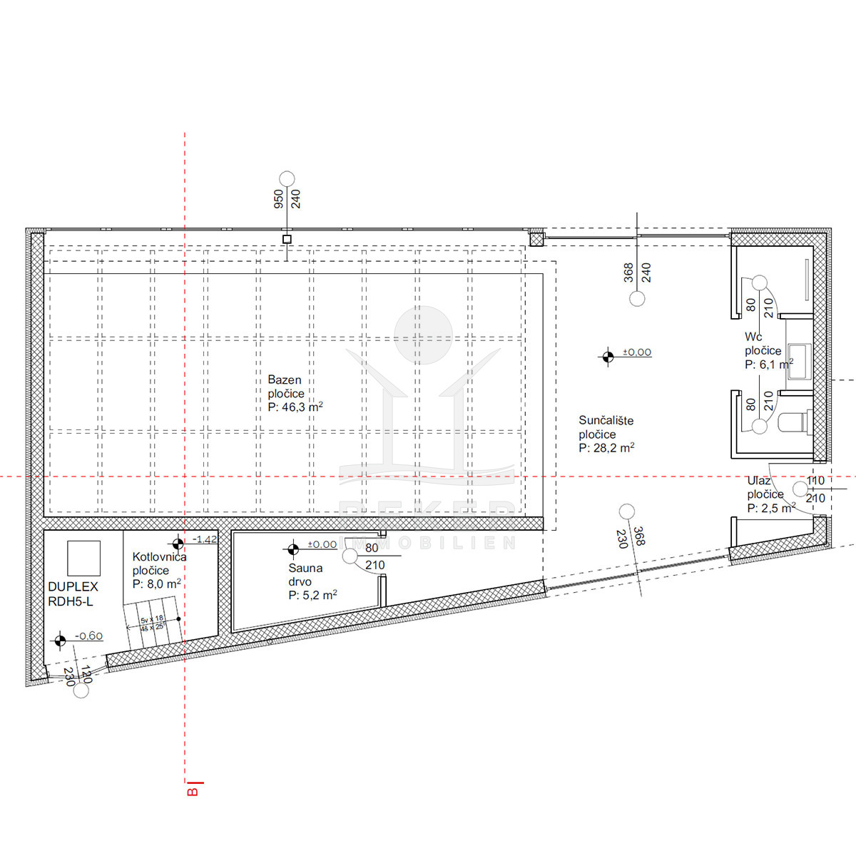
Draußen gibt’s einiges zu entdecken: Ein großer Indoor-Pool, der sich im Sommer öffnen lässt. Zwei Saunen. Ein Fitnessraum. Und wer mag, spielt eine Runde Tennis oder Tischtennis. Für jede Wohnung gibt’s einen Parkplatz – und zwei Ladestationen für E-Autos stehen auch bereit.
Innenraum & Interieur
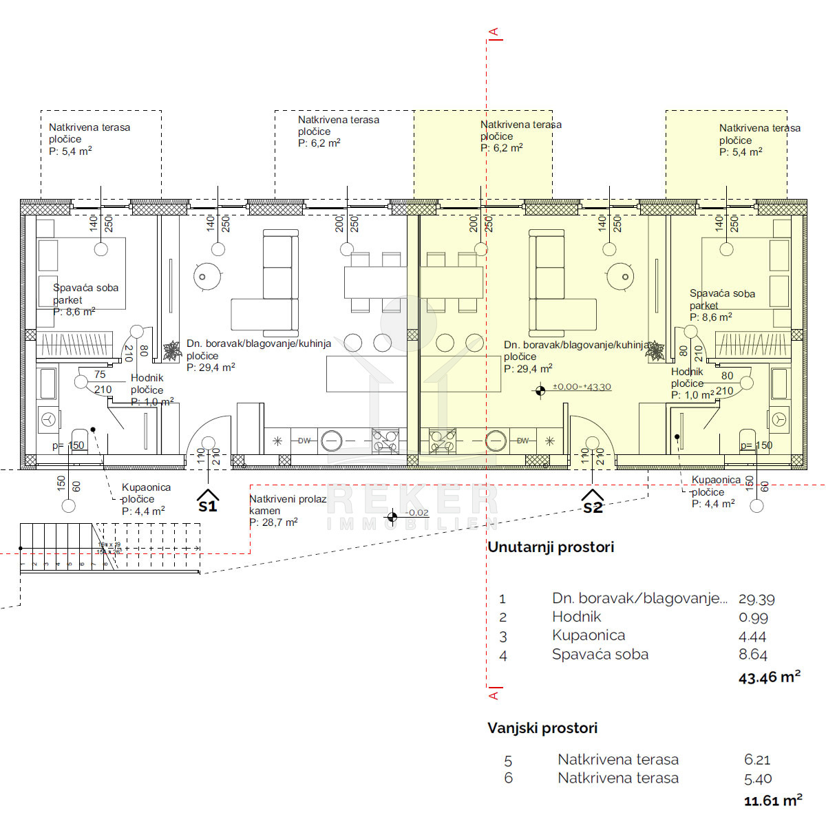
Diese Wohnung liegt im Erdgeschoss und bietet mit 43 m² Wohnfläche genau das, was viele suchen: durchdachte Raumaufteilung, moderne Technik und einen Platz im Grünen. Der offene Wohnbereich mit integrierter Küche wirkt hell und freundlich – viel Platz zum Kochen, Wohnen und Entspannen. Die großen Fenster öffnen sich direkt zu den beiden überdachten Terrassen.
Das Schlafzimmer hat einen warmen Parkettboden und genügend9 Raum für Doppelbett und Kleiderschrank. Das Bad ist mit Fliesen ausgestattet, funktional und bequem – auch hier sorgt die Fußbodenheizung für ein angenehmes Raumklima. Genauso wie in allen anderen Bereichen der Wohnung. Draußen stehen zwei private Terrassen zur Verfügung.
Immobiliendaten
- Objektart: Wohnung
- Objekttyp: Erdgeschosswohnung
- Baujahr: 2026
- ID: 8956
- Kaufpreis: 249.000 €
- Provision: 3,75 % inkl. MwSt. in Kroatien
- Wohnfläche: 55 m²
- Anzahl Zimmer: 2
- Anzahl Schlafzimmer: 1
- Anzahl Badezimmer: 1
- Land: Kroatien
- Region: Dalmatien-Sibenik
- Ort: Bilice
- Lage: Siedlung
- Meerentfernung: 1 km
- Ortsmitte: 2 km
Haben Sie Interesse die schöne Erdgeschosswohnung zu besitzen?
Nehmen Sie gerne Kontakt mit mir auf!
Ich bin Heiner Reker, Gründer und
Geschäftsführer von Reker Immobilien d.o.o. Ich begleite Sie bei Ihrer aufregenden Reise in die Welt der Immobilien in Kroatien.
Gerne organisiere ich persönlich mit meinen qualifizierten Partnern jeden Schritt bei Ihrem rechtssicheren und stressfreien Immobilienkauf in Kroatien.
Füllen Sie das Formular aus und ich melde mich gerne zum gewünschten Zeitpunkt bei Ihnen.
Bis bald
Exposé mitnehmen?
Laden Sie unser PDF-Exposé herunter und Sie haben die wichtigste Objektdaten & Bilder immer zur Hand
Exposé mitnehmen?
Nehmen Sie Kontakt mit uns auf, ein Exposé schicken wir gerne per E-Mail
Ihre Traum-Immobilie noch nicht gefunden?
Besuchen Sie diese Seiten!









