LEBENSQUALITÄT AUF ALLEN EBENEN: MODERNE NEUBAUWOHNUNG IM ERDGESCHOSS AUF KRK
Neubauwohnung im begehrten Baska
Das Apartment bietet nicht nur eine moderne Ausstattung, sondern auch eine erstklassige Lage. Baska ist einer der beliebtesten Ferienorte in Kroatien und beeindruckt mit einem 2 km langen Feinkieselstrand, der flach abfallend und von Wein- und Olivengärten umgeben ist. Die Stadt selbst besticht mit ihrer charakteristischen Architektur, zahlreichen Kulturdenkmälern und einem breiten Angebot an Geschäften, Restaurants und Unterhaltungsmöglichkeiten entlang der Uferpromenade. Die grüne Vegetation und sanfte Hügellandschaft verleihen der Umgebung ein idyllisches Flair. Von der Wohnung aus sind sowohl das Meer als auch Einkaufsmöglichkeiten leicht erreichbar, sodass einem komfortablen und abwechslungsreichen Aufenthalt nichts im Wege steht.
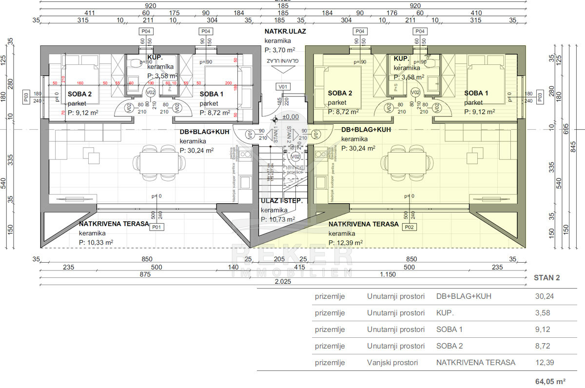
Inmitten einer sanften Hügellandschaft erstreckt sich diese moderne Neubau-Erdgeschosswohnung auf einem Grundstück von 155 m² mit einer Wohnfläche von 64 m². Das Gebäude beherbergt insgesamt 4 Wohnungen auf 2 Etagen. Der Bau aus dem Jahr 2024 verwendet hochwertige Materialien wie keramische Bodenbeläge, hochwertige Sanitäranlagen und energieeffiziente Raumklimatisierung. Die geräumige Wohnung mit 62 m² Wohnfläche besticht durch eingebaute hochwertige PVC-Zimmerei, elektrische Jalousien und einbruchsichere Türen. Zwei Parkplätze stehen zur Verfügung, um den Komfort zu vervollständigen.
Die überdachte Terrasse mit einer Fläche von 12,39 m² lädt dazu ein, gemütliche Stunden im Freien zu verbringen und die Ruhe der Umgebung zu genießen. Mit Blick auf den Garten bietet die Terrasse eine wahre Oase der Erholung, perfekt, um Energie zu tanken und die Natur zu bewundern. Diese moderne Erdgeschosswohnung bietet nicht nur Komfort, sondern auch die Möglichkeit, eine harmonische Verbindung zum umliegenden Gelände herzustellen.
Zukünftig klimatisiert für höchsten Komfort
Die Immobilie bietet eine optimale Raumaufteilung mit einem Flur, einem offenen Konzept aus Wohn-, Ess- und Küchenbereich, sowie zwei Schlafzimmern und einem Badezimmer. Für zusätzlichen Wohnraum im Freien gibt es einen Zugang zur überdachten Terrasse und einem weiteren Außenbereich. Die Klimaanlage ist vorgesehen und sorgt für angenehme Temperaturen das ganze Jahr über. Genießen Sie den Komfort und die Flexibilität dieses modernen Wohnraums, sowohl drinnen als auch draußen.
Die Erdgeschosswohnung erwartet Sie in Baška!
- Ort: Baška (Dorf)
- Einwohnerzahl: 1.728 (2011)
- Region: Kvarner-Bucht
- Insel: Krk
- Autobahnentfernung: ca. 47 km *
- Nächster Flughafen: Rijeka / ca. 44 km *
Immobiliendaten
- Objektart: Wohnung
- Objekttyp: Erdgeschosswohnung
- Baujahr: 2024
- ID: 7470
- Kaufpreis: 260.000 €
- Provision: 3,75 % inkl. MwSt. in Kroatien
- Wohnfläche: 64 m²
- Gartenfläche: 155 m²
- Anzahl Zimmer: 3
- Anzahl Schlafzimmer: 2
- Anzahl Badezimmer: 1
- Land: Kroatien
- Region: Kvarner-Bucht
- Ort: Baška
- Lage: Ortslage
- Meerentfernung: 4 km
Haben Sie Interesse die schöne Erdgeschosswohnung zu besitzen?
Nehmen Sie gerne Kontakt mit mir auf!
Ich bin Heiner Reker, Gründer und
Geschäftsführer von Reker Immobilien d.o.o. Ich begleite Sie bei Ihrer aufregenden Reise in die Welt der Immobilien in Kroatien.
Gerne organisiere ich persönlich mit meinen qualifizierten Partnern jeden Schritt bei Ihrem rechtssicheren und stressfreien Immobilienkauf in Kroatien.
Füllen Sie das Formular aus und ich melde mich gerne zum gewünschten Zeitpunkt bei Ihnen.
Bis bald
Exposé mitnehmen?
Laden Sie unser PDF-Exposé herunter und Sie haben die wichtigste Objektdaten & Bilder immer zur Hand
Exposé mitnehmen?
Nehmen Sie Kontakt mit uns auf, ein Exposé schicken wir gerne per E-Mail
Ihre Traum-Immobilie noch nicht gefunden?
Besuchen Sie diese Seiten!












