GENIESSEN SIE DAS LEBEN AUF EINER DER SCHÖNSTEN INSELN KROATIENS: NEUBAU-ERDGESCHOSSWOHNUNG MIT GARTEN
Neubau-Erdgeschosswohnung auf der Insel Krk, Nähe Baška
Die Erdgeschosswohnung befindet sich in der Nähe von Baška auf der beliebten Insel Krk. Die Lage bietet sowohl Nähe zum Meer als auch zu Einkaufsmöglichkeiten. Baška, bekannt für seinen 2 km langen Feinkieselstrand, liegt in unmittelbarer Nähe und begeistert mit einem atemberaubenden Panorama, umgeben von Wein- und Olivengärten. Die Stadt bietet zahlreiche kulturelle Sehenswürdigkeiten, Einkaufsmöglichkeiten und Restaurants mit lokalen und internationalen Köstlichkeiten. In den Abendstunden sorgen Bars und Tanzterrassen für Unterhaltung. Aktivurlauber finden hier ein breites Angebot an Wassersportmöglichkeiten, Rad- und Wanderwegen sowie Kletterparks.
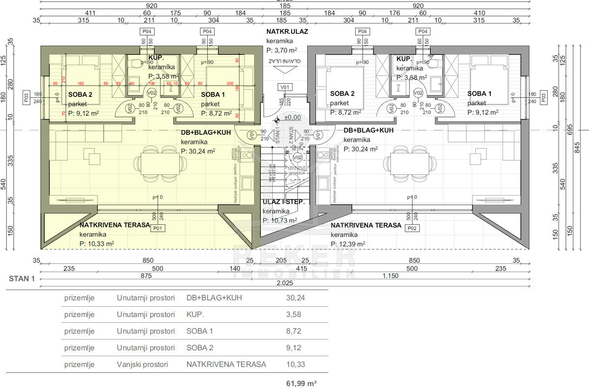
Inmitten einer sanften Hügellandschaft erstreckt sich diese moderne Neubau-Erdgeschosswohnung auf einem Grundstück von 155 m² mit einer Wohnfläche von 64 m². Das Gebäude beherbergt insgesamt 4 Wohnungen auf 2 Etagen. Der Bau aus dem Jahr 2024 verwendet hochwertige Materialien wie keramische Bodenbeläge, hochwertige Sanitäranlagen und energieeffiziente Raumklimatisierung. Die geräumige Wohnung mit 62 m² Wohnfläche besticht durch eingebaute hochwertige PVC-Zimmerei, elektrische Jalousien und einbruchsichere Türen. Zwei Parkplätze bieten Komfort und Bequemlichkeit für Bewohner und Besucher.
Die 12,39 m² große überdachte Terrasse lädt Bewohner ein, die beruhigende Atmosphäre und idyllische Umgebung zu genießen. Ein Ort, an dem man verweilen und Energie tanken kann. Der angrenzende Garten bietet zusätzlichen Platz für Erholung im Freien.
Modernes Wohnen mit Klimakomfort
Die Wohnung wird mit einer Klimaanlage ausgestattet, die für angenehme Temperaturen sorgt. Der Grundriss umfasst einen Flur, ein offenes Konzept mit einem großzügigen Wohn-, Ess- und Küchenbereich, zwei gemütliche Schlafzimmer und ein Badezimmer. Von diesem einladenden Innenbereich gelangen Sie auf die überdachte Terrasse, die einen weiteren Aufenthaltsbereich im Freien bietet. Hier können Sie die Vorteile des Innen- und Außenbereichs nahtlos miteinander verbinden und das Leben im Freien in vollen Zügen genießen.
Die Erdgeschosswohnung erwartet Sie in Baška!
- Ort: Baška (Dorf)
- Einwohnerzahl: 1.728 (2011)
- Region: Kvarner-Bucht
- Insel: Krk
- Autobahnentfernung: ca. 47 km *
- Nächster Flughafen: Rijeka / ca. 44 km *
Immobiliendaten
- Objektart: Wohnung
- Objekttyp: Erdgeschosswohnung
- Baujahr: 2024
- ID: 7469
- Kaufpreis: 260.000 €
- Provision: 3,75 % inkl. MwSt. in Kroatien
- Wohnfläche: 64 m²
- Gartenfläche: 155 m²
- Anzahl Zimmer: 3
- Anzahl Schlafzimmer: 2
- Anzahl Badezimmer: 1
- Land: Kroatien
- Region: Kvarner-Bucht
- Ort: Baška
- Lage: Ortslage
- Meerentfernung: 4 km
Haben Sie Interesse die schöne Erdgeschosswohnung zu besitzen?
Nehmen Sie gerne Kontakt mit mir auf!
Ich bin Heiner Reker, Gründer und
Geschäftsführer von Reker Immobilien d.o.o. Ich begleite Sie bei Ihrer aufregenden Reise in die Welt der Immobilien in Kroatien.
Gerne organisiere ich persönlich mit meinen qualifizierten Partnern jeden Schritt bei Ihrem rechtssicheren und stressfreien Immobilienkauf in Kroatien.
Füllen Sie das Formular aus und ich melde mich gerne zum gewünschten Zeitpunkt bei Ihnen.
Bis bald
Exposé mitnehmen?
Laden Sie unser PDF-Exposé herunter und Sie haben die wichtigste Objektdaten & Bilder immer zur Hand
Exposé mitnehmen?
Nehmen Sie Kontakt mit uns auf, ein Exposé schicken wir gerne per E-Mail
Ihre Traum-Immobilie noch nicht gefunden?
Besuchen Sie diese Seiten!












