NEUBAU DOPPELHAUSHÄLFTE MIT POOL & DACHTERRASSE IN VODICE
Neubau in ruhiger Stadtrandlage von Vodice
Die Haushälfte befindet sich in einer ruhigen Umgebung am Stadtrand von Vodice, wo Sie die Ruhe und Abgeschiedenheit einer naturnahen Wohnlage genießen können. Das Meer und das lebendige Zentrum von Vodice sind nur etwa 1500 Meter entfernt, sodass Sie die Annehmlichkeiten der Stadt schnell erreichen können. Vodice selbst ist eine malerische Küstenstadt, die zwischen den historischen Städten Šibenik und Biograd na Moru liegt und Ihnen eine Vielzahl an Freizeitaktivitäten und kulinarischen Erlebnissen bietet.
Das Haus erstreckt sich über 3 Etagen und bietet Ihnen großzügige 183 m² Wohnfläche in einem stilvollen Neubau. Mit wichtigen Ausstattungsmerkmalen wie einer 8 cm dicken Styropor-Fassade, PVC-Fenstern, elektrischen Jalousien und Insektenschutzgittern wird hier hoher Wohnkomfort garantiert. Klimaanlagen werden in den Schlafzimmern und im Wohnbereich integriert, und die Fußbodenheizung sorgt in den Badezimmern und im Wohnbereich für wohlige Wärme. Die Fertigstellung des Hauses ist für 2026 geplant, und es erwarten Sie 2 Parkplätze.
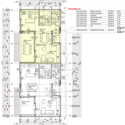
Ein besonderes Highlight ist die einladende überdachte Terrasse, die nahtlos zum 26 m² großen Swimmingpool führt. Hier können Sie an warmen Sommertagen entspannen oder Erfrischung im Wasser genießen. Die überdachte Terrasse bietet Ihnen den perfekten Ort für gesellige Zusammenkünfte mit Familie oder Freunden, unabhängig von den Wetterbedingungen.
Das Erdgeschoss begrüßt Sie mit einem überdachten Eingang, der zum einladenden Eingangsbereich führt. Hier finden Sie ein praktisches WC sowie einen Abstellraum. Die moderne Küche geht nahtlos in das Esszimmer über und bietet eine angenehme Gestaltung für gesellige Abende. Der Wohnbereich hat einen direkten Zugang zur überdachten Terrasse, ideal für entspannte Stunden im Freien.
Im 1. Obergeschoss erwartet Sie ein gemütlicher Flur, der zu einem Badezimmer und 2 einladenden Schlafzimmern führt. Das Master-Schlafzimmer bietet 1 eigenes Badezimmer sowie Zugang zu einer weiteren überdachten Terrasse, die für private Rückzugsorte sorgt.
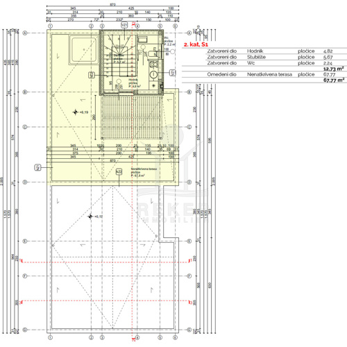
Das 2. Obergeschoss des überzeugt mit einem Flur und einem praktischen zusätzlichen WC. Die großartige Dachterrasse von 68 m² bietet Ihnen weiteren Außenbereich unter freien Himmel.




Das Adriatische Meer
- Meerentfernung: 2 km
Die Immobilie
- Doppelhaushälfte in Vodice, Dalmatien-Sibenik
- Baujahr: 2025
- Zustand: Erstbezug
- Wohnfläche: 183 m²
- Etagenzahl: 3
- Überdachte Terrasse
Mediterraner Garten
- Swimming Pool
- Steinmauer
Ausstattung
- Anzahl Zimmer: 5
- Anzahl Schlafzimmer: 3
- Anzahl Badezimmer: 2
- Heizung: Fußbodenheizung, Klimaanlage
Die Doppelhaushälfte erwartet Sie in Vodice!
- Ort: Vodice (Stadt)
- Einwohnerzahl: 8.875 (2011)
- Region: Dalmatien-Sibenik
- Autobahnentfernung: ca. 16 km *
- Nächster Flughafen: Zadar / ca. 62 km *
Immobiliendaten
- Objektart: Haus
- Objekttyp: Doppelhaushälfte
- Baujahr: 2025
- ID: 8222
- Kaufpreis: 570.000 €
- Provision: 3,75 % inkl. MwSt. in Kroatien
- Wohnfläche: 183 m²
- Anzahl Zimmer: 5
- Anzahl Schlafzimmer: 3
- Anzahl Badezimmer: 2
- Land: Kroatien
- Region: Dalmatien-Sibenik
- Ort: Vodice
- Lage: Stadtrand
- Meerentfernung: 2 km
Haben Sie Interesse die schöne Doppelhaushälfte zu besitzen?
Nehmen Sie gerne Kontakt mit mir auf!
Ich bin Heiner Reker, Gründer und
Geschäftsführer von Reker Immobilien d.o.o. Ich begleite Sie bei Ihrer aufregenden Reise in die Welt der Immobilien in Kroatien.
Gerne organisiere ich persönlich mit meinen qualifizierten Partnern jeden Schritt bei Ihrem rechtssicheren und stressfreien Immobilienkauf in Kroatien.
Füllen Sie das Formular aus und ich melde mich gerne zum gewünschten Zeitpunkt bei Ihnen.
Bis bald
Exposé mitnehmen?
Laden Sie unser PDF-Exposé herunter und Sie haben die wichtigste Objektdaten & Bilder immer zur Hand
Exposé mitnehmen?
Nehmen Sie Kontakt mit uns auf, ein Exposé schicken wir gerne per E-Mail
Ihre Traum-Immobilie noch nicht gefunden?
Besuchen Sie diese Seiten!



