PERFEKTER MIX AUS STIL UND LAGE: NEUBAU DOPPELHAUSHÄLFTE IN FUSSNÄHE ZUM MEER IN VODICE
Neubau Doppelhaushälfte in Vodice
Die moderne Doppelhaushälfte befindet sich in einer attraktiven Umgebung von Vodice. Sie genießen hier die Annehmlichkeiten der Nähe zum Meer und dem Zentrum von Vodice, das bequem zu Fuß erreichbar ist. In der malerischen Küstenstadt Vodice erwarten Sie zahlreiche Restaurants, Bars, Geschäfte und Apotheken, die das tägliche Leben erleichtern. Die lange Uferpromenade und die Altstadt von Vodice sind das Zentrum des Geschehens. Hier können Sie entspannt bummeln und das mediterrane Flair genießen. Die Umgebung bietet zudem viele Möglichkeiten für Ausflüge in die Natur und Kultur. Besuchen Sie den Nationalpark Krka mit seinen beeindruckenden Wasserfällen oder den Naturpark Vransko See. Tauchen Sie ein in die Schönheit von Biograd und erkunden Sie den Nationalpark Kornati. Vodice ist der perfekte Ausgangspunkt, um die Schönheit der dalmatinischen Küste zu entdecken.
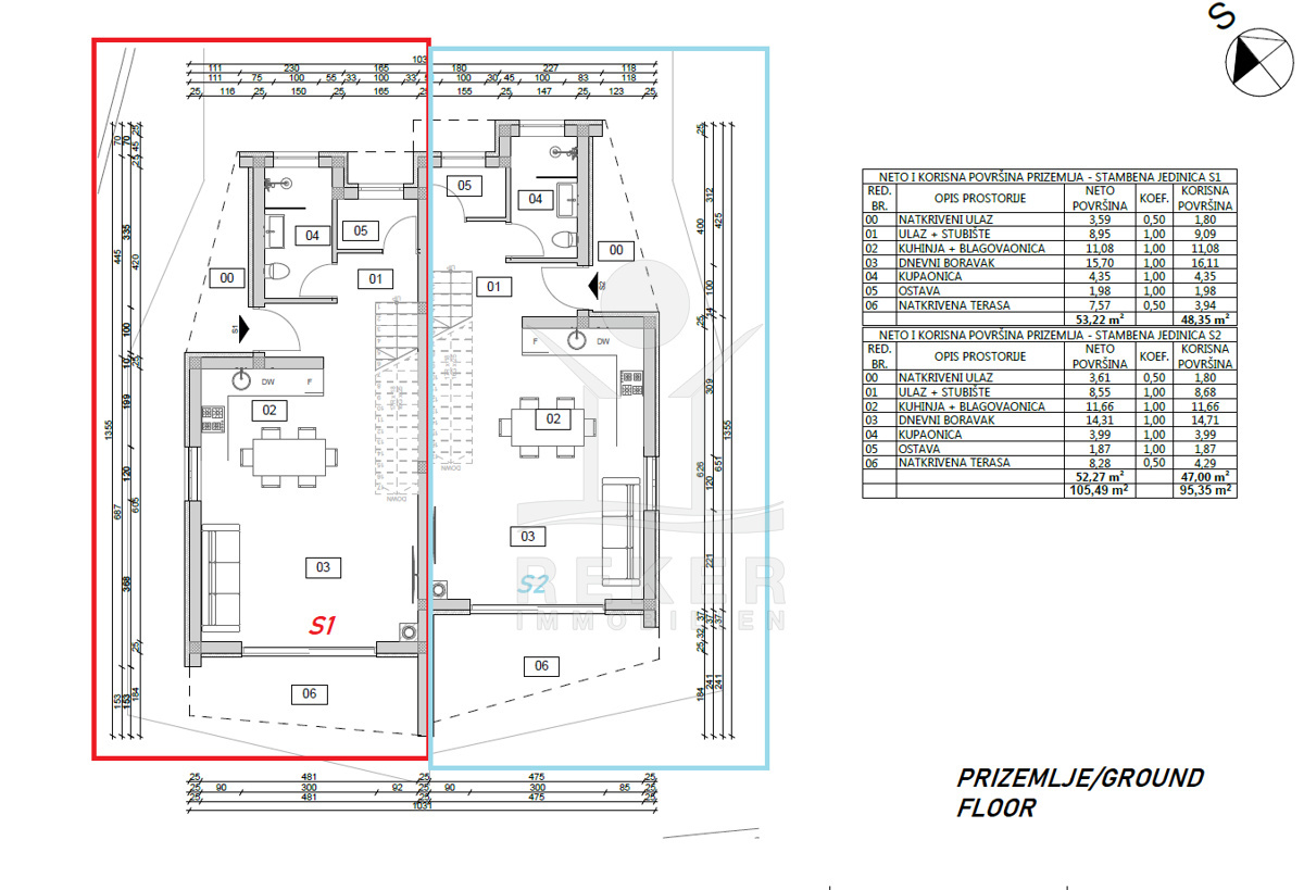
Das Anwesen bietet eine Gartenfläche von 150 m² und erstreckt sich über 2 Etagen mit insgesamt 105 m² Wohnfläche. Derzeit wird sie mit hochwertigen Materialien nach den neuesten Baustandards erbaut, wie Styroporfassade, anthrazitfarbene PVC-Zimmerei, elektrische Jalousien und Klimaanlage. Geplant ist die Fertigstellung Anfang 2025, was bedeutet, dass Sie ein zeitgemäßes und komfortables Zuhause erwarten können.
Die 8,28 m² große Terrasse im Außenbereich bietet einen idealen Platz für gesellige Zusammenkünfte mit Familie und Freunden. Hier können Sie die warmen Sommerabende im Freien genießen und unvergessliche Momente schaffen. Mit 2 Stellplätzen ist auch für ausreichend Parkmöglichkeiten gesorgt. Diese moderne Neubau-Doppelhaushälfte verspricht ein zeitgemäßes und komfortables Wohnen für Ihre Familie.
Modernes Design mit Klimatisierungsoption
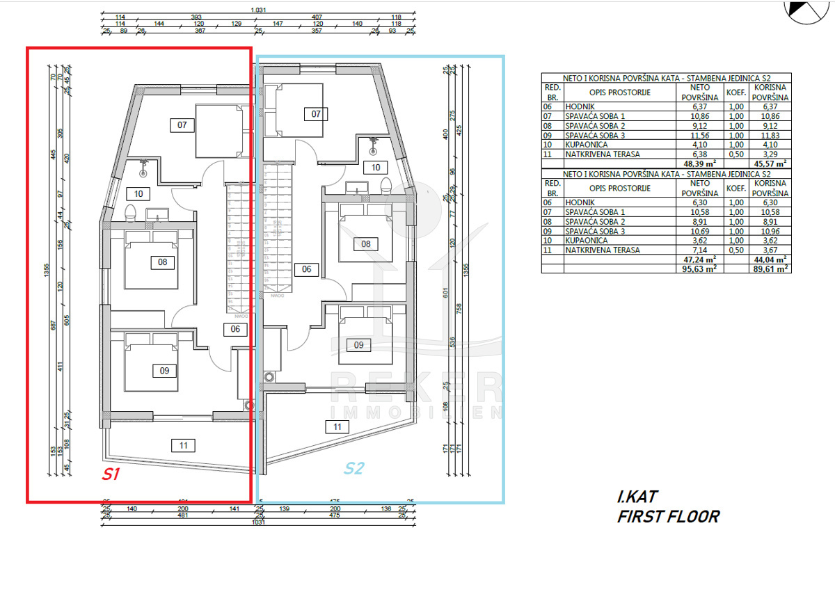
Die Wohnung wird mit einer Klimaanlage ausgestattet und bietet ein modernes Wohnerlebnis. Im Erdgeschoss mit 52 m² Nettofläche befinden sich ein offenes Konzept mit Wohn-, Ess- und Küchenbereich, ein Abstellraum, ein Badezimmer und Zugang zur Terrasse. Eine interne Treppe führt in den 1. Stock, mit einem Flur, 3 Schlafzimmern, einem Badezimmer und Zugang zu einer 7,14 m² großen Loggia/Balkon. Die Fläche dieser Etage beträgt 47 m².
Die Doppelhaushälfte erwartet Sie in Vodice!
- Ort: Vodice (Stadt)
- Einwohnerzahl: 8.875 (2011)
- Region: Dalmatien-Sibenik
- Autobahnentfernung: ca. 16 km *
- Nächster Flughafen: Zadar / ca. 62 km *
Immobiliendaten
- Objektart: Haus
- Objekttyp: Doppelhaushälfte
- Baujahr: 2024
- ID: 7259
- Kaufpreis: 345.000 €
- Provision: 3,75 % inkl. MwSt. in Kroatien
- Grundstücksgröße: 150 m²
- Wohnfläche: 105 m²
- Anzahl Zimmer: 4
- Anzahl Schlafzimmer: 3
- Anzahl Badezimmer: 2
- Land: Kroatien
- Region: Dalmatien-Sibenik
- Ort: Vodice
- Lage: Stadtzentrum
Haben Sie Interesse die schöne Doppelhaushälfte zu besitzen?
Nehmen Sie gerne Kontakt mit mir auf!
Ich bin Heiner Reker, Gründer und
Geschäftsführer von Reker Immobilien d.o.o. Ich begleite Sie bei Ihrer aufregenden Reise in die Welt der Immobilien in Kroatien.
Gerne organisiere ich persönlich mit meinen qualifizierten Partnern jeden Schritt bei Ihrem rechtssicheren und stressfreien Immobilienkauf in Kroatien.
Füllen Sie das Formular aus und ich melde mich gerne zum gewünschten Zeitpunkt bei Ihnen.
Bis bald
Exposé mitnehmen?
Laden Sie unser PDF-Exposé herunter und Sie haben die wichtigste Objektdaten & Bilder immer zur Hand
Exposé mitnehmen?
Nehmen Sie Kontakt mit uns auf, ein Exposé schicken wir gerne per E-Mail
Ihre Traum-Immobilie noch nicht gefunden?
Besuchen Sie diese Seiten!








