NEUBAU DOPPELHAUSHÄLFTE IN VODICE, NUR EINEN SPAZIERGANG VOM MEER & STADTZENTRUM ENTFERNT
Moderne Neubau Doppelhaushälfte in Vodice
Die Haushälfte besticht durch ihre attraktive Lage in einer ruhigen Umgebung von Vodice. Das Zentrum von Vodice als auch das Meer sind bequem zu Fuß zu erreichen. In der malerischen Küstenstadt Vodice finden Sie zahlreiche Möglichkeiten zum Ausgehen in Restaurants, Bars und Cafés, sowie auch Geschäfte und Apotheken für den täglichen Bedarf. Die Umgebung bietet zudem viele Freizeitmöglichkeiten und Ausflugsziele, wie den Nationalpark Krka mit seinen beeindruckenden Wasserfällen oder den Naturpark Vransko See. Die Nähe zu beliebten Urlaubsdestinationen wie Sibenik und Biograd na Moru sowie die Möglichkeit, Ausflüge in den Nationalpark Kornati zu unternehmen, machen diese Doppelhaushälfte zu einem idealen Ausgangspunkt für Entdeckungstouren in der Region Dalmatien.
Das Anwesen erfreut sich an einem Grundstück mit einer Gartenfläche von 150 m² und einer Wohnfläche von 102 m². Derzeit entsteht das Gebäude mit hochwertigen Materialien und gemäß den modernsten Baustandards. Von der Styroporfassade bis zur Fußbodenheizung in den Bädern und im Wohnzimmer wird hier an jedes Detail gedacht. Die Fertigstellung ist für Anfang 2025 geplant, sodass Sie sich auf ein brandneues, zeitgemäßes Zuhause freuen können.
Der Außenbereich, mit einer Terrassenfläche von 7,57 m², bietet ausreichend Platz für gesellige Zusammenkünfte und Unterhaltung mit Familie und Freunden im Freien. Die perfekte Umgebung, um die Sommermonate und warmen Abende im Freien zu genießen. Mit 2 Parkplätzen auf dem Grundstück haben Sie immer genügend Platz für Ihre Fahrzeuge. Willkommen in Ihrem neuen Zuhause, das Komfort und Modernität vereint!
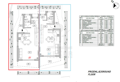
Komfortables Wohngefühl auf zwei Ebenen
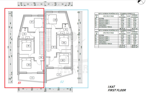
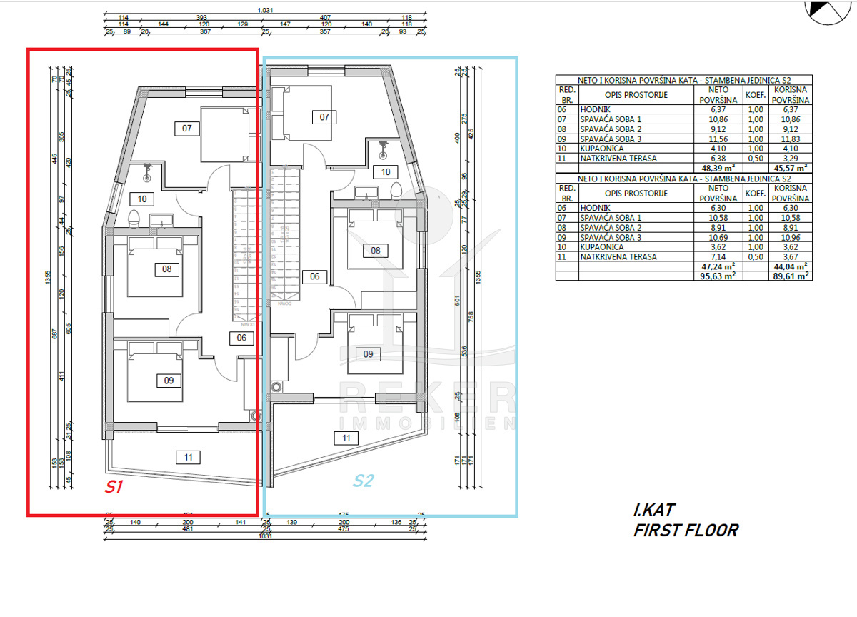
Das Haus wird noch durch eine Klimaanlage ergänzt. Das Erdgeschoss mit einer großzügigen Fläche von 53 m² bietet ein offenes Konzept mit einem Wohn-, Ess- und Küchenbereich, einem Badezimmer, einem Abstellraum und einem überdachten Eingang. Die Terrasse lädt zum Entspannen im Freien ein, während eine interne Treppe Sie in den oberen Stock führt. Der 1. Stock verfügt über einen Flur, drei Schlafzimmer, ein weiteres Badezimmer und einen 6,28 m² großen Balkon für gemütliche Stunden im Freien. Mit einer Fläche von insgesamt 48 m² bietet diese Etage Privatsphäre und Komfort für Sie und Ihre Familie.
Die Doppelhaushälfte erwartet Sie in Vodice!
- Ort: Vodice (Stadt)
- Einwohnerzahl: 8.875 (2011)
- Region: Dalmatien-Sibenik
- Autobahnentfernung: ca. 16 km *
- Nächster Flughafen: Zadar / ca. 62 km *
Immobiliendaten
- Objektart: Haus
- Objekttyp: Doppelhaushälfte
- Baujahr: 2024
- ID: 7258
- Kaufpreis: 345.000 €
- Provision: 3,75 % inkl. MwSt. in Kroatien
- Grundstücksgröße: 150 m²
- Wohnfläche: 102 m²
- Anzahl Zimmer: 4
- Anzahl Schlafzimmer: 3
- Anzahl Badezimmer: 2
- Land: Kroatien
- Region: Dalmatien-Sibenik
- Ort: Vodice
- Lage: Stadtzentrum
- Meerentfernung: 500 m
Haben Sie Interesse die schöne Doppelhaushälfte zu besitzen?
Nehmen Sie gerne Kontakt mit mir auf!
Ich bin Heiner Reker, Gründer und
Geschäftsführer von Reker Immobilien d.o.o. Ich begleite Sie bei Ihrer aufregenden Reise in die Welt der Immobilien in Kroatien.
Gerne organisiere ich persönlich mit meinen qualifizierten Partnern jeden Schritt bei Ihrem rechtssicheren und stressfreien Immobilienkauf in Kroatien.
Füllen Sie das Formular aus und ich melde mich gerne zum gewünschten Zeitpunkt bei Ihnen.
Bis bald
Exposé mitnehmen?
Laden Sie unser PDF-Exposé herunter und Sie haben die wichtigste Objektdaten & Bilder immer zur Hand
Exposé mitnehmen?
Nehmen Sie Kontakt mit uns auf, ein Exposé schicken wir gerne per E-Mail
Ihre Traum-Immobilie noch nicht gefunden?
Besuchen Sie diese Seiten!







