NEUBAU-DOPPELHAUSHÄLFTE IN SRIMA NUR 200 M VOM STRAND ENTFERNT
Lage & Außenbereich
In Srima, einem ruhigen Stadtteil von Vodice, erwartet Sie diese moderne Doppelhaushälfte. Zum Strand sind es nur 200 Meter, das Ortszentrum mit Restaurants und Geschäften erreichen Sie nach 550 Metern. Zwei Stellplätze direkt am Haus sorgen für kurze Wege und sicheren Komfort. Das Haus wird in solider Bauweise errichtet und ist im Herbst 2025 bezugsfertig. So genießen Sie von Beginn an moderne Standards und hochwertige Qualität.
Innenraum & Interieur
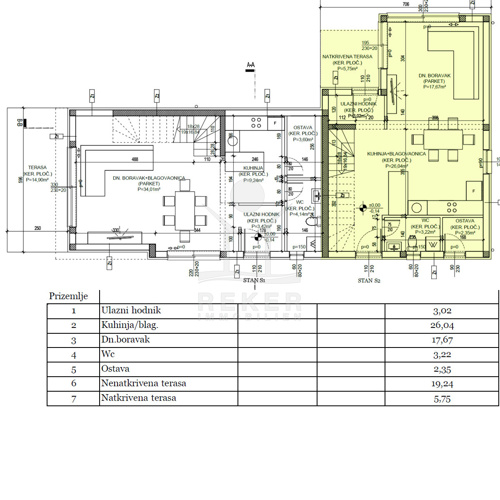
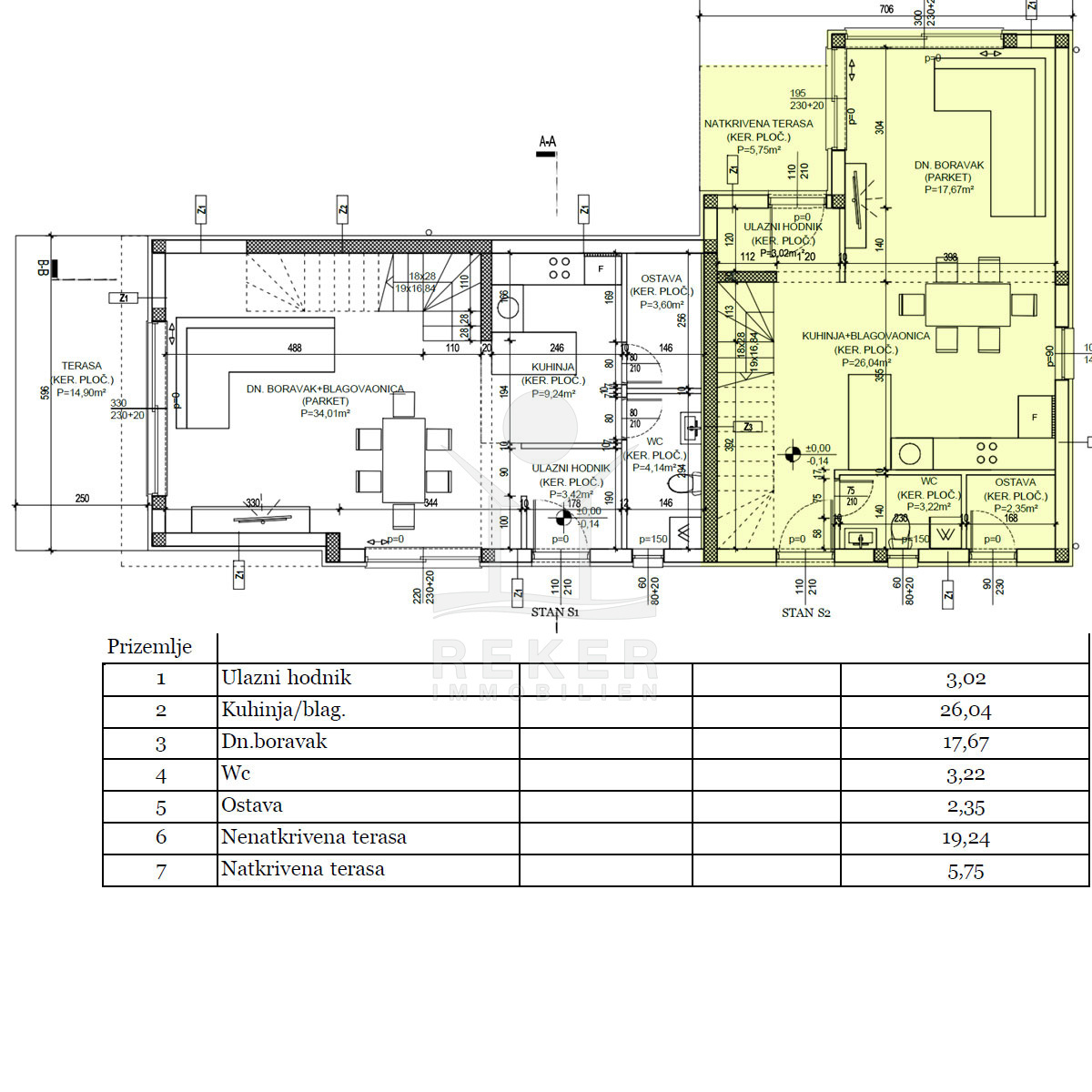
Im Erdgeschoss betreten Sie die Eingangshalle. Dahinter öffnet sich der Wohnbereich mit Küche, Esszimmer und Wohnzimmer. Von hier aus gelangen Sie auf zwei Terrassen, eine überdacht und eine offen, sowie in den 165 m² großen Garten mit privatem Pool. Gepflasterte Flächen erleichtern die Pflege und bringen Struktur.
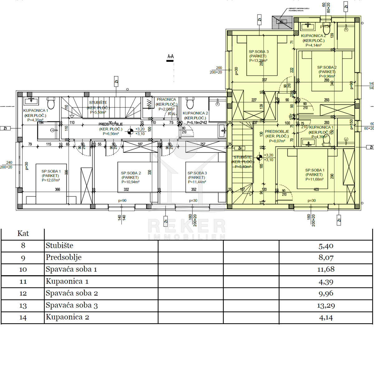
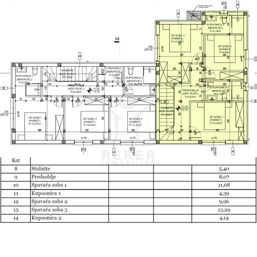
Im Obergeschoss finden Sie zwei Schlafzimmer, ein Badezimmer und das Hauptschlafzimmer mit eigenem Bad. Großzügige Glasfronten bringen Tageslicht in die Räume. Elektrische Jalousien und Moskitonetze ergänzen den Wohnkomfort. Zur Ausstattung gehören außerdem Fußbodenheizung in Küche, Wohnzimmer und Bädern, Klimaanlagen in allen Wohn- und Schlafräumen sowie moderne Sanitärausstattung. Auch eine freitragende Metalltreppe mit Holzverkleidung, SAT/TV-Anschlüsse in allen Zimmern, eine einbruchsichere Eingangstür, Glasgeländer und die Vorbereitung für Videoüberwachung sind vorhanden.
Die Doppelhaushälfte erwartet Sie in Vodice!
- Ort: Vodice (Stadt)
- Einwohnerzahl: 8.875 (2011)
- Region: Dalmatien-Sibenik
- Autobahnentfernung: ca. 16 km *
- Nächster Flughafen: Zadar / ca. 62 km *
Immobiliendaten
- Objektart: Haus
- Objekttyp: Doppelhaushälfte
- Baujahr: 2025
- ID: 9223
- Kaufpreis: 450.000 €
- Provision: 3,75 % inkl. MwSt. in Kroatien
- Grundstücksgröße: 165 m²
- Wohnfläche: 134 m²
- Anzahl Zimmer: 4
- Anzahl Schlafzimmer: 3
- Anzahl Badezimmer: 2
- Land: Kroatien
- Region: Dalmatien-Sibenik
- Ort: Vodice
- Lage: Stadtteil
- Meerentfernung: 200 m
Haben Sie Interesse die schöne Doppelhaushälfte zu besitzen?
Nehmen Sie gerne Kontakt mit mir auf!
Ich bin Heiner Reker, Gründer und
Geschäftsführer von Reker Immobilien d.o.o. Ich begleite Sie bei Ihrer aufregenden Reise in die Welt der Immobilien in Kroatien.
Gerne organisiere ich persönlich mit meinen qualifizierten Partnern jeden Schritt bei Ihrem rechtssicheren und stressfreien Immobilienkauf in Kroatien.
Füllen Sie das Formular aus und ich melde mich gerne zum gewünschten Zeitpunkt bei Ihnen.
Bis bald
Exposé mitnehmen?
Laden Sie unser PDF-Exposé herunter und Sie haben die wichtigste Objektdaten & Bilder immer zur Hand
Exposé mitnehmen?
Nehmen Sie Kontakt mit uns auf, ein Exposé schicken wir gerne per E-Mail
Ihre Traum-Immobilie noch nicht gefunden?
Besuchen Sie diese Seiten!




















