SONNENBADEN UND MEERESRAUSCHEN – IHR HAUS NUR SCHRITTE VOM STRAND

Lage & Außenbereich
In Srima, einem ruhigen Ortsteil nahe Vodice, wartet dieses moderne Neubauhaus auf Sie. Zum Strand sind es nur 250 Meter, das Ortszentrum mit Restaurants und Einkaufsmöglichkeiten erreichen Sie nach 550 Metern. Zwei Stellplätze direkt am Grundstück machen das Parken unkompliziert.
Das 105 m² große Grundstück bietet eine Terrasse, einen kleinen Garten mit mediterraner Note und einen privaten Pool von 2,8 × 6,4 Metern. Teile der Außenflächen sind gepflastert und verleihen dem Haus eine klare, moderne Ausstrahlung.
Innenraum & Interieur
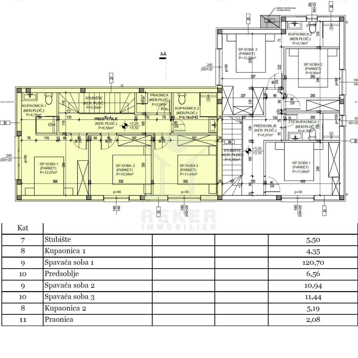
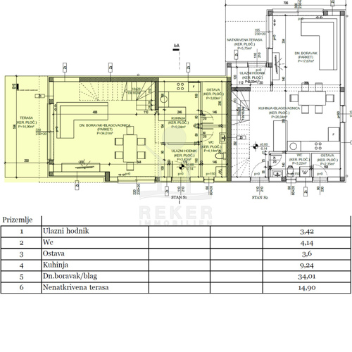
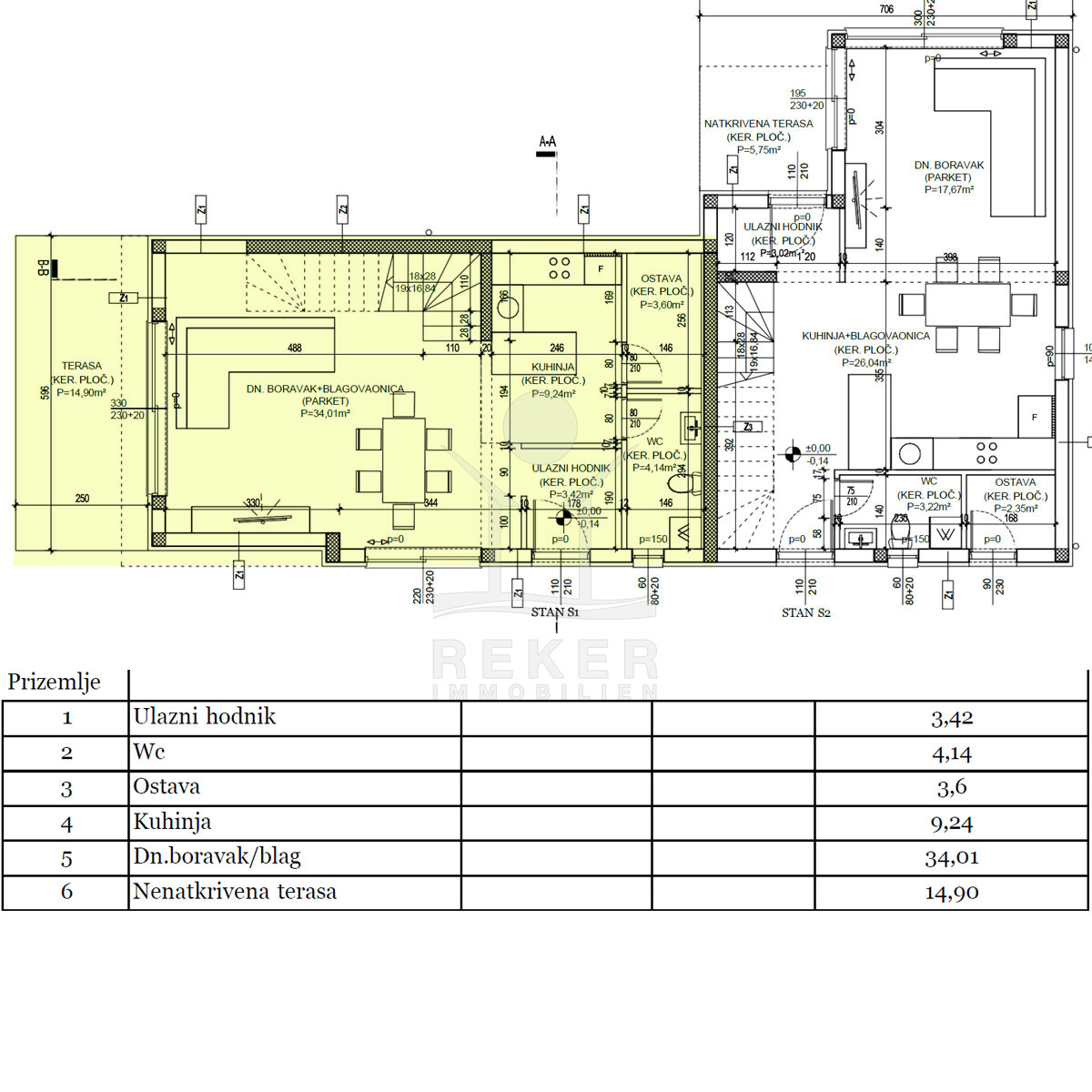
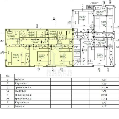
Im Erdgeschoss betreten Sie die Eingangshalle mit Gäste-WC und Speisekammer. Dahinter öffnet sich der Wohnbereich: Küche, Esszimmer und Wohnzimmer gehen ineinander über und führen direkt hinaus zu Terrasse und Pool. Die Innentreppe verbindet beide Etagen. Im Obergeschoss warten zwei Schlafzimmer, ein Badezimmer, eine praktische Waschküche sowie das Hauptschlafzimmer mit eigenem Bad. Große Fenster lassen viel Tageslicht ins Haus. Aluminium-Tischlerei, elektrische Jalousien und Moskitonetze bieten zusätzlichen Komfort.
Das Haus entsteht in hochwertiger Bauweise und ist im Herbst 2025 bezugsfertig. Für angenehme Temperaturen sorgen Fußbodenheizungen in Küche, Wohnzimmer und Bädern. In allen Wohn- und Schlafräumen sind Klimaanlagen installiert. Ergänzt wird die Ausstattung durch eine einbruchsichere Eingangstür und moderne Sanitäranlagen.
Die Doppelhaushälfte erwartet Sie in Vodice!
- Ort: Vodice (Stadt)
- Einwohnerzahl: 8.875 (2011)
- Region: Dalmatien-Sibenik
- Autobahnentfernung: ca. 16 km *
- Nächster Flughafen: Zadar / ca. 62 km *

Immobiliendaten
- Objektart: Haus
- Objekttyp: Doppelhaushälfte
- Baujahr: 2025
- ID: 9222
- Kaufpreis: 475.000 €
- Provision: 3,75 % inkl. MwSt. in Kroatien
- Grundstücksgröße: 105 m²
- Wohnfläche: 128 m²
- Anzahl Zimmer: 4
- Anzahl Schlafzimmer: 3
- Anzahl Badezimmer: 2
- Land: Kroatien
- Region: Dalmatien-Sibenik
- Ort: Vodice
- Lage: Stadtteil
- Meerentfernung: 250 m
Haben Sie Interesse die schöne Doppelhaushälfte zu besitzen?
Nehmen Sie gerne Kontakt mit mir auf!
Ich bin Heiner Reker, Gründer und
Geschäftsführer von Reker Immobilien d.o.o. Ich begleite Sie bei Ihrer aufregenden Reise in die Welt der Immobilien in Kroatien.
Gerne organisiere ich persönlich mit meinen qualifizierten Partnern jeden Schritt bei Ihrem rechtssicheren und stressfreien Immobilienkauf in Kroatien.
Füllen Sie das Formular aus und ich melde mich gerne zum gewünschten Zeitpunkt bei Ihnen.
Bis bald

Exposé mitnehmen?
Laden Sie unser PDF-Exposé herunter und Sie haben die wichtigste Objektdaten & Bilder immer zur Hand
Exposé mitnehmen?
Nehmen Sie Kontakt mit uns auf, ein Exposé schicken wir gerne per E-Mail
Ihre Traum-Immobilie noch nicht gefunden?
Besuchen Sie diese Seiten!