IHR FAMILIENPARADIES IN VODICE: NEUBAUVILLA MIT GARTEN, POOL & DACHTERRASSE
Lage & Außenbereich
Am Rand von Vodice entsteht in sonniger Südwestlage eine moderne Doppelhaushälfte mit Meerblick. Das Zentrum erreichen Sie nach rund 1.300 Metern, den Strand nach etwa 1.200 Metern. Nah genug für spontane Ausflüge, weit genug für Ruhe und Privatsphäre. Zwei Stellplätze gehören direkt zum Haus, die Zufahrt erfolgt über eine asphaltierte Straße.
Die 52 m² große Terrasse mit eigenem Pool bietet Raum zum Entspannen und Genießen. Der mediterrane Garten und der gemauerte Grillplatz schaffen ein angenehmes Ambiente für gesellige Abende. Naturstein an der Fassade unterstreicht die hochwertige Bauweise und verleiht dem Haus Charakter.
Innenraum & Interieur
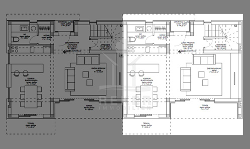
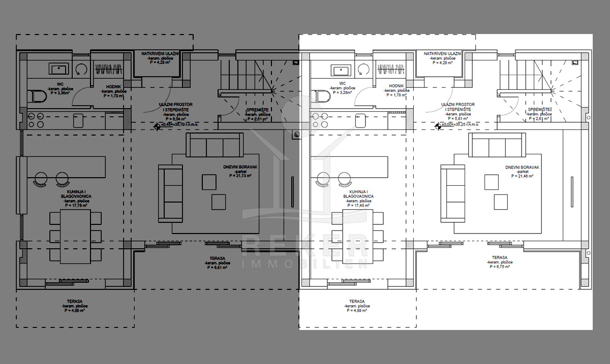
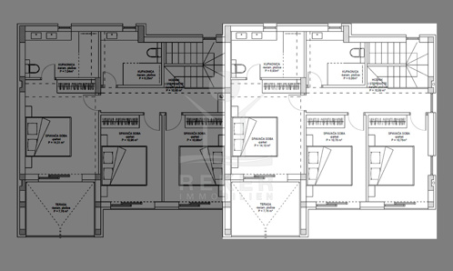
Im Erdgeschoss erwartet Sie ein heller Wohnbereich mit offener Küche und Essplatz. Die maßgefertigte Küche mit Kochinsel verbindet Funktionalität mit modernem Design. Auf dieser Ebene befindet sich außerdem ein Gäste-WC. Im Obergeschoss finden Sie drei Schlafzimmer. Das Hauptschlafzimmer verfügt über eine eigene Terrasse und ein En-Suite-Bad. Ein weiteres Bad ergänzt das Raumangebot.
Die Ausstattung lässt kaum Wünsche offen: Fußbodenheizung in den Bädern, zentrale Klimaanlage, Aluminiumfenster mit elektrischen Rollläden, Solarthermieanlage (300 l), Videoüberwachung und Zutrittskontrolle per Fingerabdruck oder Code. Das Haus ist unmöbliert und sofort bezugsbereit.
Die Doppelhaushälfte erwartet Sie in Vodice!
- Ort: Vodice (Stadt)
- Einwohnerzahl: 8.875 (2011)
- Region: Dalmatien-Sibenik
- Autobahnentfernung: ca. 16 km *
- Nächster Flughafen: Zadar / ca. 62 km *
Immobiliendaten
- Objektart: Haus
- Objekttyp: Doppelhaushälfte
- Baujahr: 2020
- ID: 3563
- Kaufpreis: 595.000 €
- Provision: 3,75% inkl. MwSt. in Kroatien
- Grundstücksgröße: 136 m²
- Wohnfläche: 138 m²
- Anzahl Zimmer: 4
- Anzahl Schlafzimmer: 3
- Anzahl Badezimmer: 2
- Land: Kroatien
- Region: Dalmatien-Sibenik
- Ort: Vodice
- Meerentfernung: 1 km
Haben Sie Interesse die schöne Doppelhaushälfte zu besitzen?
Nehmen Sie gerne Kontakt mit mir auf!
Ich bin Heiner Reker, Gründer und
Geschäftsführer von Reker Immobilien d.o.o. Ich begleite Sie bei Ihrer aufregenden Reise in die Welt der Immobilien in Kroatien.
Gerne organisiere ich persönlich mit meinen qualifizierten Partnern jeden Schritt bei Ihrem rechtssicheren und stressfreien Immobilienkauf in Kroatien.
Füllen Sie das Formular aus und ich melde mich gerne zum gewünschten Zeitpunkt bei Ihnen.
Bis bald
Exposé mitnehmen?
Laden Sie unser PDF-Exposé herunter und Sie haben die wichtigste Objektdaten & Bilder immer zur Hand
Exposé mitnehmen?
Nehmen Sie Kontakt mit uns auf, ein Exposé schicken wir gerne per E-Mail
Ihre Traum-Immobilie noch nicht gefunden?
Besuchen Sie diese Seiten!















