DOPPELHAUSHÄLFTE IN TRIBUNJ: SONNENVERWÖHNTE HARMONIE MIT POOL

Die Erfüllung Ihrer Träume
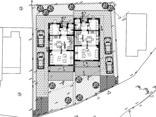
Eine ruhige Lage zeichnet dieses neue, voraussichtlich im Frühling 2023 fertiggestellte Wohn-Erlebnis aus. Freuen Sie sich auf ein etwa 165 m² großes, von einer Mauer begrenztes Grundstück und eine großzügige Wohnfläche von ca. 173 m², die sich auf 3 Stockwerke verteilt.
Für Ihre beiden Autos gibt es neben der überdachten Terrasse und dem herrlichen Pool Stellplätze im Freien. Der teils gepflasterte und teils mediterran bepflanzte Garten wird zweifelsohne einer Ihrer neuen Lieblingsorte sein.
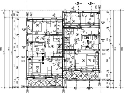
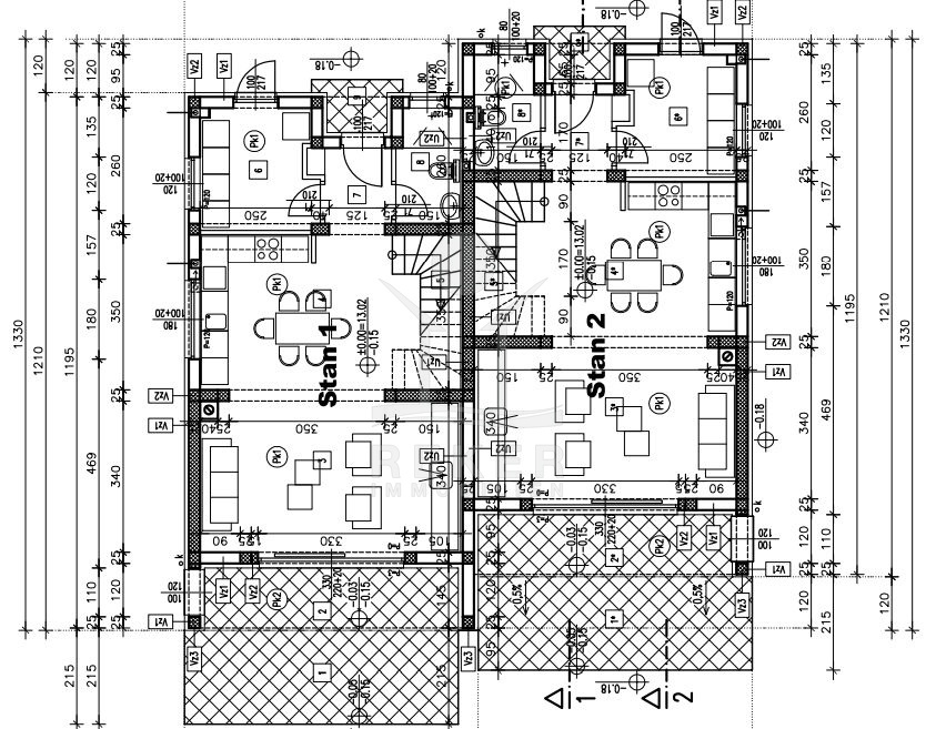
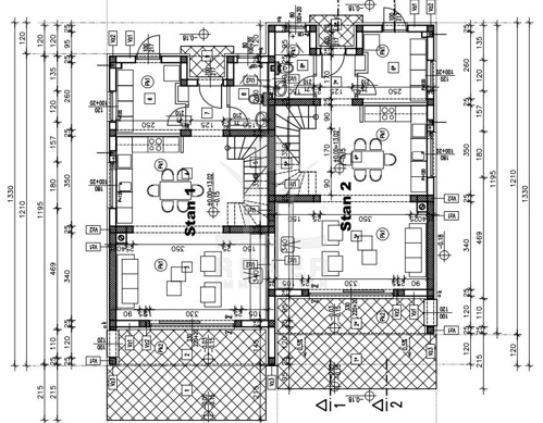
Im Erdgeschoss Ihrer neuen Luxus-Doppelhaushälfte finden Sie eine Eingangshalle, ein Gäste-WC, einen Abstellraum und das Wohnzimmer mit offener Küche, Essplatz und direktem Zugang zur fabelhaften Terrasse.
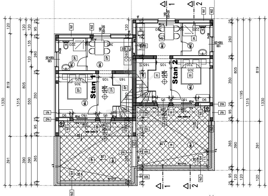
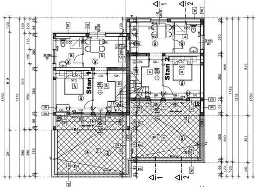
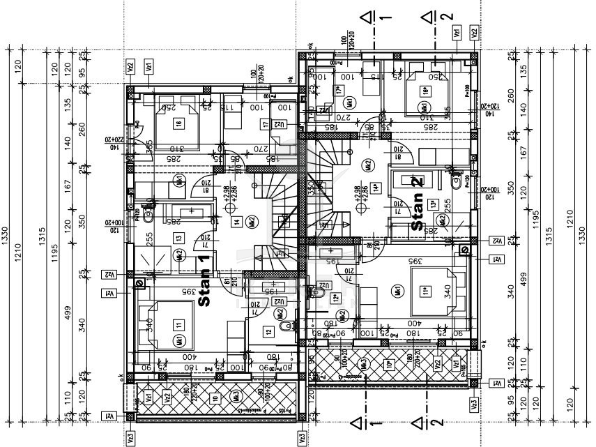
Über eine Innentreppe erreichen Sie das 1. Stockwerk, wo sich 3 Schlafzimmer, von denen eins ein eigenes Bad und einen Balkon hat, ein separates Badezimmer und den Flur. Ein Stockwerk höher befinden sich ein Flur, das 4.Schlafzimmer, ein Badezimmer, die Sommerküche und eine große Dachterrasse mit Meerblick.
Ihr neues Wohnglück ist durch eine Fußbodenheizung und elektrische Jalousien bereichert, um Ihr neues Luxus-Leben auf das Level steigen zu lassen, das Sie verdient haben!






Das Adriatische Meer
- Meerentfernung: 400 m
- Aussicht: Panorama-Meerblick
Die Immobilie
- Doppelhaushälfte in Tribunj, Dalmatien-Sibenik
- Baujahr: 2023
- Zustand: Erstbezug
- Wohnfläche: 172 m² – Grundstücksgröße: 165 m²
- Etagenzahl: 3
- Überdachte Terrasse
Parken
- Anzahl: 2
- Stellplatz im Freien
Mediterraner Garten
- Swimming Pool
- Aussenküche
Ausstattung
- Anzahl Zimmer: 5
- Anzahl Schlafzimmer: 4
- Anzahl Badezimmer: 3
- Heizung: Fußbodenheizung
Die Doppelhaushälfte erwartet Sie in Tribunj!
- Ort: Tribunj (Dorf)
- Einwohnerzahl: 1.536 (2011)
- Region: Dalmatien-Sibenik
- Autobahnentfernung: ca. 12 km *
- Nächster Flughafen: Zadar / ca. 60 km *

Immobiliendaten
- Objektart: Haus
- Objekttyp: Doppelhaushälfte
- Baujahr: 2023
- ID: 5053
- Kaufpreis: 592.000 €
- Provision: 3,75% inkl. MwSt. in Kroatien
- Grundstücksgröße: 165 m²
- Wohnfläche: 172 m²
- Anzahl Zimmer: 5
- Anzahl Schlafzimmer: 4
- Anzahl Badezimmer: 3
- Land: Kroatien
- Region: Dalmatien-Sibenik
- Ort: Tribunj
- Meerentfernung: 400 m
Haben Sie Interesse die schöne Doppelhaushälfte zu besitzen?
Nehmen Sie gerne Kontakt mit mir auf!
Ich bin Heiner Reker, Gründer und
Geschäftsführer von Reker Immobilien d.o.o. Ich begleite Sie bei Ihrer aufregenden Reise in die Welt der Immobilien in Kroatien.
Gerne organisiere ich persönlich mit meinen qualifizierten Partnern jeden Schritt bei Ihrem rechtssicheren und stressfreien Immobilienkauf in Kroatien.
Füllen Sie das Formular aus und ich melde mich gerne zum gewünschten Zeitpunkt bei Ihnen.
Bis bald

Exposé mitnehmen?
Laden Sie unser PDF-Exposé herunter und Sie haben die wichtigste Objektdaten & Bilder immer zur Hand
Exposé mitnehmen?
Nehmen Sie Kontakt mit uns auf, ein Exposé schicken wir gerne per E-Mail
Ihre Traum-Immobilie noch nicht gefunden?
Besuchen Sie diese Seiten!