NEUBAU DOPPELHAUSHÄLFTE IN POREČ ZUM ERSTBEZUG MIT 4 SCHLAFZIMMERN & GARTEN IN POREČ
Ruhige & grüne Umgebung nahe Poreč
Die Haushälfte befindet sich in einer ruhigem Wohnviertel von Poreč, nur 3 km von der lebhaften Stadt und dem glitzernden Meer entfernt. Erleben Sie das mediterrane Leben mit viel Grün und ländlichem Flair. Sonne, Strand und die wunderschöne Strände der Adriaküste sind hier stets nur einen kurzen Weg entfernt und werden Sie immer wieder verzaubern.
Das 200 m² große Grundstück ist von einer modernen Mauer und Umzäunung umgeben. Hochwertige Materialien wie Beton-Ytong und eine waschbare Fassade sorgen für Langlebigkeit und ansprechende Optik. Mit 3-fach-Verglasung, eleganten ALU-Tischlereien sowie einem effizienten Heizsystem mit nordischen Heizkörpern und einer Inverter-Klimaanlage in jedem Raum bietet diese Immobilie maximalen Komfort und Energieeffizienz. Parkplatz vorhanden für 2 Pkws.
Modernes Wohnen mit flexibler Raumaufteilung
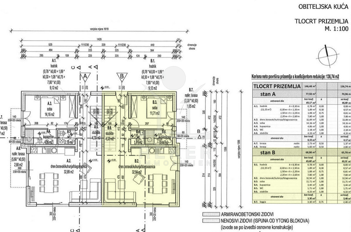
Diese stilvolle Doppelhaushälfte umfasst 3 Etagen mit insgesamt 168 m² Wohnfläche. Das Erdgeschoss bietet einen Flur, ein Schlafzimmer mit eigenem Bad, ein WC, einen Technikraum sowie ein großzügiges Wohn-, Ess- und Küchenzimmer mit Zugang zur Terrasse und zum Garten.
Private Rückzugsmöglichkeiten im 1. Obergeschoss
Im ersten Obergeschoss befinden sich 3 Schlafzimmer und zwei Bäder, darunter ein Schlafzimmer mit eigenem Bad.
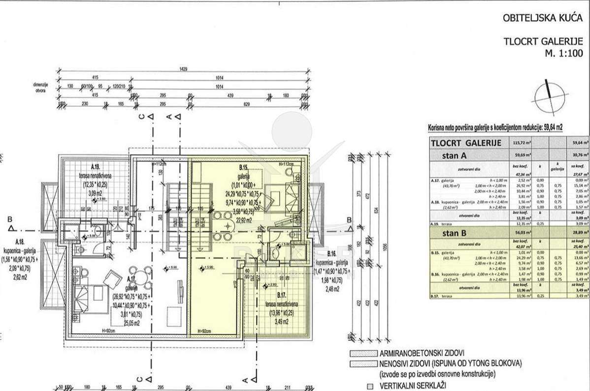
Dachgeschoss: Gästezimmer, Bad & Terrasse
Das Dachgeschoss bietet einen großen Raum mit Badezimmer, ideal nutzbar als Fitnessraum oder Gästezimmer.
Die Doppelhaushälfte erwartet Sie in Poreč!
Die Stadt ist wegen der guten Lage und des umfangreichen Tourismusangebots mehrfach ausgezeichnet worden. Sie ist eine der bedeutendsten Küstenstädte an der Westküste der Halbinsel Istrien in Kroatien.
- Ort: Poreč (Stadt)
- Einwohnerzahl: 16.696 (2011)
- Region: Istrien
- Autobahnentfernung: ca. 10 km *
- Nächster Flughafen: Pula / ca. 56 km *
Immobiliendaten
- Objektart: Haus
- Objekttyp: Doppelhaushälfte
- Baujahr: 2025
- ID: 8341
- Kaufpreis: 580.000 €
- Provision: 3,75 % inkl. MwSt. in Kroatien
- Grundstücksgröße: 200 m²
- Wohnfläche: 168 m²
- Anzahl Zimmer: 6
- Anzahl Schlafzimmer: 4
- Anzahl Badezimmer: 4
- Land: Kroatien
- Region: Istrien
- Ort: Poreč
- Lage: Ortslage
- Meerentfernung: 3 km
Haben Sie Interesse die schöne Doppelhaushälfte zu besitzen?
Nehmen Sie gerne Kontakt mit mir auf!
Ich bin Heiner Reker, Gründer und
Geschäftsführer von Reker Immobilien d.o.o. Ich begleite Sie bei Ihrer aufregenden Reise in die Welt der Immobilien in Kroatien.
Gerne organisiere ich persönlich mit meinen qualifizierten Partnern jeden Schritt bei Ihrem rechtssicheren und stressfreien Immobilienkauf in Kroatien.
Füllen Sie das Formular aus und ich melde mich gerne zum gewünschten Zeitpunkt bei Ihnen.
Bis bald
Exposé mitnehmen?
Laden Sie unser PDF-Exposé herunter und Sie haben die wichtigste Objektdaten & Bilder immer zur Hand
Exposé mitnehmen?
Nehmen Sie Kontakt mit uns auf, ein Exposé schicken wir gerne per E-Mail
Ihre Traum-Immobilie noch nicht gefunden?
Besuchen Sie diese Seiten!















































