FREUEN SIE SICH AUF EIN LEBEN IN HARMONIE: NEUBAU HAUSHÄLFTE IN MALINSKA MIT POOL & STRANDNÄHE
Neubau-Doppelhaushälfte in bester Lage von Malinska
Der Neubau befindet sich in einer ruhigen und schönen Umgebung in Malinska auf der Insel Krk. Nur 700 Meter trennen Sie von den Stränden und dem kristallklaren Meer. Restaurants, Geschäfte und öffentliche Verkehrsmittel sind in unmittelbarer Nähe und das Zentrum von Malinska ist bequem zu Fuß erreichbar. Malinska wird als "Perle in der Inselwelt der Kvarner Bucht" bezeichnet und bietet seinen Bewohnern und Gästen einen unvergleichlichen Charme und Flair. Der Hafen und die lebhafte Uferpromenade bilden das Zentrum des romantischen Ferienortes, während entlang der Riviera ruhig gelegene Feriensiedlungen und familienfreundliche Strände zu finden sind. Malinska bietet eine Vielzahl von offiziellen Stränden, von flach abfallenden Kieselstränden bis hin zu raue Felsbuchten, die Schnorchler und Taucher begeistern. Die Abende können in den zahlreichen Restaurants, Tavernen und Konobas oder entlang der romantischen Uferpromenade genossen werden, wo kulinarische Köstlichkeiten wie frisch zubereitete Fischgerichte und Meeresfrüchte serviert werden. Erleben Sie das mediterrane Lebensgefühl in dieser einzigartigen Umgebung von Malinska.
Das Anwesen befindet sich auf einem 821 m² großen Grundstück mit einem weitläufigen und gepflegten Garten. Das Haus erstreckt sich über 2 Etagen mit einer großzügigen Wohnfläche von 140 m² und beeindruckt mit einer hochwertigen Bauqualität sowie Konstruktion aus dem Jahr 2024. Für zusätzlichen Komfort ist eine Klimaanlage vorgesehen, um an heißen Tagen angenehme Raumtemperaturen zu gewährleisten. Zwei Parkplätze stehen zur Verfügung und bieten bequeme Parkmöglichkeiten für Bewohner und Gäste.
Die Doppelhaushälfte bietet eine traumhafte Außenanlage mit einem Pool, der ideal für erfrischende Schwimmrunden an warmen Tagen geeignet ist. Sonnenliegen laden Sonnenanbeter dazu ein, sich zu entspannen und die Sonne zu genießen. Die überdachte Terrasse bietet den perfekten Ort, um mediterrane Köstlichkeiten zuzubereiten und gesellige Stunden im Freien zu verbringen.
Moderne Eleganz und Entspannung im Freien
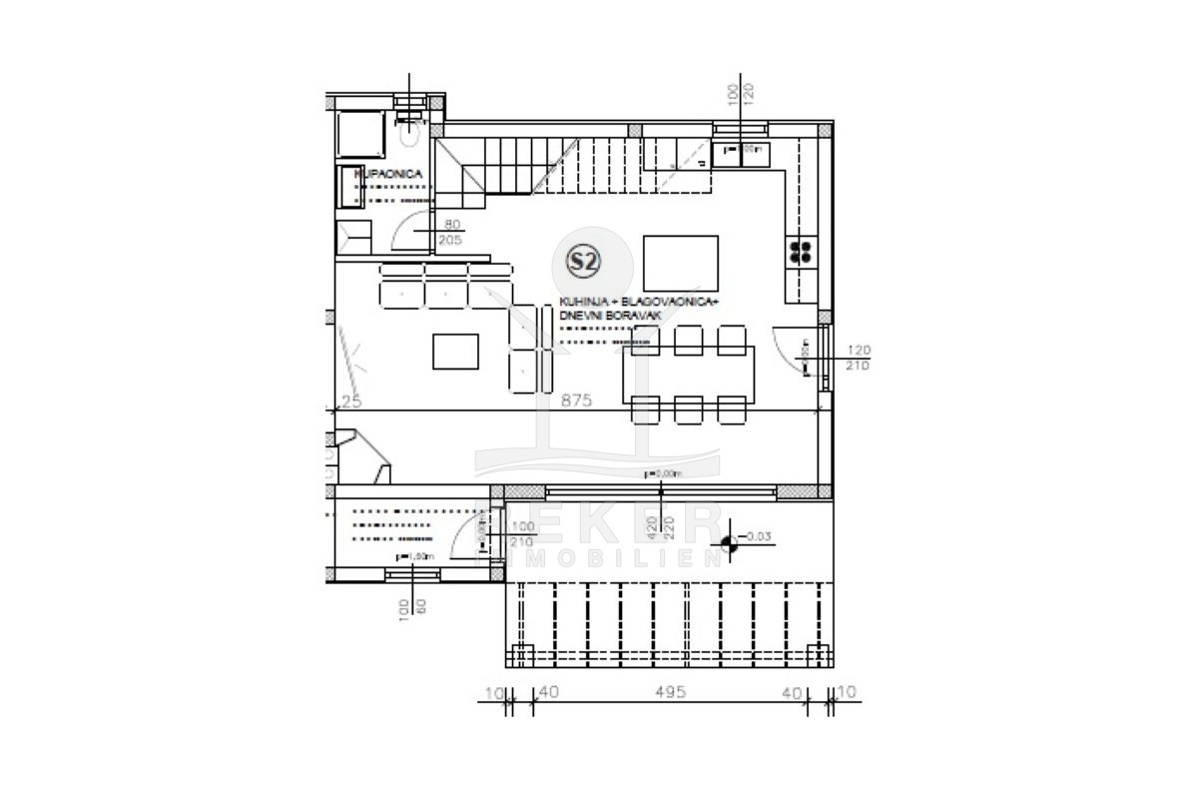
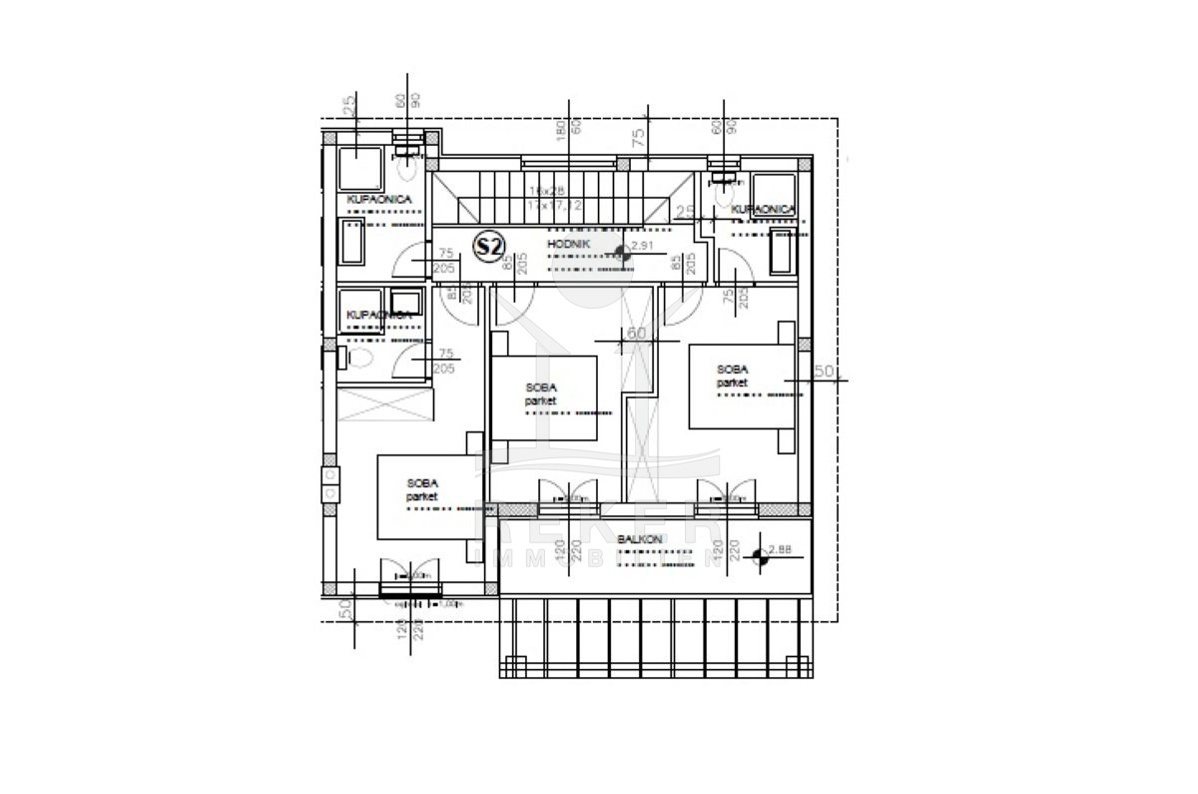
Das Erdgeschoss beeindruckt mit einem großzügigen Wohnbereich, einem Esszimmer und einer offenen Küche sowie einem Gäste-WC. Direkt vom Erdgeschoss aus gelangen Sie auf die Terrasse und zum Pool, was ein entspanntes Indoor-Outdoor-Wohnen ermöglicht. Eine interne Treppe führt Sie in das Obergeschoss, wo sich drei geschmackvoll gestaltete Schlafzimmer, drei Badezimmer und ein Balkon mit einer atemberaubenden Aussicht auf die Außenanlagen und die umliegende Umgebung befinden. Hier können Sie die Schönheit der Umgebung in Ruhe genießen.
Die Doppelhaushälfte erwartet Sie in Malinska!
- Ort: Malinska (Dorf)
- Einwohnerzahl: 965 (2011)
- Region: Kvarner-Bucht
- Insel: Krk
- Autobahnentfernung: ca. 18 km *
- Nächster Flughafen: Rijeka / ca. 15 km *
Immobiliendaten
- Objektart: Haus
- Objekttyp: Doppelhaushälfte
- Baujahr: 2024
- ID: 7097
- Kaufpreis: 750.000 €
- Provision: 3,75 % inkl. MwSt. in Kroatien
- Grundstücksgröße: 140 m²
- Wohnfläche: 821 m²
- Anzahl Zimmer: 4
- Anzahl Schlafzimmer: 3
- Anzahl Badezimmer: 3
- Land: Kroatien
- Region: Kvarner-Bucht
- Ort: Malinska
- Lage: Ortslage
- Meerentfernung: 700 m
Haben Sie Interesse die schöne Doppelhaushälfte zu besitzen?
Nehmen Sie gerne Kontakt mit mir auf!
Ich bin Heiner Reker, Gründer und
Geschäftsführer von Reker Immobilien d.o.o. Ich begleite Sie bei Ihrer aufregenden Reise in die Welt der Immobilien in Kroatien.
Gerne organisiere ich persönlich mit meinen qualifizierten Partnern jeden Schritt bei Ihrem rechtssicheren und stressfreien Immobilienkauf in Kroatien.
Füllen Sie das Formular aus und ich melde mich gerne zum gewünschten Zeitpunkt bei Ihnen.
Bis bald
Exposé mitnehmen?
Laden Sie unser PDF-Exposé herunter und Sie haben die wichtigste Objektdaten & Bilder immer zur Hand
Exposé mitnehmen?
Nehmen Sie Kontakt mit uns auf, ein Exposé schicken wir gerne per E-Mail
Ihre Traum-Immobilie noch nicht gefunden?
Besuchen Sie diese Seiten!










