WAGEN SIE DEN SCHRITT ZUR VERÄNDERUNG: NEUBAU DOPPELHAUSHÄLFTE MIT POOL AUF DER INSEL KRK IN MALINSKA
Charmante Doppelhaushälfte nahe den Stränden von Malinska
Der Neubau befindet sich in Malinska, einem paradiesischen Ort auf der Insel Krk. Nur 700 Meter trennen Sie von den traumhaften Stränden, Restaurants und Einkaufsmöglichkeiten in der Nähe. Malinska wird als "Perle in der Inselwelt der Kvarner Bucht" bezeichnet und hat seinen ursprünglichen Charme bewahrt. Der Hafen und die lebhafte Uferpromenade bilden das Herzstück von Malinska, während ruhige Feriensiedlungen entlang der Strände verteilt sind und ein ideales Urlaubsambiente bieten. Die Region bietet verschiedenste Strände - von flach abfallenden Kieselstränden für Familien bis zu rauen Felsbuchten für Schnorchler und Taucher. Parkmöglichkeiten, Restaurants, Bars und Unterhaltungsmöglichkeiten sind an den Stränden reichlich vorhanden. Die Abende können mit kulinarischen Genüssen aus lokalen Restaurants oder entlang der romantischen Uferpromenade im Zentrum genossen werden. Erleben Sie die mediterrane Lebensart und entspannen Sie in dieser grünen und ruhigen Umgebung in Malinska.
Die Haushälfte erstreckt sich auf einem 821 m² großen Grundstück mit einem großflächigen Außenbereich und einem angelegten Garten. Das Haus (Baujahr 2024) erstreckt sich über 2 Etagen und bietet 140 m² Wohnfläche. Mit einer Bauqualität und Konstruktion auf höchstem Niveau, einschließlich einer vorgesehenen Klimaanlage, verspricht dieses Haus ein modernes und komfortables Wohngefühl. Zwei Parkplätze stehen für Ihre Fahrzeuge bereit, um die Mobilität zu gewährleisten.
Die Terrasse des Hauses ist ein perfekter Ort für Entspannung und Unterhaltung. Eine Außenanlage mit Pool und Platz für Sonnenliegen ist für Sonnenanbeter ideal. Die überdachte Terrasse bietet eine großartige Gelegenheit, mediterrane Köstlichkeiten zuzubereiten und Mahlzeiten im Freien zu genießen. Dieses Haus ist nicht nur ein Ort des Wohnens, sondern auch des Genießens und Verweilens in einer großartigen Umgebung.
Moderne Wohnatmosphäre mit Pool & Aussicht
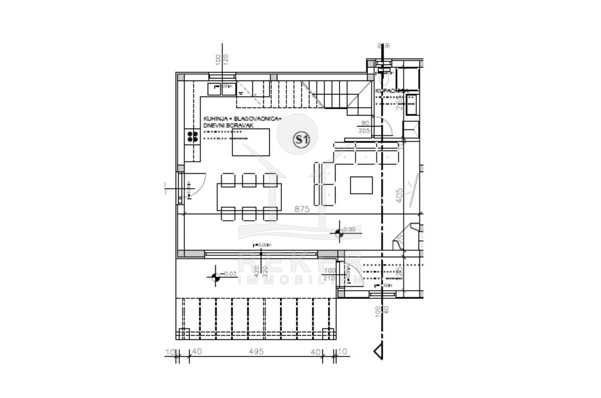
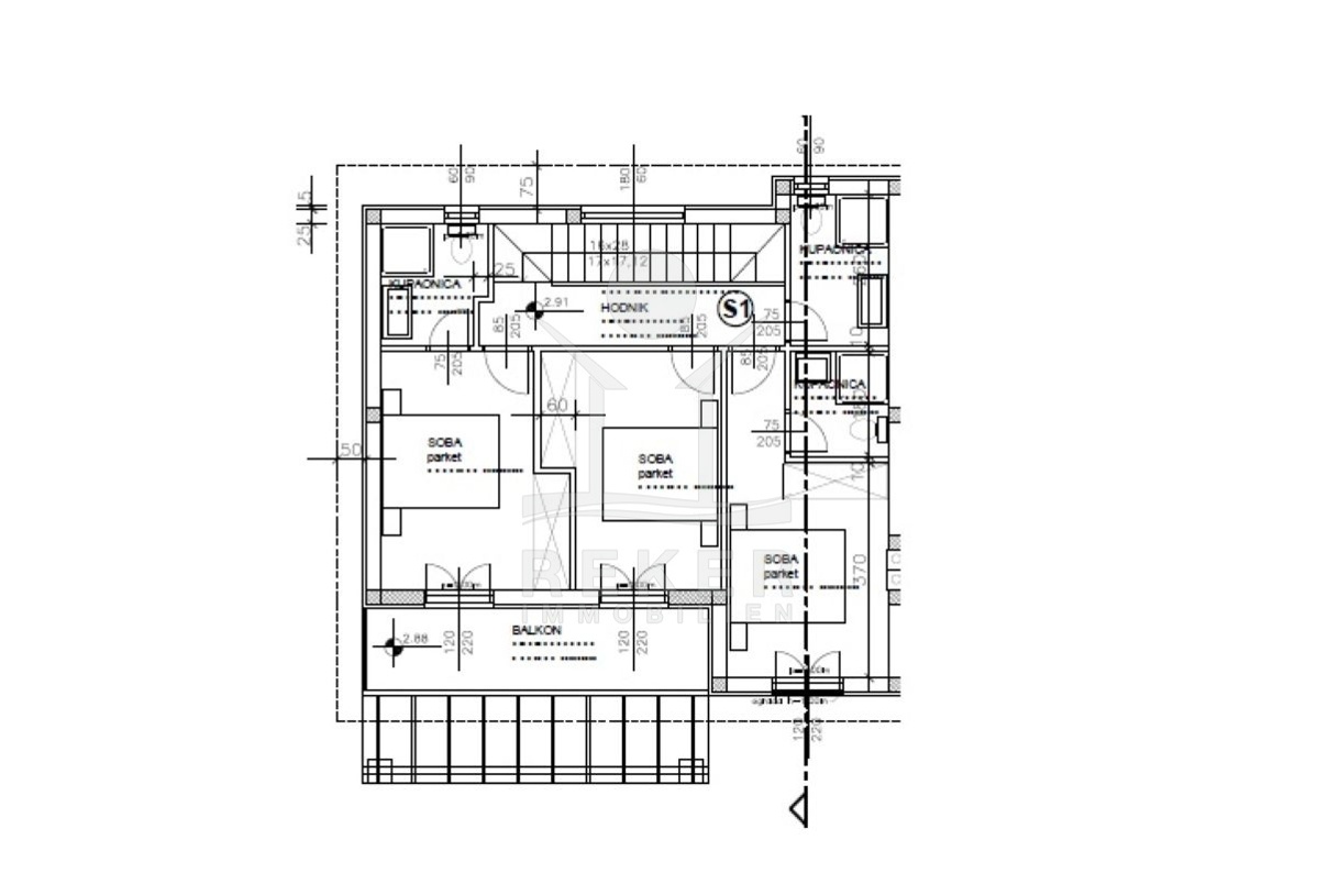
Das Erdgeschoss des Hauses umfasst ein geräumiges Wohnzimmer, einen offenen Ess- und Küchenbereich sowie ein WC. Von hier aus gelangen Sie direkt zur Terrasse mit dem erfrischenden Pool. Über eine interne Treppe gelangen Sie ins Obergeschoss, wo sich drei Schlafzimmer und drei Bäder befinden. Genießen Sie vom Balkon aus eine herrliche Aussicht auf die Außenanlage und die umliegende Umgebung.
Die Doppelhaushälfte erwartet Sie in Malinska!
- Ort: Malinska (Dorf)
- Einwohnerzahl: 965 (2011)
- Region: Kvarner-Bucht
- Insel: Krk
- Autobahnentfernung: ca. 18 km *
- Nächster Flughafen: Rijeka / ca. 15 km *
Immobiliendaten
- Objektart: Haus
- Objekttyp: Doppelhaushälfte
- Baujahr: 2024
- ID: 7096
- Kaufpreis: 750.000 €
- Provision: 3,75 % inkl. MwSt. in Kroatien
- Grundstücksgröße: 821 m²
- Wohnfläche: 140 m²
- Anzahl Zimmer: 4
- Anzahl Schlafzimmer: 3
- Anzahl Badezimmer: 3
- Land: Kroatien
- Region: Kvarner-Bucht
- Ort: Malinska
- Lage: Ortslage
- Meerentfernung: 700 m
Haben Sie Interesse die schöne Doppelhaushälfte zu besitzen?
Nehmen Sie gerne Kontakt mit mir auf!
Ich bin Heiner Reker, Gründer und
Geschäftsführer von Reker Immobilien d.o.o. Ich begleite Sie bei Ihrer aufregenden Reise in die Welt der Immobilien in Kroatien.
Gerne organisiere ich persönlich mit meinen qualifizierten Partnern jeden Schritt bei Ihrem rechtssicheren und stressfreien Immobilienkauf in Kroatien.
Füllen Sie das Formular aus und ich melde mich gerne zum gewünschten Zeitpunkt bei Ihnen.
Bis bald
Exposé mitnehmen?
Laden Sie unser PDF-Exposé herunter und Sie haben die wichtigste Objektdaten & Bilder immer zur Hand
Exposé mitnehmen?
Nehmen Sie Kontakt mit uns auf, ein Exposé schicken wir gerne per E-Mail
Ihre Traum-Immobilie noch nicht gefunden?
Besuchen Sie diese Seiten!












