ERLEBEN SIE DAS INSELPARADIES: NEUE DOPPELHAUSHÄLFTE MIT SWIMMINGPOOL & GARTEN IN MALINSKA
Neue Haushälfte in Malinska auf Krk
Der Neubau bietet eine attraktive und ruhige Lage in Malinska auf der Insel Krk. Nur 650 Meter vom Meer und 250 Meter vom Zentrum entfernt gelegen, ist die Umgebung ideal für Familien und Erholungssuchende. Restaurants, Einkaufsmöglichkeiten und Unterhaltungsmöglichkeiten sind bequem zu Fuß erreichbar. Die Siedlung verfügt über alle notwendigen Annehmlichkeiten wie Supermarkt, Kindergarten, Schule, öffentliche Verkehrsmittel, Bank, Spielplatz, öffentlichen Strand, Einkaufszentrum, Fitnesszentrum und vieles mehr. Die Nähe zum Flughafen, zur Autofähre und zu verschiedenen Freizeiteinrichtungen wie Fußballplätzen, Wassersportmöglichkeiten und einem Naturpark macht diese Lage besonders attraktiv. Malinska wird auch von dem Wiener Geologen Dr. L. Waagen als "Perle in der Inselwelt der Kvarner Bucht" bezeichnet und ist bekannt für seinen Charme, die lebhafte Uferpromenade, die Strände und die gastfreundliche Atmosphäre. Ein Ort, an dem Urlauber und Einheimische gleichermaßen die Schönheit und Ruhe der Insel Krk genießen können.
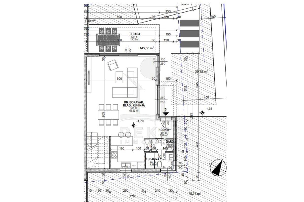
Die Haushälfte entsteht auf einem Grundstück von ca. 200 m², umgeben von einer niedrigen Steinmauer. Der Neubau erstreckt sich über 2 Etagen mit einer großzügigen Wohnfläche von 160 m² und wird voraussichtlich im Juni 2024 fertiggestellt. Die hochwertige Ausstattung umfasst Dreischicht-PVC-Tischlerei, elektrische Rollläden mit Moskitonetzen, Sicherheitstüren, Keramikbodenbeläge, Fußbodenheizung durch ein Wärmepumpensystem sowie Klimaanlagen in allen Räumen.
Die Terrasse der Doppelhaushälfte verspricht erholsame Stunden im Freien mit einem Swimmingpool von 10 m², umgeben von einer gepflegten Liegewiese. Die überdachte Terrasse lädt ein, schöne Zeiten im Freien zu verbringen und lädt zum Genießen einer angenehmen Atmosphäre ein. Mit zwei Parkplätzen bietet dieses moderne Haus nicht nur Luxus und Komfort, sondern auch die Möglichkeit, ein stilvolles Zuhause in einer erstklassigen Umgebung zu schaffen.
Einfach atemberaubend: Ein Traumhaus am Meer
Willkommen in Ihrem Traumhaus! Das Erdgeschoss besticht durch einen großzügigen Flur, einen begehbaren Kleiderschrank, ein geräumiges Badezimmer sowie eine moderne Küche und ein Esszimmer. Ein Highlight ist das großzügige Wohnzimmer mit Zugang zur überdachten Terrasse und dem erfrischenden Pool. Genießen Sie teilweisen Meerblick vom Erdgeschoss aus.
Privatsphäre und Luxus im Obergeschoss
Eine elegante Innentreppe führt Sie in den ersten Stock, wo drei geräumige Schlafzimmer mit jeweils eigenem Bad auf Sie warten. Zwei der Zimmer bieten Zugang zu einem gemeinsamen Balkon mit einem begehbaren Kleiderschrank.
Im Dachgeschoss finden Sie einen praktischen Abstellraum und die Möglichkeit, eine atemberaubende Dachterrasse mit spektakulärem Blick auf das Meer zu errichten. Dieses Haus vereint Luxus, Komfort und traumhafte Aussichten zu einem unvergleichlichen Gesamtpaket.
Die Doppelhaushälfte erwartet Sie in Malinska!
- Ort: Malinska (Dorf)
- Einwohnerzahl: 965 (2011)
- Region: Kvarner-Bucht
- Insel: Krk
- Autobahnentfernung: ca. 18 km *
- Nächster Flughafen: Rijeka / ca. 15 km *
Immobiliendaten
- Objektart: Haus
- Objekttyp: Doppelhaushälfte
- Baujahr: 2024
- ID: 6915
- Kaufpreis: 625.000 €
- Provision: 3,75 % inkl. MwSt. in Kroatien
- Grundstücksgröße: 200 m²
- Wohnfläche: 160 m²
- Anzahl Zimmer: 4
- Anzahl Schlafzimmer: 3
- Anzahl Badezimmer: 4
- Land: Kroatien
- Region: Kvarner-Bucht
- Ort: Malinska
- Meerentfernung: 650 m
- Ortsmitte: 200 m
Haben Sie Interesse die schöne Doppelhaushälfte zu besitzen?
Nehmen Sie gerne Kontakt mit mir auf!
Ich bin Heiner Reker, Gründer und
Geschäftsführer von Reker Immobilien d.o.o. Ich begleite Sie bei Ihrer aufregenden Reise in die Welt der Immobilien in Kroatien.
Gerne organisiere ich persönlich mit meinen qualifizierten Partnern jeden Schritt bei Ihrem rechtssicheren und stressfreien Immobilienkauf in Kroatien.
Füllen Sie das Formular aus und ich melde mich gerne zum gewünschten Zeitpunkt bei Ihnen.
Bis bald
Exposé mitnehmen?
Laden Sie unser PDF-Exposé herunter und Sie haben die wichtigste Objektdaten & Bilder immer zur Hand
Exposé mitnehmen?
Nehmen Sie Kontakt mit uns auf, ein Exposé schicken wir gerne per E-Mail
Ihre Traum-Immobilie noch nicht gefunden?
Besuchen Sie diese Seiten!



















