DOPPELHAUSHÄLFTE MIT PANORAMAAUSBLICK & ERSTKLASSIGEM WELLNESSBEREICH IN JADRANOVO
Ruhige Lage in der Nähe zum Meer
Die Haushälfte befindet sich im charmanten Dorf Jadranovo, nur 350 Meter vom Meer entfernt. Hier genießen Sie umfassenden Komfort, Ruhe und Privatsphäre, gleichzeitig sind alle notwendigen Annehmlichkeiten in unmittelbarer Nähe. Das Dorf liegt etwa zehn Kilometer nördlich von Crikvenica und bietet eine ideale Balance aus ländlicher Idylle und schneller Erreichbarkeit zu städtischen Einrichtungen.
Das Haus mit einer Grundstücksfläche von 150 m² erstreckt sich über 2 Etagen und bietet 173 m² Wohnfläche im modernen Neubau-Stil von 2025. Diese schlüsselfertige Immobilie ist bereits mit Badezimmern ausgestattet und bietet dem neuen Eigentümer die Flexibilität, die Inneneinrichtung ganz nach eigenen Vorstellungen zu gestalten. Im Garten sind zudem 2 Parkplätze vorhanden, die eine bequeme Anreise gewährleisten.
Luxuriöses Wohnambiente mit Wellnessoase
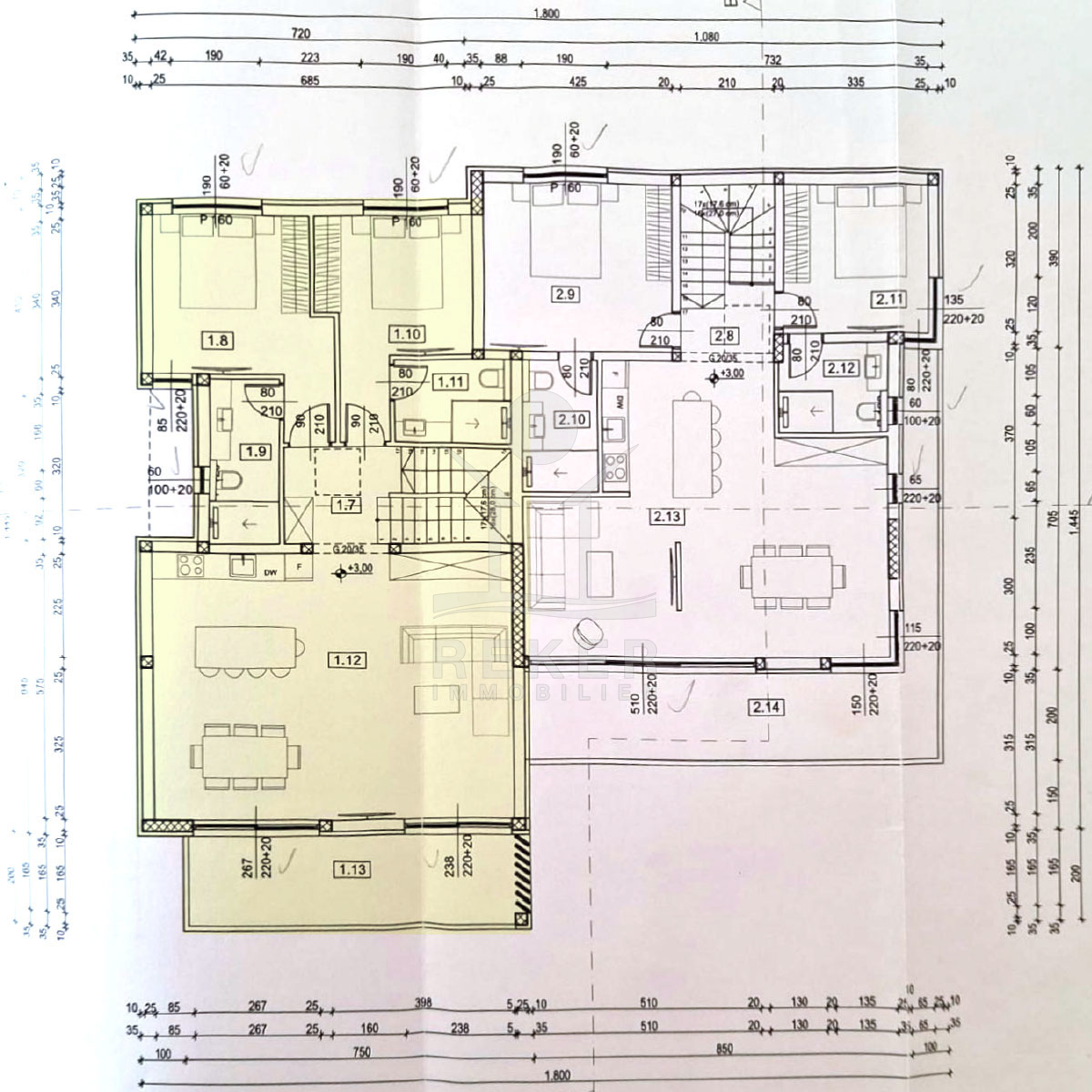
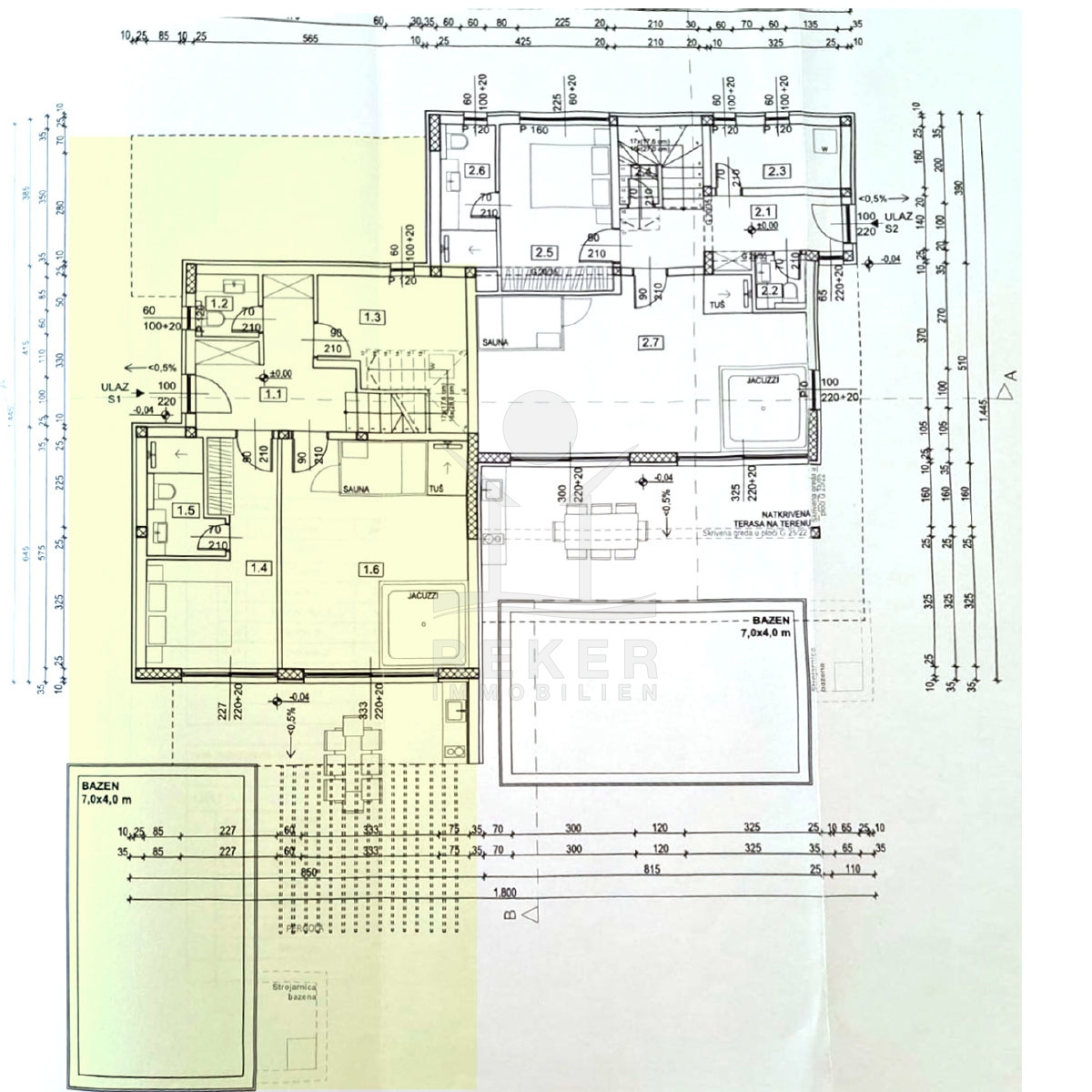
Die schöne Haushälfte erstreckt sich über 2 Etagen und bietet im Erdgeschoss eine einladende Eingangshalle, einen geräumigen Abstellraum, ein Schlafzimmer mit eigenem Bad und einen beeindruckenden Wellnessbereich mit Fitnessraum, Whirlpool und Sauna. Von hier aus gelangen Sie direkt zur Terrasse, dem Swimmingpool und der gepflegten Liegewiese im eingezäunten Garten.
Im Obergeschoss erwarten Sie 2 weitere Schlafzimmer, ebenfalls mit eigenem Bad, sowie ein offen gestaltetes Wohnzimmer mit integrierter Küche und Essbereich. Hier genießen Sie den Zugang zu einer überdachten Terrasse mit atemberaubendem Panoramablick auf das Meer und die Insel Krk.
Die Doppelhaushälfte erwartet Sie in Jadranovo!
- Ort: Jadranovo (Dorf)
- Einwohnerzahl: 1.224 (2011)
- Region: Kvarner-Bucht
- Autobahnentfernung: ca. 1 km *
- Nächster Flughafen: Rijeka / ca. 12 km *
Immobiliendaten
- Objektart: Haus
- Objekttyp: Doppelhaushälfte
- Baujahr: 2025
- ID: 8599
- Kaufpreis: 850.000 €
- Provision: 3,75 % inkl. MwSt. in Kroatien
- Grundstücksgröße: 150 m²
- Wohnfläche: 173 m²
- Anzahl Zimmer: 4
- Anzahl Schlafzimmer: 3
- Anzahl Badezimmer: 3
- Land: Kroatien
- Region: Kvarner-Bucht
- Ort: Jadranovo
- Meerentfernung: 350 m
Haben Sie Interesse die schöne Doppelhaushälfte zu besitzen?
Nehmen Sie gerne Kontakt mit mir auf!
Ich bin Heiner Reker, Gründer und
Geschäftsführer von Reker Immobilien d.o.o. Ich begleite Sie bei Ihrer aufregenden Reise in die Welt der Immobilien in Kroatien.
Gerne organisiere ich persönlich mit meinen qualifizierten Partnern jeden Schritt bei Ihrem rechtssicheren und stressfreien Immobilienkauf in Kroatien.
Füllen Sie das Formular aus und ich melde mich gerne zum gewünschten Zeitpunkt bei Ihnen.
Bis bald
Exposé mitnehmen?
Laden Sie unser PDF-Exposé herunter und Sie haben die wichtigste Objektdaten & Bilder immer zur Hand
Exposé mitnehmen?
Nehmen Sie Kontakt mit uns auf, ein Exposé schicken wir gerne per E-Mail
Ihre Traum-Immobilie noch nicht gefunden?
Besuchen Sie diese Seiten!



















