MODERNES DESIGN UND HOCHWERTIGE BAUWEISE: DOPPELHAUSHÄLFTE IN 1. REIHE IN BILICE
Lage & Außenbereich
Die Haushälfte in Bilice beeindruckt mit ihrer erstklassigen Lage in der ersten Reihe zum Meer. Nur 50 Meter entfernt können Sie das kristallklare Wasser der Adria genießen und an den nahegelegenen Stränden entspannen. Der Ortskern von Bilice ist ebenfalls in unmittelbarer Nähe und bietet alle erforderlichen Einkaufsmöglichkeiten sowie eine Vielzahl von gemütlichen Cafés und Restaurants. Diese Region zeichnet sich durch ihr reichhaltiges kulturelles und gastronomisches Angebot aus, sodass es Ihnen an Unterhaltungsmöglichkeiten nicht fehlen wird. Die Umgebung ist äußerst attraktiv und lädt zu entspannten Spaziergängen und Erkundungstouren ein.
Innenraum & Interieur
Das Anwesen bietet auf einem 260 m² großen Grundstück Platz für ein modernes Zuhause. Die geplante Wohnfläche beträgt 150 m² auf 2 Etagen. Mit den Bauarbeiten wurde bereits begonnen, die voraussichtlich 2025 fertiggestellt werden. Das innovative Heizungssystem umfasst Fußbodenheizung in allen Räumen, eine Klimaanlage und eine Wärmepumpe in Kombination mit Solar, was im Preis inbegriffen ist. Ein Parkplatz steht zur Verfügung, um die Annehmlichkeiten des Hauses zu ergänzen.
Der wahre Hingucker dieser Immobilie sind die geplante Terrasse und Dachterrasse mit einem Jacuzzi - alles inklusive im Preis. Diese Außenbereiche bieten einen wundervollen Platz zur Entspannung und Erholung mit Blick auf das Meer und die Umgebung. Das Haus verspricht nicht nur eine moderne und komfortable Inneneinrichtung, sondern auch luxuriöse Außenbereiche, um den mediterranen Lebensstil zu genießen.
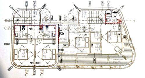
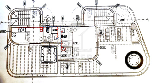
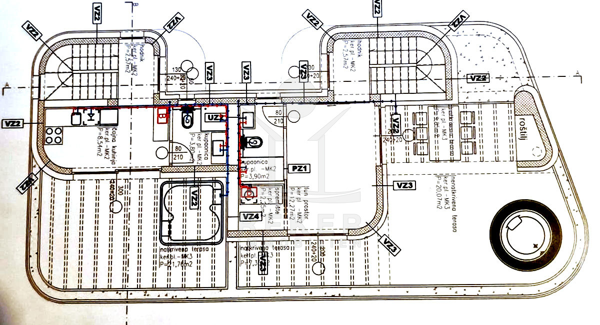
Das Haus bietet im Erdgeschoss einen Wohn-, Ess- und Küchenbereich sowie ein Gäste-WC mit Dusche und Zugang zur Terrasse. Über eine interne Treppe gelangen Sie in den ersten Stock, der mit zwei Schlafzimmern und zwei Badezimmern ausgestattet wird. Im 2. Stock entsteht eine Dachterrasse, wie bereits s. o. beschrieben. Ideal für Familien, die viel Platz und Komfort schätzen.
Immobiliendaten
- Objektart: Haus
- Objekttyp: Doppelhaushälfte
- Baujahr: 2024
- ID: 6545
- Kaufpreis: 750.000 €
- Provision: 3,75 % inkl. MwSt. in Kroatien
- Grundstücksgröße: 260 m²
- Wohnfläche: 140 m²
- Anzahl Zimmer: 3
- Anzahl Schlafzimmer: 2
- Anzahl Badezimmer: 2
- Land: Kroatien
- Region: Dalmatien-Sibenik
- Ort: Bilice
- Meerentfernung: 20 m
- Ortsmitte: 700 m
Haben Sie Interesse die schöne Doppelhaushälfte zu besitzen?
Nehmen Sie gerne Kontakt mit mir auf!
Ich bin Heiner Reker, Gründer und
Geschäftsführer von Reker Immobilien d.o.o. Ich begleite Sie bei Ihrer aufregenden Reise in die Welt der Immobilien in Kroatien.
Gerne organisiere ich persönlich mit meinen qualifizierten Partnern jeden Schritt bei Ihrem rechtssicheren und stressfreien Immobilienkauf in Kroatien.
Füllen Sie das Formular aus und ich melde mich gerne zum gewünschten Zeitpunkt bei Ihnen.
Bis bald
Exposé mitnehmen?
Laden Sie unser PDF-Exposé herunter und Sie haben die wichtigste Objektdaten & Bilder immer zur Hand
Exposé mitnehmen?
Nehmen Sie Kontakt mit uns auf, ein Exposé schicken wir gerne per E-Mail
Ihre Traum-Immobilie noch nicht gefunden?
Besuchen Sie diese Seiten!
















