HARMONISCHES LEBEN IM NEUEN STEINHAUS-DOPPELHÄLFTE AUF DER IDYLLISCHEN INSEL KRK

Ländlich-romantisches Wohnen in Vrbnik
Die attraktive Haushälfte befindet sich auf der wunderschönen Insel Krk in der idyllischen Stadt Vrbnik. Sie ist von unberührter Natur und verschwenderischem Grün umgeben, was Ihnen das Gefühl gibt, in einer abgeschiedenen Oase zu wohnen. Obwohl das Meer nur 1 Kilometer entfernt ist, bietet diese Lage Privatsphäre und Ruhe. Hier können Sie dem Alltag entfliehen und sich in einer friedlichen Umgebung erholen.
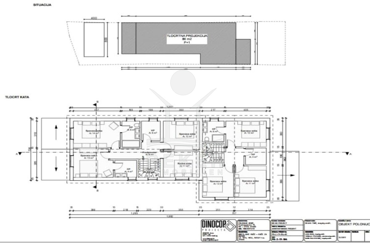
Das Haus auf einem wundervollen Grundstück verfügt über eine Wohnfläche von 140 m², die sich auf zwei Etagen verteilt: Erdgeschoss und Obergeschoss. Das Gebäude wurde erst im Jahr 2023 errichtet und verfügt über hochwertige Bauweise und Ausstattung.
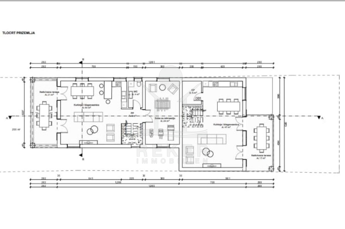
Eine überdachte Terrasse mit rustikalem Charme ist das Glanzstück dieser Immobilie. Die Terrasse ist mit Säulen und Ziegeloptik gestaltet und bietet einen wundervollen Blick auf den Pool und das restliche Anwesen. Hier finden Sie den perfekten Ort, um in Ihre Ruhe zu entspannen und sich von dem Stress des Alltags zu erholen. Das Wohnobjekt bietet außerdem Ihren frei stehende Parkplätze für zwei Autos, damit Sie Ihren Besuch stets willkommen heißen können.
Das Haus wurde in einer hochwertigen Bauweise errichtet und ist mit einer modernen Klimaanlage ausgestattet. Im Erdgeschoss befindet sich ein Wohnzimmer mit Esszimmer und Küche, Fitnessraum, sowie ein Gäste-WC. Eine Innentreppe führt Sie in 1. Stock, wo weitere Räumlichkeiten auf Sie warten. Vier Schlafzimmer und drei Badezimmer. Genießen Sie den Wohnkomfort und die luxuriöse Ausstattung in Ihrem neuen Zuhause.



Das Adriatische Meer
- Meerentfernung: 1 km
Die Immobilie
- Doppelhaushälfte in Vrbnik, Kvarner-Bucht
- Baujahr: 2023
- Zustand: Neuwertig
- Wohnfläche: 160 m²
- Etagenzahl: 2
- Überdachte Terrasse
Mediterraner Garten
- Swimming Pool
- Steinmauer
Ausstattung
- Anzahl Zimmer: 5
- Anzahl Schlafzimmer: 4
- Anzahl Badezimmer: 3
- Heizung: Klimaanlage
Die Doppelhaushälfte erwartet Sie in Vrbnik!
- Ort: Vrbnik (Dorf)
- Region: Kvarner-Bucht
- Insel: Krk
- Autobahnentfernung: ca. 28 km *
- Nächster Flughafen: Rijeka / ca. 25 km *

Immobiliendaten
- Objektart: Haus
- Objekttyp: Doppelhaushälfte
- Baujahr: 2023
- ID: 5353
- Kaufpreis: 490.000 €
- Provision: 3,75 % inkl. MwSt. in Kroatien
- Wohnfläche: 160 m²
- Anzahl Zimmer: 5
- Anzahl Schlafzimmer: 4
- Anzahl Badezimmer: 3
- Land: Kroatien
- Region: Kvarner-Bucht
- Ort: Vrbnik
- Meerentfernung: 1 km
Haben Sie Interesse die schöne Doppelhaushälfte zu besitzen?
Nehmen Sie gerne Kontakt mit mir auf!
Ich bin Heiner Reker, Gründer und
Geschäftsführer von Reker Immobilien d.o.o. Ich begleite Sie bei Ihrer aufregenden Reise in die Welt der Immobilien in Kroatien.
Gerne organisiere ich persönlich mit meinen qualifizierten Partnern jeden Schritt bei Ihrem rechtssicheren und stressfreien Immobilienkauf in Kroatien.
Füllen Sie das Formular aus und ich melde mich gerne zum gewünschten Zeitpunkt bei Ihnen.
Bis bald

Exposé mitnehmen?
Laden Sie unser PDF-Exposé herunter und Sie haben die wichtigste Objektdaten & Bilder immer zur Hand
Exposé mitnehmen?
Nehmen Sie Kontakt mit uns auf, ein Exposé schicken wir gerne per E-Mail
Ihre Traum-Immobilie noch nicht gefunden?
Besuchen Sie diese Seiten!