POOL, DACHTERRASSE UND RUHE: MODERNE DOPPELHAUSHÄLFTE NAHE MEER IN VODICE
Lage & Außenbereich
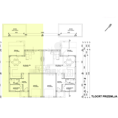
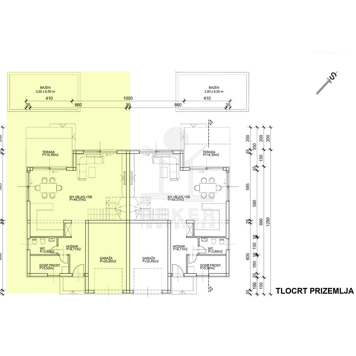
Diese moderne Doppelhaushälfte befindet sich in ruhiger Wohnlage von Vodice. Zum Meer sind es etwa 500 m, das Stadtzentrum erreichen Sie nach rund 1.000 m. Die Nachbarschaft ist von zeitgenössischen Einfamilienhäusern und Villen geprägt. Eine Umgebung, die Ruhe und Alltagstauglichkeit verbindet. Zum Haus gehören eine Garage mit 22,40 m² sowie ein gepflasterter Stellplatz auf dem Grundstück. Parken ist damit komfortabel gelöst.
Das Haus entsteht aktuell als hochwertiger Neubau nach modernen Baustandards. Die Fertigstellung ist für den Sommer 2026 vorgesehen. Die ruhige Lage, die großzügigen Außenflächen und die klare Raumaufteilung sprechen sowohl Familien als auch Käufer mit langfristigem Investitionshorizont an.
Innenraum & Interieur
Im Erdgeschoss konzentriert sich das Wohnen auf den offenen Wohnbereich mit Blick in den Garten. Wohnküche und Wohnraum gehen direkt in die überdachte Terrasse mit 14,35 m² über. Innen- und Außenbereich greifen fließend ineinander. Der etwa 280 m² große Garten wird mediterran bepflanzt und durch einen privaten Swimmingpool mit 3,50 × 6,50 m ergänzt. Platz für Erholung, Familienzeit und gemeinsame Stunden. Ergänzend stehen ein überdachter Eingangsbereich, ein Flur, ein Technikraum und ein Gäste-WC zur Verfügung.
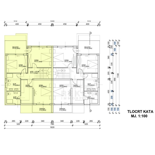
Das erste Obergeschoss ist klar gegliedert. Zwei Schlafzimmer verfügen über Zugang zu einem gemeinsamen überdachten Balkon mit 10,30 m². Ein Badezimmer ergänzt diesen Bereich. Das Hauptschlafzimmer bietet ein eigenes Bad, ein Ankleidezimmer und Zugang zu einer weiteren überdachten Terrasse mit 5,55 m². Über die Innentreppe erreichen Sie das zweite Obergeschoss. Hier öffnet sich eine großzügige Dachterrasse mit 92,15 m², die vielfältig nutzbar ist.
Geplant sind Sicherheitstüren, ALU-Fenster mit elektrischen Jalousien sowie hydraulische Fußbodenheizung im gesamten Haus. Klimaanlagen zum Heizen und Kühlen sind in Wohn- und Schlafräumen vorgesehen. Hinzu kommen Videoüberwachung, ein Schornstein und Glasgeländer auf den Terrassen.
Die Doppelhaushälfte erwartet Sie in Vodice!
- Ort: Vodice (Stadt)
- Einwohnerzahl: 8.875 (2011)
- Region: Dalmatien-Sibenik
- Autobahnentfernung: ca. 16 km *
- Nächster Flughafen: Zadar / ca. 62 km *
Immobiliendaten
- Objektart: Haus
- Objekttyp: Doppelhaushälfte
- Baujahr: 2026
- ID: 9588
- Kaufpreis: 520.000 €
- Provision: 3,75 % inkl. MwSt. in Kroatien
- Grundstücksgröße: 280 m²
- Wohnfläche: 204 m²
- Anzahl Zimmer: 4
- Anzahl Schlafzimmer: 3
- Anzahl Badezimmer: 2
- Land: Kroatien
- Region: Dalmatien-Sibenik
- Ort: Vodice
- Meerentfernung: 500 m
Haben Sie Interesse die schöne Doppelhaushälfte zu besitzen?
Nehmen Sie gerne Kontakt mit mir auf!
Ich bin Heiner Reker, Gründer und
Geschäftsführer von Reker Immobilien d.o.o. Ich begleite Sie bei Ihrer aufregenden Reise in die Welt der Immobilien in Kroatien.
Gerne organisiere ich persönlich mit meinen qualifizierten Partnern jeden Schritt bei Ihrem rechtssicheren und stressfreien Immobilienkauf in Kroatien.
Füllen Sie das Formular aus und ich melde mich gerne zum gewünschten Zeitpunkt bei Ihnen.
Bis bald
Exposé mitnehmen?
Laden Sie unser PDF-Exposé herunter und Sie haben die wichtigste Objektdaten & Bilder immer zur Hand
Exposé mitnehmen?
Nehmen Sie Kontakt mit uns auf, ein Exposé schicken wir gerne per E-Mail
Ihre Traum-Immobilie noch nicht gefunden?
Besuchen Sie diese Seiten!
































