EXKLUSIVE DOPPELHAUSHÄLFTE IN VODICE MIT POOL, GARAGE UND TRAUMHAFTEM MEERBLICK
Lage & Außenbereich
In ruhiger Lage von Vodice, rund 1.600 m vom Ortszentrum und etwa 1.300 m vom Strand entfernt, entsteht diese moderne Doppelhaushälfte mit freiem Blick auf das Meer. Die Umgebung zeigt sich sonnig, gepflegt und naturnah. Eine passende Wahl für Käufer, die Ruhe schätzen und kurze Wege nicht missen möchten. Zwei Stellplätze in der Garage bieten Komfort und Sicherheit direkt im Haus.
Im Außenbereich stehen eine überdachte Terrasse mit, eine Sonnenterrasse sowie ein privater Pool zur Verfügung. Hier verbringen Sie entspannte Stunden im Freien oder lange Abende. Der Garten ist landschaftlich gestaltet und fügt sich stimmig in das Umfeld ein. Dank Südausrichtung begleitet die Sonne den Tag bis in die Abendstunden.
Innenraum & Interieur
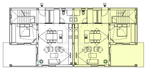
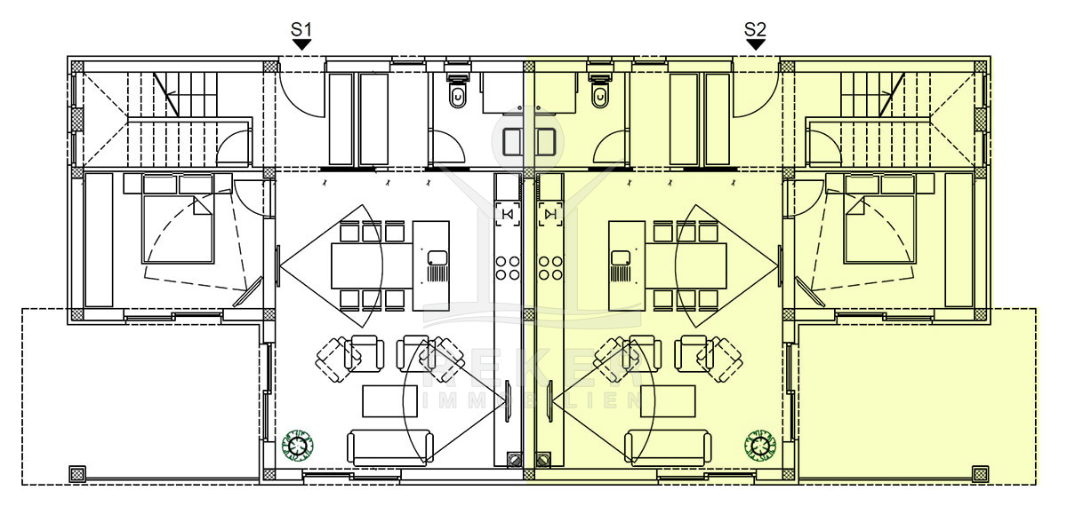
Im Erdgeschoss öffnet sich der Wohn- und Essbereich mit offener Küche. Von hier aus gelangen Sie direkt auf Terrasse und zum Pool. Ergänzt wird diese Ebene durch ein Schlafzimmer und ein Badezimmer. Praktisch für Gäste oder das Wohnen auf einer Ebene.
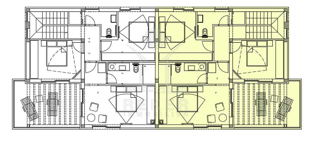
Das Obergeschoss erreichen Sie über die Innentreppe. Hier stehen drei weitere Schlafzimmer zur Verfügung. Das Hauptschlafzimmer bietet ein eigenes Bad sowie Zugang zu einer großen überdachten Terrasse. Ausblick inklusive.
Im Untergeschoss befinden sich die Doppelgarage, ein Abstellraum und der Technikraum für den Pool. Klar organisiert und funktional.
Die Ausstattung erfüllt hohe Ansprüche. Fußbodenheizung in Wohn- und Badezimmern, Klimaanlagen in allen Schlafzimmern und im Wohnzimmer sowie eine 10 cm starke Styroporfassade gehören dazu. PVC-Fenster und -Türen in Anthrazit, Moskitonetze und elektrische Jalousien sind vorgesehen. Eine einbruchsichere Eingangstür, Satellitenanschluss und eine solide Bauausführung nach aktuellen Standards sorgen für Sicherheit und dauerhafte Wertstabilität.
Die Doppelhaushälfte erwartet Sie in Vodice!
- Ort: Vodice (Stadt)
- Einwohnerzahl: 8.875 (2011)
- Region: Dalmatien-Sibenik
- Autobahnentfernung: ca. 16 km *
- Nächster Flughafen: Zadar / ca. 62 km *
Immobiliendaten
- Objektart: Haus
- Objekttyp: Doppelhaushälfte
- Baujahr: 2025
- ID: 9591
- Kaufpreis: 650.000 €
- Provision: 3,75 % inkl. MwSt. in Kroatien
- Grundstücksgröße: 379 m²
- Wohnfläche: 235 m²
- Anzahl Zimmer: 5
- Anzahl Schlafzimmer: 4
- Anzahl Badezimmer: 3
- Land: Kroatien
- Region: Dalmatien-Sibenik
- Ort: Vodice
- Meerentfernung: 1 km
Haben Sie Interesse die schöne Doppelhaushälfte zu besitzen?
Nehmen Sie gerne Kontakt mit mir auf!
Ich bin Heiner Reker, Gründer und
Geschäftsführer von Reker Immobilien d.o.o. Ich begleite Sie bei Ihrer aufregenden Reise in die Welt der Immobilien in Kroatien.
Gerne organisiere ich persönlich mit meinen qualifizierten Partnern jeden Schritt bei Ihrem rechtssicheren und stressfreien Immobilienkauf in Kroatien.
Füllen Sie das Formular aus und ich melde mich gerne zum gewünschten Zeitpunkt bei Ihnen.
Bis bald
Exposé mitnehmen?
Laden Sie unser PDF-Exposé herunter und Sie haben die wichtigste Objektdaten & Bilder immer zur Hand
Exposé mitnehmen?
Nehmen Sie Kontakt mit uns auf, ein Exposé schicken wir gerne per E-Mail
Ihre Traum-Immobilie noch nicht gefunden?
Besuchen Sie diese Seiten!

































