FÜR FAMILIEN MIT STIL: NEUBAUHAUS IN POREČ MIT GARTEN, POOL & PRIVATER WELLNESSZONE
Lage & Außenbereich
Ruhig wohnen, grün umgeben und doch nah am Meer: In Poreč entsteht dieses moderne Neubauhaus, nur zwei Kilometer vom Stadtzentrum und 1,7 Kilometer von der Küste entfernt. Die Lage verbindet Privatsphäre mit kurzen Wegen zu Einkaufsmöglichkeiten, Schulen und Restaurants. Parkplätze sind direkt auf dem Grundstück vorhanden.
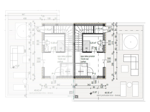
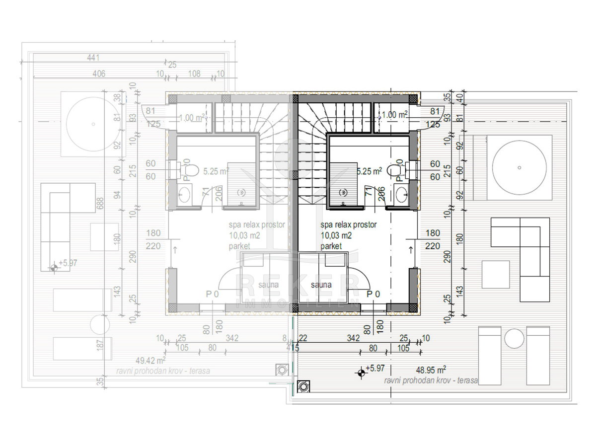
Der Außenbereich lädt zum Entspannen ein. Eine überdachte Terrasse öffnet sich zum gepflegten Garten mit einem 12,6 m² großen Pool, ein geschützter Platz für sonnige Tage. Die 48,95 m² große Dachterrasse ist nach Westen ausgerichtet und bietet Raum für einen Whirlpool und den schönsten Blick auf den Sonnenuntergang.
Innenraum & Interieur
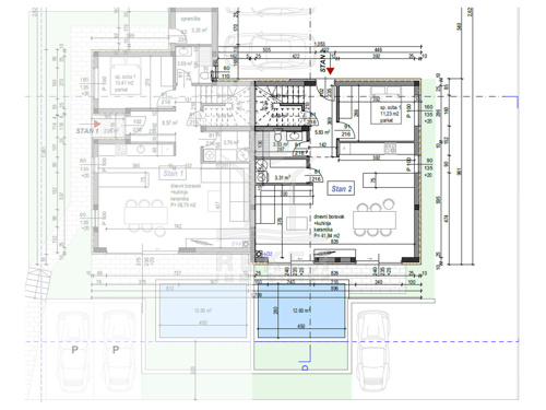
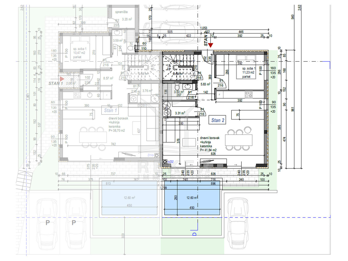
Auf drei Etagen verteilt sich eine Gesamtfläche von 166,18 m². Im Erdgeschoss erwarten Sie der offene Wohn- und Essbereich mit Küche, ein Schlafzimmer, ein Badezimmer, eine Waschküche und ein Abstellraum. Im ersten Stock befinden sich drei Schlafzimmer mit eigenen Bädern, zwei davon mit Zugang zum Balkon. Das Dachgeschoss bildet das Highlight: ein privater SPA-Bereich mit Sauna, Bad und großer Terrasse, ein Ort für Ruhe und Erholung.
Fußbodenheizung und Klimaanlage schaffen das ganze Jahr über ein angenehmes Klima. Große Glasflächen sorgen für Helligkeit und eine freundliche Atmosphäre. Der erfahrene Investor steht für hochwertige Projekte in Istrien. Die Fertigstellung ist für Juni 2026 geplant.
Die Doppelhaushälfte erwartet Sie in Poreč!
Die Stadt ist wegen der guten Lage und des umfangreichen Tourismusangebots mehrfach ausgezeichnet worden. Sie ist eine der bedeutendsten Küstenstädte an der Westküste der Halbinsel Istrien in Kroatien.
- Ort: Poreč (Stadt)
- Einwohnerzahl: 16.696 (2011)
- Region: Istrien
- Autobahnentfernung: ca. 10 km *
- Nächster Flughafen: Pula / ca. 56 km *
Immobiliendaten
- Objektart: Haus
- Objekttyp: Doppelhaushälfte
- Baujahr: 2026
- ID: 9442
- Kaufpreis: 550.000 €
- Provision: 3,75 % inkl. MwSt. in Kroatien
- Grundstücksgröße: 146 m²
- Wohnfläche: 166 m²
- Anzahl Zimmer: 5
- Anzahl Schlafzimmer: 4
- Anzahl Badezimmer: 4
- Land: Kroatien
- Region: Istrien
- Ort: Poreč
- Meerentfernung: 2 km
Haben Sie Interesse die schöne Doppelhaushälfte zu besitzen?
Nehmen Sie gerne Kontakt mit mir auf!
Ich bin Heiner Reker, Gründer und
Geschäftsführer von Reker Immobilien d.o.o. Ich begleite Sie bei Ihrer aufregenden Reise in die Welt der Immobilien in Kroatien.
Gerne organisiere ich persönlich mit meinen qualifizierten Partnern jeden Schritt bei Ihrem rechtssicheren und stressfreien Immobilienkauf in Kroatien.
Füllen Sie das Formular aus und ich melde mich gerne zum gewünschten Zeitpunkt bei Ihnen.
Bis bald
Exposé mitnehmen?
Laden Sie unser PDF-Exposé herunter und Sie haben die wichtigste Objektdaten & Bilder immer zur Hand
Exposé mitnehmen?
Nehmen Sie Kontakt mit uns auf, ein Exposé schicken wir gerne per E-Mail
Ihre Traum-Immobilie noch nicht gefunden?
Besuchen Sie diese Seiten!








