EINE INVESTITION IN DAS GLÜCK: DOPPELHAUSHÄLFTE IN POREČ - LEBEN AN DER KÜSTE IN PERFEKTION
In der Nähe der Adriaküste und des historischen Zentrums von Poreč
Die bezaubernde Haushälfte befindet sich in einer attraktiven Lage in Poreč. Sie liegt nur 3,5 km von der malerischen Adriaküste und 4,5 km von dem historischen Zentrum von Poreč entfernt. Somit bieten sich Ihnen zahlreiche Möglichkeiten, das Leben am Meer zu genießen und in das reiche kulturelle Erbe dieser charmanten Stadt einzutauchen. Die nahe gelegene Adriaküste lädt mit ihren schönen Stränden und Buchten zum Sonnenbaden und Schwimmen ein. Das historische Zentrum von Poreč beeindruckt mit seinen engen Gassen, historischen Gebäuden und dem UNESCO-Weltkulturerbe. Durch die attraktive Lage der Doppelhaushälfte können Sie sowohl die Schönheit der Küste als auch das historische Erbe von Poreč bequem erkunden.
Das Anwesen liegt auf einem Grundstück von 550 m², das mit einer grünen Hecke umzäunt ist und dadurch Privatsphäre bietet. Das Gebäude erstreckt sich über 2 Etagen und bietet eine großzügige Wohnfläche von 158 m². Das Haus wurde im Jahr 2018 gebaut und bietet modernen Komfort und Stil.
Die überdachte Terrasse des Hauses bietet einen idealen Platz im Freien, um die frische Luft zu genießen und sich zu entspannen. Ob zum Grillen mit Freunden oder einfach nur zum Entspannen und Lesen, die Terrasse lädt zu gemütlichen Stunden im Freien ein. Mit einem Parkplatz für 2 Autos steht Ihnen ausreichend Platz zur Verfügung. Diese Doppelhaushälfte bietet nicht nur Charme, sondern auch genug Raum, um das Haus nach Ihren persönlichen Vorstellungen zu gestalten.
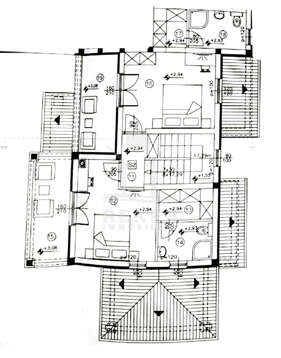
Komfort und Privatsphäre auf zwei Etagen
Die Immobilie ist klimatisiert und voll möbliert, damit Sie sich sofort wie zu Hause fühlen können. Im Erdgeschoss erwarten Sie ein großzügiges Wohnzimmer mit einem gemütlichen Holzkamin, eine voll ausgestattete Küche und ein helles Esszimmer. Das Erdgeschoss bietet zudem einen praktischen Abstellraum, einen Flur, ein Badezimmer und ein geräumiges Schlafzimmer mit eigenem Bad und einer Garderobe.
Im ersten Stock des Hauses finden Sie zwei weitere Schlafzimmer, jeweils mit einer eigenen Terrasse, einem Ankleidezimmer und einem Bad. Hier können Sie absolute Privatsphäre und Komfort genießen.
Die Doppelhaushälfte erwartet Sie in Poreč!
Die Stadt ist wegen der guten Lage und des umfangreichen Tourismusangebots mehrfach ausgezeichnet worden. Sie ist eine der bedeutendsten Küstenstädte an der Westküste der Halbinsel Istrien in Kroatien.
- Ort: Poreč (Stadt)
- Einwohnerzahl: 16.696 (2011)
- Region: Istrien
- Autobahnentfernung: ca. 10 km *
- Nächster Flughafen: Pula / ca. 56 km *
Immobiliendaten
- Objektart: Haus
- Objekttyp: Doppelhaushälfte
- Baujahr: 2018
- ID: 6354
- Kaufpreis: 590.000 €
- Provision: 3,75 % inkl. MwSt. in Kroatien
- Grundstücksgröße: 550 m²
- Wohnfläche: 158 m²
- Anzahl Zimmer: 4
- Anzahl Schlafzimmer: 3
- Anzahl Badezimmer: 4
- Land: Kroatien
- Region: Istrien
- Ort: Poreč
- Meerentfernung: 4 km
- Ortsmitte: 4500 m
Haben Sie Interesse die schöne Doppelhaushälfte zu besitzen?
Nehmen Sie gerne Kontakt mit mir auf!
Ich bin Heiner Reker, Gründer und
Geschäftsführer von Reker Immobilien d.o.o. Ich begleite Sie bei Ihrer aufregenden Reise in die Welt der Immobilien in Kroatien.
Gerne organisiere ich persönlich mit meinen qualifizierten Partnern jeden Schritt bei Ihrem rechtssicheren und stressfreien Immobilienkauf in Kroatien.
Füllen Sie das Formular aus und ich melde mich gerne zum gewünschten Zeitpunkt bei Ihnen.
Bis bald
Exposé mitnehmen?
Laden Sie unser PDF-Exposé herunter und Sie haben die wichtigste Objektdaten & Bilder immer zur Hand
Exposé mitnehmen?
Nehmen Sie Kontakt mit uns auf, ein Exposé schicken wir gerne per E-Mail
Ihre Traum-Immobilie noch nicht gefunden?
Besuchen Sie diese Seiten!
















