LUXURIÖS WOHNEN: NEUBAU-DOPPELHAUSHÄLFTE MIT POOL, BALKONEN UND DREI SUITEN
Lage & Außenbereich
In Malinska auf der Insel Krk entsteht ein modernes Doppelhaus mit 193 m² Wohnfläche. Die Lage ist ruhig, das Meer nur 700 Meter entfernt. Hier genießen Sie Privatsphäre und zugleich kurze Wege. Zwei überdachte Stellplätze direkt am Haus machen den Alltag unkompliziert.
Das Grundstück umfasst rund 200 m². Kompakt, aber mit vielen Extras. Ein privater Pool mit Naturstein-Terrasse sorgt für Urlaubsatmosphäre. Die bioklimatische Pergola spendet Schatten und macht den Außenbereich zum Treffpunkt für entspannte Stunden mit Familie oder Freunden.
Innenraum & Interieur
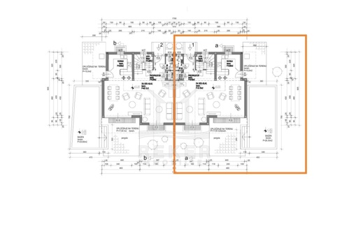
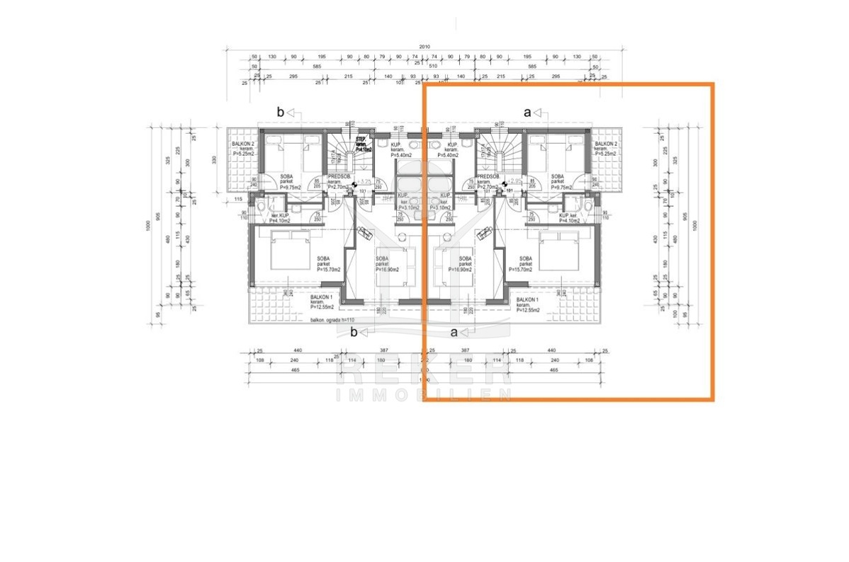
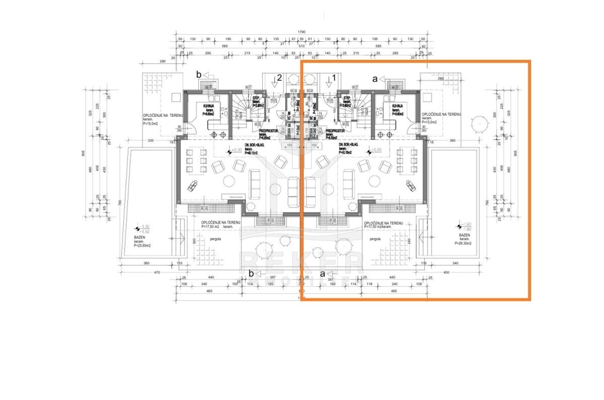
Im Erdgeschoss finden Sie einen großzügigen Wohnbereich mit Küche und Essplatz, ergänzt durch einen Abstellraum und eine Gästetoilette. Zwei Terrassen erweitern den Wohnraum ins Freie. Der erste Stock bietet drei Schlafzimmer, jeweils mit eigenem Bad und Zugang zu einem Balkon. So genießt jeder Bewohner Komfort und Privatsphäre. Im Kellergeschoss stehen ein zusätzlicher Abstellraum, eine Waschküche und der Technikraum für den Pool zur Verfügung.
Die Ausstattung ist hochwertig: Fußbodenheizung, Wärmepumpe, Klimaanlage und edle Sanitärkeramik sorgen für Wohnkomfort zu jeder Jahreszeit. Aluminium-Fenster mit Rollläden, stilvolle Böden und die klare Architektur runden das Bild ab. Ein Haus, das moderne Technik mit durchdachter Aufteilung verbindet. Dazu kommen Meerblick, Ruhe und kurze Wege zum Strand.
Die Doppelhaushälfte erwartet Sie in Malinska!
- Ort: Malinska (Dorf)
- Einwohnerzahl: 965 (2011)
- Region: Kvarner-Bucht
- Insel: Krk
- Autobahnentfernung: ca. 18 km *
- Nächster Flughafen: Rijeka / ca. 15 km *
Immobiliendaten
- Objektart: Haus
- Objekttyp: Doppelhaushälfte
- Baujahr: 2025
- ID: 9271
- Kaufpreis: 1.395.000 €
- Provision: 3,75 % inkl. MwSt. in Kroatien
- Grundstücksgröße: 200 m²
- Wohnfläche: 193 m²
- Anzahl Zimmer: 4
- Anzahl Schlafzimmer: 3
- Anzahl Badezimmer: 3
- Land: Kroatien
- Region: Kvarner-Bucht
- Ort: Malinska
- Meerentfernung: 700 m
Haben Sie Interesse die schöne Doppelhaushälfte zu besitzen?
Nehmen Sie gerne Kontakt mit mir auf!
Ich bin Heiner Reker, Gründer und
Geschäftsführer von Reker Immobilien d.o.o. Ich begleite Sie bei Ihrer aufregenden Reise in die Welt der Immobilien in Kroatien.
Gerne organisiere ich persönlich mit meinen qualifizierten Partnern jeden Schritt bei Ihrem rechtssicheren und stressfreien Immobilienkauf in Kroatien.
Füllen Sie das Formular aus und ich melde mich gerne zum gewünschten Zeitpunkt bei Ihnen.
Bis bald
Exposé mitnehmen?
Laden Sie unser PDF-Exposé herunter und Sie haben die wichtigste Objektdaten & Bilder immer zur Hand
Exposé mitnehmen?
Nehmen Sie Kontakt mit uns auf, ein Exposé schicken wir gerne per E-Mail
Ihre Traum-Immobilie noch nicht gefunden?
Besuchen Sie diese Seiten!






















