400 METER ZUM MEER: MODERNE DOPPELHAUSHÄLFTE MIT TERRASSE, POOL UND PRIVATEM GARTEN
Lage & Außenbereich
Drage, ein ruhiger Küstenort zwischen Zadar und Šibenik, bildet den Rahmen für diese moderne Doppelhaushälfte in bester Lage. Das Meer ist hier glasklar, dazu kommen ein neuer Yachthafen und mediterranes Flair. Strände und Nationalparks erreichen Sie schnell, der Flughafen Zadar ist nur 35 Minuten entfernt. Drei private Stellplätze sorgen für bequemen Alltag.
Das Grundstück umfasst rund 300 m² Gartenfläche mit gepflegtem Außenbereich. Vom Erdgeschoss führt der Weg direkt auf die überdachte Terrasse, die an den 8 × 4 m großen Pool mit Sonnendeck anschließt. Ein echtes Highlight ist die Dachterrasse: Whirlpool, Lounge-Zone, viel Privatsphäre und ein weiter Blick aufs Meer.
Innenraum & Interieur
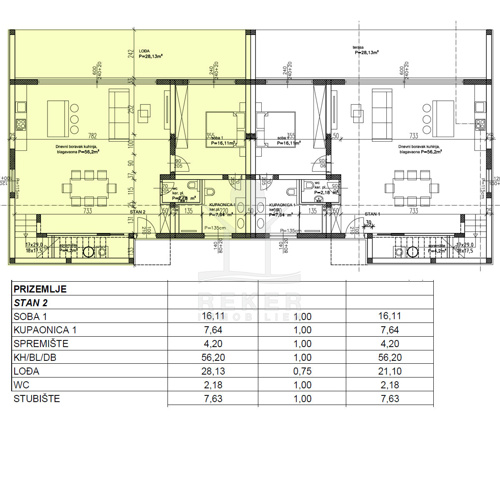
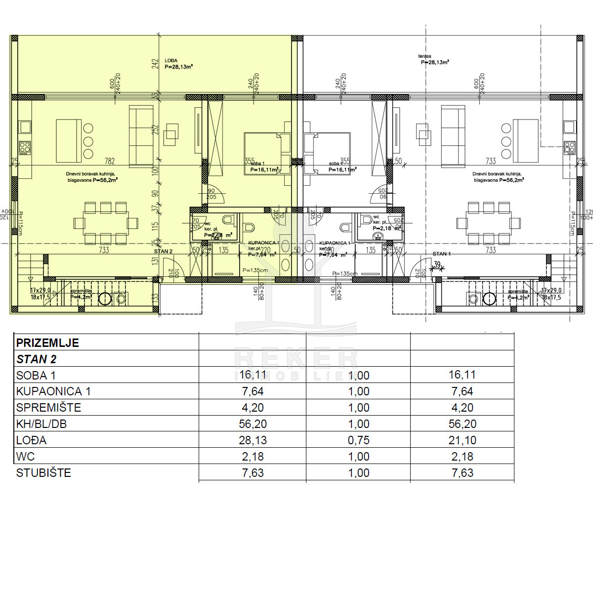
Mit 265 m² Wohnfläche auf drei Etagen bietet das Haus reichlich Platz. Im Erdgeschoss finden Sie einen hellen Wohn- und Essbereich mit moderner Küche, ein Schlafzimmer mit Bad en suite, ein Gäste-WC sowie einen Technik- und Abstellraum. Im Obergeschoss gibt es drei weitere Schlafzimmer, alle mit eigenem Bad und privater Terrasse. Auch hier öffnet sich Ihnen der Blick aufs Meer. Hochwertige Miele-Geräte, maßgefertigte Möbel und stimmungsvolle Beleuchtung von Prggin setzen klare Akzente in Sachen Wohnqualität.
Das Zusammenspiel aus moderner Architektur, exklusiver Ausstattung und klarer Raumaufteilung macht die Immobilie sowohl für Ferienaufenthalte als auch für dauerhaftes Wohnen interessant.
Immobiliendaten
- Objektart: Haus
- Objekttyp: Doppelhaushälfte
- Baujahr: 2025
- ID: 9294
- Kaufpreis: 1.100.000 €
- Provision: 3,75 % inkl. MwSt. in Kroatien
- Grundstücksgröße: 300 m²
- Wohnfläche: 348 m²
- Anzahl Zimmer: 5
- Anzahl Schlafzimmer: 4
- Anzahl Badezimmer: 4
- Land: Kroatien
- Region: Dalmatien-Zadar
- Ort: Drage
- Meerentfernung: 400 m
Haben Sie Interesse die schöne Doppelhaushälfte zu besitzen?
Nehmen Sie gerne Kontakt mit mir auf!
Ich bin Heiner Reker, Gründer und
Geschäftsführer von Reker Immobilien d.o.o. Ich begleite Sie bei Ihrer aufregenden Reise in die Welt der Immobilien in Kroatien.
Gerne organisiere ich persönlich mit meinen qualifizierten Partnern jeden Schritt bei Ihrem rechtssicheren und stressfreien Immobilienkauf in Kroatien.
Füllen Sie das Formular aus und ich melde mich gerne zum gewünschten Zeitpunkt bei Ihnen.
Bis bald
Exposé mitnehmen?
Laden Sie unser PDF-Exposé herunter und Sie haben die wichtigste Objektdaten & Bilder immer zur Hand
Exposé mitnehmen?
Nehmen Sie Kontakt mit uns auf, ein Exposé schicken wir gerne per E-Mail
Ihre Traum-Immobilie noch nicht gefunden?
Besuchen Sie diese Seiten!





































