LIEBLINGSPLATZ AM MEER: MEDITERRANER NEUBAU MIT STIL, POOL & WEITBLICK
Lage & Außenbereich
Nur 300 Meter zum Meer. Ein kurzer Spaziergang – und Sie stehen am Wasser. Das Haus liegt in Martinšćica, auf der Insel Cres. Ruhige Lage, kaum Verkehr. Asphaltierte Zufahrt. Vier Stellplätze direkt vor dem Haus. Die Umgebung? Natürlich. Mediterran. Viel Sonne, viel Himmel. Und: Blick aufs Meer.
Das Grundstück ist 622 Quadratmeter groß. Genug Platz für alles, was draußen Spaß macht. Ein Pool ist schon geplant. Daneben eine Terrasse mit 57 Quadratmetern. Perfekt für Liegestuhl und Kaffee. Dazu ein Garten mit 100 Quadratmetern – pflegeleicht, aber schön. Und weil es praktisch sein soll: Es gibt einen Grill und eine kleine Taverne. Für gesellige Abende. Oder einfach Ruhe.
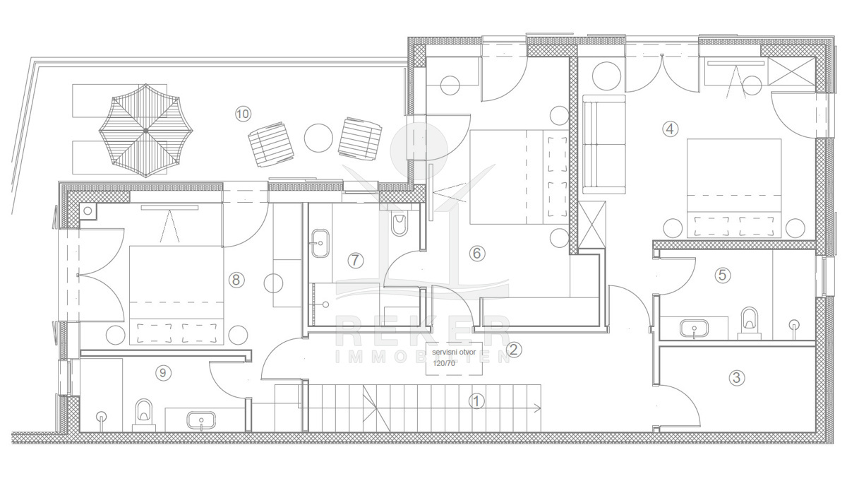
Innenraum & Interieur
Das Haus hat zwei Etagen und insgesamt 268 Quadratmeter Wohnfläche. Unten ist der Wohnbereich offen gestaltet. Kochen, Essen, Wohnen – alles fließt ineinander. Ein Gäste-WC ist auch da. Und ein Schlafzimmer mit eigenem Bad.
Oben geht’s weiter: drei Schlafzimmer, jedes mit eigenem Bad. Zwei davon haben Zugang zu einem Balkon. Technik? Da ist alles vorbereitet. Heizung per Wärmepumpe. Internet, Alarmanlage, alles da. Fertig ist alles 2026. Und falls Sie mitreden wollen – bei Fliesen und Böden haben Sie ein Wörtchen mitzureden.
Immobiliendaten
- Objektart: Haus
- Objekttyp: Doppelhaushälfte
- Baujahr: 2026
- ID: 8638
- Kaufpreis: 1.545.000 €
- Provision: 3,75 % inkl. MwSt. in Kroatien
- Grundstücksgröße: 622 m²
- Wohnfläche: 268 m²
- Anzahl Zimmer: 5
- Anzahl Schlafzimmer: 4
- Anzahl Badezimmer: 4
- Land: Kroatien
- Region: Kvarner-Bucht
- Ort: Martinšćica
- Lage: Ortslage
- Meerentfernung: 250 m
Haben Sie Interesse die schöne Doppelhaushälfte zu besitzen?
Nehmen Sie gerne Kontakt mit mir auf!
Ich bin Heiner Reker, Gründer und
Geschäftsführer von Reker Immobilien d.o.o. Ich begleite Sie bei Ihrer aufregenden Reise in die Welt der Immobilien in Kroatien.
Gerne organisiere ich persönlich mit meinen qualifizierten Partnern jeden Schritt bei Ihrem rechtssicheren und stressfreien Immobilienkauf in Kroatien.
Füllen Sie das Formular aus und ich melde mich gerne zum gewünschten Zeitpunkt bei Ihnen.
Bis bald
Exposé mitnehmen?
Laden Sie unser PDF-Exposé herunter und Sie haben die wichtigste Objektdaten & Bilder immer zur Hand
Exposé mitnehmen?
Nehmen Sie Kontakt mit uns auf, ein Exposé schicken wir gerne per E-Mail
Ihre Traum-Immobilie noch nicht gefunden?
Besuchen Sie diese Seiten!

























