NEUBAU DOPPELHAUSHÄLFTE MIT 4 ZIMMERN ZUM ERSTBEZUG MIT GARTEN

Doppelhaushälfte in ruhigem Stadtteil in Vodice
Der Neubau befindet sich in einem ruhigen Stadtteil von Vodice und bietet die ideale Umgebung für Familien, die Komfort und Nähe zu allen notwendigen Einrichtungen suchen. Der Neubau liegt nur 800 Meter vom lebhaften Stadtzentrum entfernt, wo Sie eine Vielzahl von Restaurants, Cafés und Geschäften finden. Für entspannte Tage am Meer sind es lediglich 1500 Meter bis zum Strand, der Ihnen die Möglichkeit zum Sonne tanken und Schwimmen bietet.
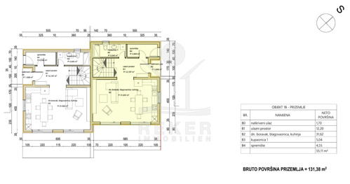
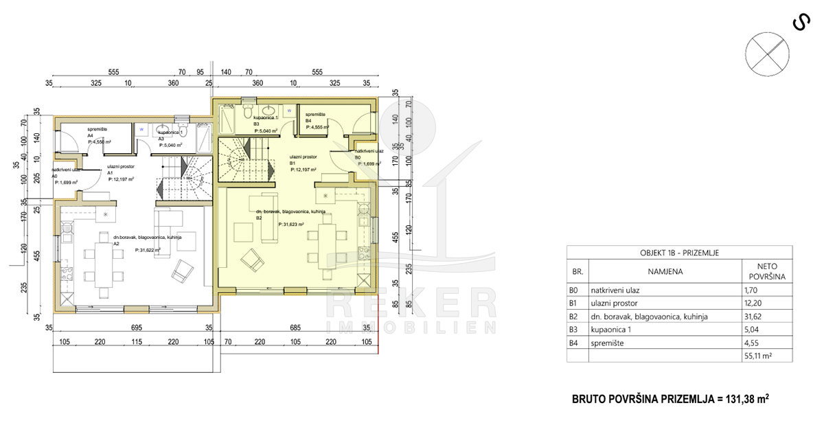
Das Haus erstreckt sich über 2 Etagen und bietet großzügige 110 m² Wohnfläche. Klimatisierte Räume in jedem Schlafzimmer sowie eine Fußbodenheizung im Badezimmer sorgen für unübertroffenen Komfort und Behaglichkeit. Die PVC-Fenster mit elektrischen Jalousien und edle Keramikverkleidungen runden das moderne Innendesign ab. Das Haus befindet sich derzeit im Bau und wird voraussichtlich Ende 2025 bezugsfertig sein. Mit 2 verfügbaren Parkplätzen ist das Angebot dieses Hauses perfekt abgerundet.
Die beeindruckende Haushälfte begeistert von Anfang an mit ihrer durchdachten Raumaufteilung, die viel Licht und Freiheit schafft. Im Erdgeschoss empfängt Sie ein eleganter Eingangsbereich, gefolgt von einem stilvollen Badezimmer und einem praktischen Abstellraum. Der offene Wohn-, Ess- und Küchenbereich bietet direkten Zugang zur Terrasse und zum weitläufigen Garten – der ideale Ort für gesellige Stunden im Freien.
Eine geschmackvolle, innenliegende Treppe führt Sie ins Obergeschoss, wo das Master-Schlafzimmer mit eigenem Badezimmer und Balkon eine wahre Oase der Ruhe und Privatsphäre darstellt. Ergänzt wird dieser Bereich durch 2 weitere Schlafzimmer, die sich ein geräumiges Badezimmer teilen.


Das Adriatische Meer
- Meerentfernung: 2 km
Die Immobilie
- Doppelhaushälfte in Vodice, Dalmatien-Sibenik
- Baujahr: 2025
- Zustand: Erstbezug
- Wohnfläche: 110 m² – Grundstücksgröße: 170 m²
- Etagenzahl: 2
Ausstattung
- Anzahl Zimmer: 4
- Anzahl Schlafzimmer: 3
- Anzahl Badezimmer: 3
- Heizung: Elektro, Fußbodenheizung, Klimaanlage
Die Doppelhaushälfte erwartet Sie in Vodice!
- Ort: Vodice (Stadt)
- Einwohnerzahl: 8.875 (2011)
- Region: Dalmatien-Sibenik
- Autobahnentfernung: ca. 16 km *
- Nächster Flughafen: Zadar / ca. 62 km *

Immobiliendaten
- Objektart: Haus
- Objekttyp: Doppelhaushälfte
- Baujahr: 2025
- ID: 8249
- Kaufpreis: 310.000 €
- Provision: 3,75 % inkl. MwSt. in Kroatien
- Grundstücksgröße: 170 m²
- Wohnfläche: 110 m²
- Anzahl Zimmer: 4
- Anzahl Schlafzimmer: 3
- Anzahl Badezimmer: 3
- Land: Kroatien
- Region: Dalmatien-Sibenik
- Ort: Vodice
- Lage: Stadtteil
- Meerentfernung: 2 km
Haben Sie Interesse die schöne Doppelhaushälfte zu besitzen?
Nehmen Sie gerne Kontakt mit mir auf!
Ich bin Heiner Reker, Gründer und
Geschäftsführer von Reker Immobilien d.o.o. Ich begleite Sie bei Ihrer aufregenden Reise in die Welt der Immobilien in Kroatien.
Gerne organisiere ich persönlich mit meinen qualifizierten Partnern jeden Schritt bei Ihrem rechtssicheren und stressfreien Immobilienkauf in Kroatien.
Füllen Sie das Formular aus und ich melde mich gerne zum gewünschten Zeitpunkt bei Ihnen.
Bis bald

Exposé mitnehmen?
Laden Sie unser PDF-Exposé herunter und Sie haben die wichtigste Objektdaten & Bilder immer zur Hand
Exposé mitnehmen?
Nehmen Sie Kontakt mit uns auf, ein Exposé schicken wir gerne per E-Mail
Ihre Traum-Immobilie noch nicht gefunden?
Besuchen Sie diese Seiten!