NEUBAU DOPPELHAUSHÄLFTE MIT 4 ZIMMERN ZUM ERSTBEZUG MIT GARTEN

Doppelhaushälfte in ruhigem Stadtteil in Vodice
Der Neubau in Vodice vereint die Vorzüge ruhigen Wohnens mit der Nähe zu lebhaftem Stadtleben. Eingebettet in einem ruhigen Stadtteil genießen Sie hier die perfekte Balance zwischen Rückzug und Erreichbarkeit. Umgeben von einer idyllischen Nachbarschaft sind Sie nur 800 Meter vom pulsierenden Stadtzentrum entfernt, wo Ihnen eine Vielzahl an Restaurants, Geschäften und kulturellen Angeboten zur Verfügung stehen.
Die Doppelhaushälfte erstreckt sich über 2 Etagen und bietet großzügige 110 m² Wohnfläche. Die hochwertige Styroporfassade gewährleistet eine ausgezeichnete Isolierung, während klimatisierte Räume in jedem Zimmer und Fußbodenheizung im Badezimmer zusätzlichen Komfort bieten. PVC-Fenster mit elektrischen Jalousien sowie edle Keramik ergänzen das moderne Innendesign. Das Haus befindet sich aktuell im Bau, mit einer voraussichtlichen Fertigstellung Ende 2025. Mit 2 verfügbaren Parkplätzen ist das Angebot dieses Hauses perfekt abgerundet..
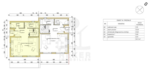
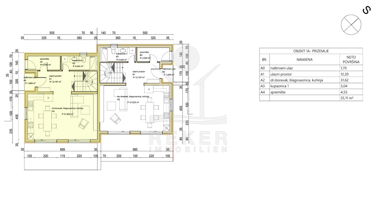
Die beeindruckende Haushälfte begeistert von Anfang an mit ihrer durchdachten Raumaufteilung, die viel Licht und Freiheit schafft. Im Erdgeschoss empfängt Sie ein eleganter Eingangsbereich, gefolgt von einem stilvollen Badezimmer und einem praktischen Abstellraum. Der offene Wohn-, Ess- und Küchenbereich bietet direkten Zugang zur Terrasse und zum weitläufigen Garten – der ideale Ort für gesellige Stunden im Freien.
Eine innenliegende Treppe führt Sie ins Obergeschoss, wo das Master-Schlafzimmer mit eigenem Badezimmer und Balkon eine Oase der Ruhe und Privatsphäre bietet. Zusätzlich stehen 2 weitere Schlafzimmer zur Verfügung, die sich ein geräumiges Badezimmer teilen.


Das Adriatische Meer
- Meerentfernung: 2 km
Die Immobilie
- Doppelhaushälfte in Vodice, Dalmatien-Sibenik
- Baujahr: 2025
- Zustand: Erstbezug
- Wohnfläche: 110 m² – Grundstücksgröße: 170 m²
- Etagenzahl: 2
Ausstattung
- Anzahl Zimmer: 5
- Anzahl Schlafzimmer: 3
- Anzahl Badezimmer: 3
- Heizung: Elektro, Fußbodenheizung, Klimaanlage
Die Doppelhaushälfte erwartet Sie in Vodice!
- Ort: Vodice (Stadt)
- Einwohnerzahl: 8.875 (2011)
- Region: Dalmatien-Sibenik
- Autobahnentfernung: ca. 16 km *
- Nächster Flughafen: Zadar / ca. 62 km *

Immobiliendaten
- Objektart: Haus
- Objekttyp: Doppelhaushälfte
- Baujahr: 2025
- ID: 8248
- Kaufpreis: 310.000 €
- Provision: 3,75 % inkl. MwSt. in Kroatien
- Grundstücksgröße: 170 m²
- Wohnfläche: 110 m²
- Anzahl Zimmer: 5
- Anzahl Schlafzimmer: 3
- Anzahl Badezimmer: 3
- Land: Kroatien
- Region: Dalmatien-Sibenik
- Ort: Vodice
- Lage: Stadtteil
- Meerentfernung: 2 km
Haben Sie Interesse die schöne Doppelhaushälfte zu besitzen?
Nehmen Sie gerne Kontakt mit mir auf!
Ich bin Heiner Reker, Gründer und
Geschäftsführer von Reker Immobilien d.o.o. Ich begleite Sie bei Ihrer aufregenden Reise in die Welt der Immobilien in Kroatien.
Gerne organisiere ich persönlich mit meinen qualifizierten Partnern jeden Schritt bei Ihrem rechtssicheren und stressfreien Immobilienkauf in Kroatien.
Füllen Sie das Formular aus und ich melde mich gerne zum gewünschten Zeitpunkt bei Ihnen.
Bis bald

Exposé mitnehmen?
Laden Sie unser PDF-Exposé herunter und Sie haben die wichtigste Objektdaten & Bilder immer zur Hand
Exposé mitnehmen?
Nehmen Sie Kontakt mit uns auf, ein Exposé schicken wir gerne per E-Mail
Ihre Traum-Immobilie noch nicht gefunden?
Besuchen Sie diese Seiten!