NEUBAU DOPPELHAUSHÄLFTE MIT GROSSZÜGIGEM RAUMANGEBOT & GARTEN IN VODICE

Doppelhaushälfte in ruhigem Stadtteil in Vodice
Der Neubau befindet sich in einem ruhigen Stadtteil von Vodice und bietet den idealen Rückzugsort für Familien. Mit nur 800 Metern zum Stadtzentrum haben Sie schnellen Zugang zu allen notwendigen Annehmlichkeiten und Freizeitmöglichkeiten. Hier finden Sie eine Vielzahl von Geschäften, Restaurants und Cafés, die das mediterrane Leben widerspiegeln. Der Strand ist nur 1500 Meter entfernt und lädt zum Verweilen ein. Zudem befindet sich ein Supermarkt in unmittelbarer Nähe, nur 350 Meter entfernt, wodurch der tägliche Einkauf zum Kinderspiel wird.
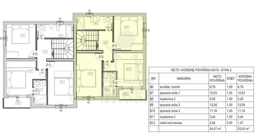
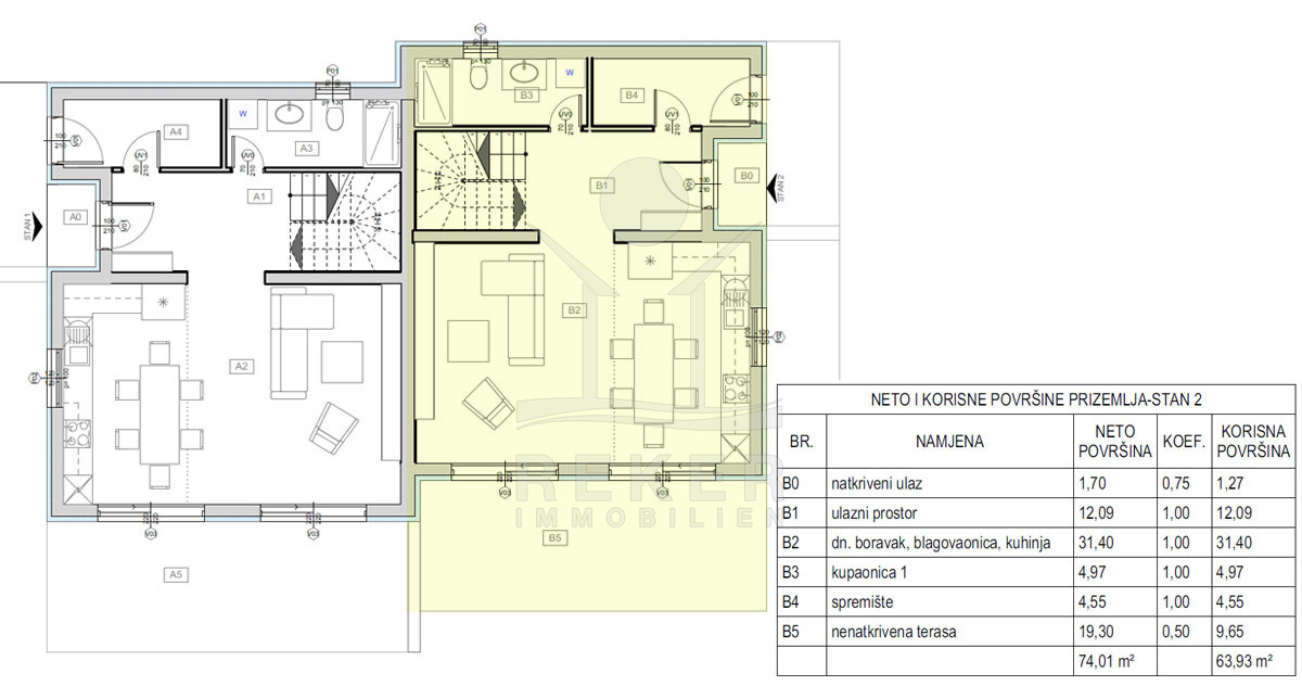
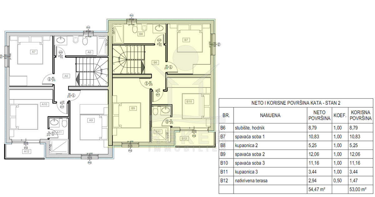
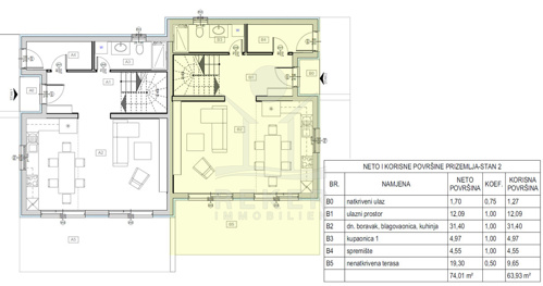
Die Doppelhaushälfte erstreckt sich über 2 Etagen und bietet großzügige 128 m² Wohnfläche mit einem Garten von 150 m². Die hochwertige Styroporfassade gewährleistet eine ausgezeichnete Isolierung, während klimatisierte Räume in jedem Zimmer und Fußbodenheizung im Badezimmer zusätzlichen Komfort bieten. PVC-Fenster mit elektrischen Jalousien sowie edle Keramik ergänzen das moderne Innendesign. Das Haus befindet sich aktuell im Bau, mit einer voraussichtlichen Fertigstellung Ende 2025. Mit 2 verfügbaren Parkplätzen ist das Angebot dieses Hauses perfekt abgerundet.
Die Haushälfte begrüßt Sie mit einer großzügigen und durchdachten Raumaufteilung, die viel Licht und Freiheit bietet. Der Eingangsbereich führt Sie direkt in ein modernes Badezimmer sowie in eine praktische Speisekammer. Das weitläufige Wohn-, Ess- und Küchenzimmer bietet ausreichend Platz für gesellige Zusammenkünfte und geht nahtlos auf eine beeindruckende Terrasse mit 22 m² über – ideal für entspannte Stunden im Freien.
Eine interne Treppe führt Sie ins Obergeschoss, wo das Master-Schlafzimmer mit eigenem Badezimmer und Balkon einen ruhigen Rückzugsort für Privatsphäre bietet. Zusätzlich stehen 2 weitere Schlafzimmer zur Verfügung, die sich ein gemeinsames Badezimmer teilen. Hier verbindet sich stilvolles Wohnen mit optimalem Komfort – ein perfektes Zuhause für Ihre Familie!


Das Adriatische Meer
- Meerentfernung: 2 km
Die Immobilie
- Doppelhaushälfte in Vodice, Dalmatien-Sibenik
- Baujahr: 2025
- Zustand: Erstbezug
- Wohnfläche: 128 m² – Grundstücksgröße: 150 m²
- Etagenzahl: 2
Ausstattung
- Anzahl Zimmer: 4
- Anzahl Schlafzimmer: 3
- Anzahl Badezimmer: 3
- Heizung: Elektro, Fußbodenheizung, Klimaanlage
Die Doppelhaushälfte erwartet Sie in Vodice!
- Ort: Vodice (Stadt)
- Einwohnerzahl: 8.875 (2011)
- Region: Dalmatien-Sibenik
- Autobahnentfernung: ca. 16 km *
- Nächster Flughafen: Zadar / ca. 62 km *

Immobiliendaten
- Objektart: Haus
- Objekttyp: Doppelhaushälfte
- Baujahr: 2025
- ID: 8247
- Kaufpreis: 320.000 €
- Provision: 3,75 % inkl. MwSt. in Kroatien
- Grundstücksgröße: 150 m²
- Wohnfläche: 128 m²
- Anzahl Zimmer: 4
- Anzahl Schlafzimmer: 3
- Anzahl Badezimmer: 3
- Land: Kroatien
- Region: Dalmatien-Sibenik
- Ort: Vodice
- Lage: Stadtteil
- Meerentfernung: 2 km
Haben Sie Interesse die schöne Doppelhaushälfte zu besitzen?
Nehmen Sie gerne Kontakt mit mir auf!
Ich bin Heiner Reker, Gründer und
Geschäftsführer von Reker Immobilien d.o.o. Ich begleite Sie bei Ihrer aufregenden Reise in die Welt der Immobilien in Kroatien.
Gerne organisiere ich persönlich mit meinen qualifizierten Partnern jeden Schritt bei Ihrem rechtssicheren und stressfreien Immobilienkauf in Kroatien.
Füllen Sie das Formular aus und ich melde mich gerne zum gewünschten Zeitpunkt bei Ihnen.
Bis bald

Exposé mitnehmen?
Laden Sie unser PDF-Exposé herunter und Sie haben die wichtigste Objektdaten & Bilder immer zur Hand
Exposé mitnehmen?
Nehmen Sie Kontakt mit uns auf, ein Exposé schicken wir gerne per E-Mail
Ihre Traum-Immobilie noch nicht gefunden?
Besuchen Sie diese Seiten!