FÜR INVESTOREN: RUHIGE TOP-MIKROLAGE NAHE PROMENADE MIT FERTIGER BAUGENEHMIGUNG
Lage & Außenbereich
Dieses Baugrundstück mit 748 m² befindet sich in einer besonders gefragten Mikrolage von Vodice. Das Umfeld ist ruhig. Promenade und Strand sind schnell erreichbar, gleichzeitig bleibt die Umgebung angenehm abgeschirmt. Zum neu renovierten Strand Vodice, Tribunj sind es nur 300 m. Das Zentrum von Vodice erreichen Sie nach rund 1.000 m. Die Lage ist sonnig, naturnah und bietet eine schöne Aussicht. Versorgungsanschlüsse sind bereits vorhanden, der Stromanschluss befindet sich im Erdgeschoss. Das erleichtert den Projektstart und spart Zeit.
Bauprojekt
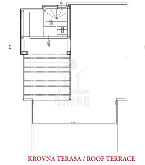
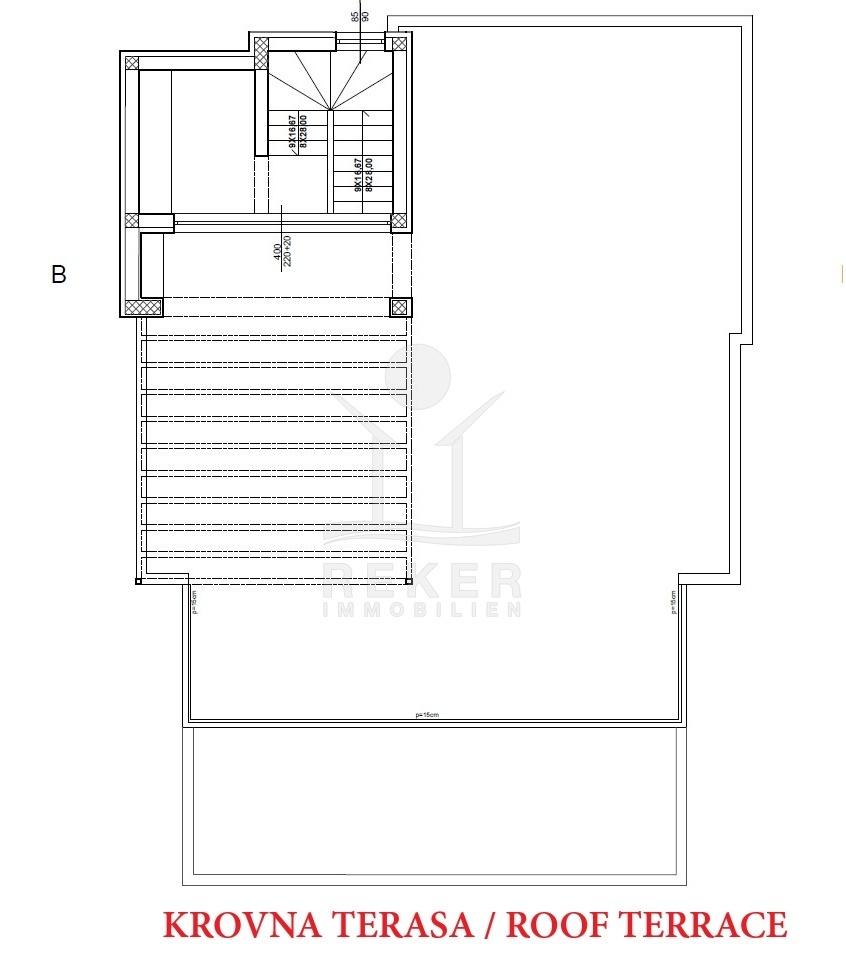
Für das Grundstück besteht eine gültige Baugenehmigung für ein modernes Wohngebäude mit vier Einheiten und Dachterrasse. Geplant sind zwei Apartments im Erdgeschoss. Hinzu kommen eine großzügige Wohnung im ersten Obergeschoss sowie eine weitere Wohnung mit drei Schlafzimmern im zweiten Obergeschoss. Zur oberen Einheit gehört eine private Dachterrasse mit 126,66 m². Sie eignet sich für Whirlpool, Sonnenliegen oder einen Loungebereich. Sechs Stellplätze sind vorgesehen. Das Architekturkonzept ist klar auf hochwertige Wohnungen und eine effiziente Umsetzung ausgerichtet.
Das Baugrundstück erwartet Sie in Vodice!
- Ort: Vodice (Stadt)
- Einwohnerzahl: 8.875 (2011)
- Region: Dalmatien-Sibenik
- Autobahnentfernung: ca. 16 km *
- Nächster Flughafen: Zadar / ca. 62 km *
Immobiliendaten
- Objektart: Grundstück
- Objekttyp: Baugrundstück
- ID: 9586
- Kaufpreis: 590.000 €
- Provision: 3,75 % inkl. MwSt. in Kroatien
- Grundstücksgröße: 748 m²
- Land: Kroatien
- Region: Dalmatien-Sibenik
- Ort: Vodice
- Meerentfernung: 300 m
Haben Sie Interesse das schöne Baugrundstück zu besitzen?
Nehmen Sie gerne Kontakt mit mir auf!
Ich bin Heiner Reker, Gründer und
Geschäftsführer von Reker Immobilien d.o.o. Ich begleite Sie bei Ihrer aufregenden Reise in die Welt der Immobilien in Kroatien.
Gerne organisiere ich persönlich mit meinen qualifizierten Partnern jeden Schritt bei Ihrem rechtssicheren und stressfreien Immobilienkauf in Kroatien.
Füllen Sie das Formular aus und ich melde mich gerne zum gewünschten Zeitpunkt bei Ihnen.
Bis bald
Exposé mitnehmen?
Laden Sie unser PDF-Exposé herunter und Sie haben die wichtigste Objektdaten & Bilder immer zur Hand
Exposé mitnehmen?
Nehmen Sie Kontakt mit uns auf, ein Exposé schicken wir gerne per E-Mail
Ihre Traum-Immobilie noch nicht gefunden?
Besuchen Sie diese Seiten!









