FÜR FAMILIEN & INVESTOREN: BAUGRUND AUF VIR MIT GENEHMIGTEN DOPPELHAUSHÄLFTEN
Lage & Außenbereich
Auf der beliebten Insel Vir wartet dieses 508 m² große Baugrundstück auf neue Eigentümer. Die Lage ist ruhig, umgeben von Grün und nur rund 250 Meter vom Sand-Kieselstrand entfernt. Ein kurzer Spaziergang genügt, um das Meer zu erreichen. Kanalanschluss und asphaltierte Zufahrt sind vorhanden. Das Grundstück befindet sich in einem der gefragtesten Bereiche der Insel, bekannt für hohe Lebensqualität und gepflegte Umgebung.
Bauprojekt
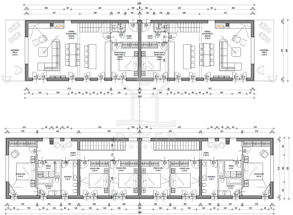
Eine erteilte und vollständig bezahlte Baugenehmigung für eine moderne Doppelhaushälfte liegt bereits vor. Jede Einheit umfasst rund 171 m² Wohnfläche mit offener Küche, Ess- und Wohnbereich, vier Schlafzimmern, zwei Bädern, Gäste-WC und Hauswirtschaftsraum. Ein privater Pool mit etwa 24 m² ergänzt das Konzept. Die Architektur ist modern und auf Privatsphäre ausgelegt.
Falls Sie eigene Vorstellungen haben, können Sie das Projekt flexibel anpassen – beispielsweise zu einem Einfamilien- oder Mehrfamilienhaus. Bereits bezahlte Nebenkosten werden angerechnet. Damit starten Sie ohne Umwege in Ihr Bauvorhaben auf einer der beliebtesten Inseln Dalmatiens.
Das Baugrundstück erwartet Sie in Vir!
- Ort: Vir (Stadt)
- Einwohnerzahl: 1.600 (2011)
- Region: Dalmatien-Zadar
- Insel: Vir
- Autobahnentfernung: ca. 38 km *
- Nächster Flughafen: Zadar / ca. 36 km *
Immobiliendaten
- Objektart: Grundstück
- Objekttyp: Baugrundstück
- ID: 9481
- Kaufpreis: 230.000 €
- Provision: 3,75 % inkl. MwSt. in Kroatien
- Grundstücksgröße: 508 m²
- Land: Kroatien
- Region: Dalmatien-Zadar
- Ort: Vir
- Meerentfernung: 250 m
Haben Sie Interesse das schöne Baugrundstück zu besitzen?
Nehmen Sie gerne Kontakt mit mir auf!
Ich bin Heiner Reker, Gründer und
Geschäftsführer von Reker Immobilien d.o.o. Ich begleite Sie bei Ihrer aufregenden Reise in die Welt der Immobilien in Kroatien.
Gerne organisiere ich persönlich mit meinen qualifizierten Partnern jeden Schritt bei Ihrem rechtssicheren und stressfreien Immobilienkauf in Kroatien.
Füllen Sie das Formular aus und ich melde mich gerne zum gewünschten Zeitpunkt bei Ihnen.
Bis bald
Exposé mitnehmen?
Laden Sie unser PDF-Exposé herunter und Sie haben die wichtigste Objektdaten & Bilder immer zur Hand
Exposé mitnehmen?
Nehmen Sie Kontakt mit uns auf, ein Exposé schicken wir gerne per E-Mail
Ihre Traum-Immobilie noch nicht gefunden?
Besuchen Sie diese Seiten!








