ZAUBERHAFTES MEERBLICK-GRUNDSTÜCK MIT POOLPROJEKT – 20 M BIS ZUM ADRIA-TRAUM
Lage & Außenbereich
Nur 20 Meter vom Meer entfernt liegt dieses traumhafte Grundstück in Trget, einem kleinen Küstenort in der Gemeinde Raša. Die ruhige Lage direkt an der Adriaküste bietet einen unverbaubaren Meerblick – ein seltenes Privileg. Die Umgebung ist geprägt von mediterraner Natur und gepflegten Grundstücken mit viel Privatsphäre. Der nahegelegene Bootshafen unterstreicht das maritime Flair und ermöglicht den Zugang zu einem Bootsliegeplatz.
Bauprojekt
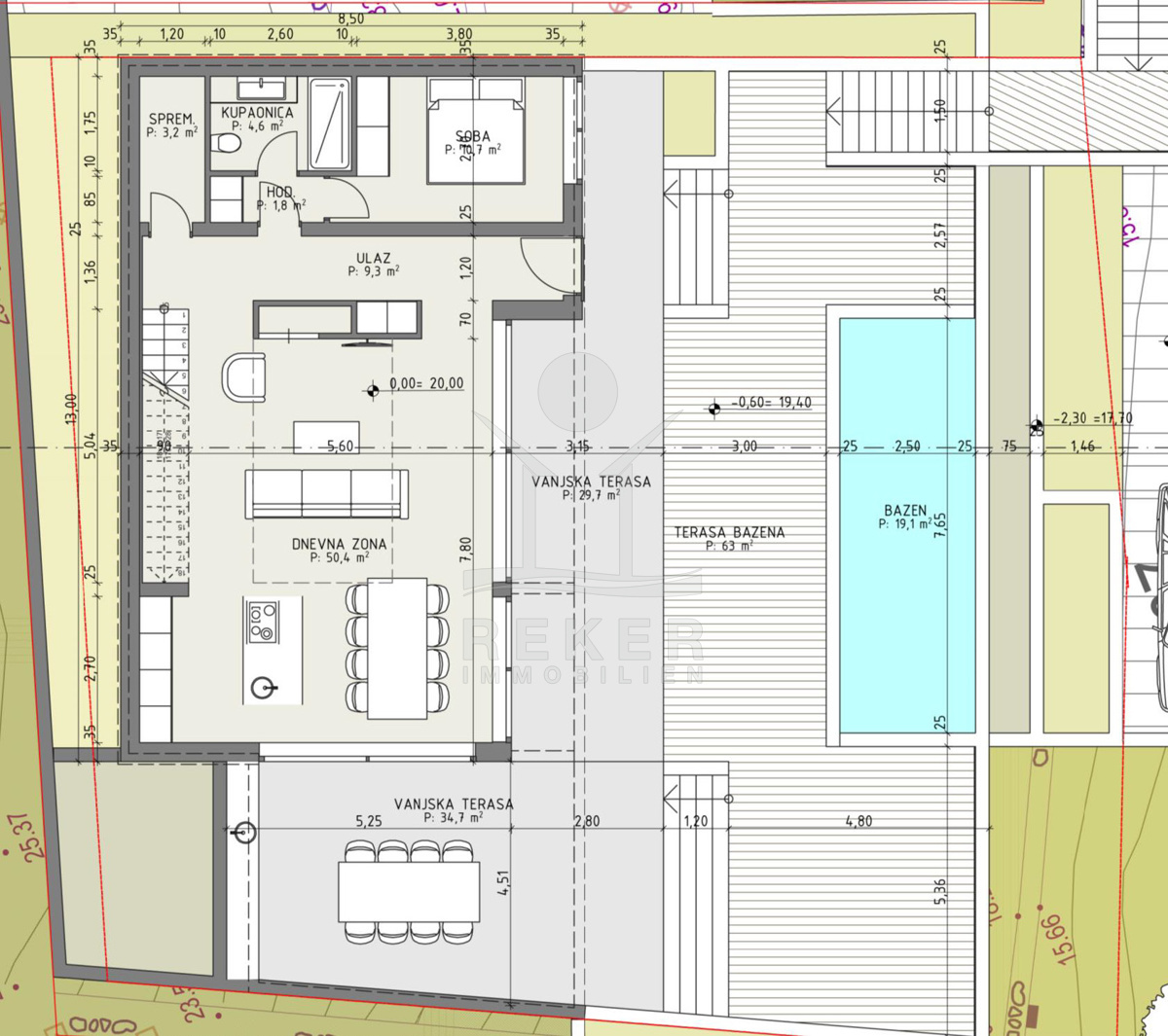
Das 525 m² große Grundstück verfügt über eine gültige Baugenehmigung sowie ein genehmigtes Projekt für ein modernes Einfamilienhaus mit Pool. Geplant ist ein zweigeschossiges Wohngebäude mit einer Gesamtwohnfläche von 130 m² netto. Das Erdgeschoss bietet 80 m² Innenfläche, ergänzt durch eine großzügige Terrasse von 64,40 m² sowie eine separate Poolterrasse mit 63 m². Der Pool misst 19,10 m². Das Obergeschoss umfasst 50 m² Innenfläche sowie einen 13,40 m² großen Balkon mit freiem Blick auf das Meer. Die vorbereitenden Ausgrabungen sind bereits erfolgt – der Bau kann unmittelbar starten.
Das Baugrundstück erwartet Sie in Trget!
- Ort: Trget (Dorf)
- Einwohnerzahl: 35 (2011)
- Region: Istrien
- Autobahnentfernung: ca. 27 km *
- Nächster Flughafen: Pula / ca. 34 km *
Immobiliendaten
- Objektart: Grundstück
- Objekttyp: Baugrundstück
- ID: 8686
- Kaufpreis: 350.000 €
- Provision: 3,75 % inkl. MwSt. in Kroatien
- Grundstücksgröße: 525 m²
- Land: Kroatien
- Region: Istrien
- Ort: Trget
- Meerentfernung: 20 m
Haben Sie Interesse das schöne Baugrundstück zu besitzen?
Nehmen Sie gerne Kontakt mit mir auf!
Ich bin Heiner Reker, Gründer und
Geschäftsführer von Reker Immobilien d.o.o. Ich begleite Sie bei Ihrer aufregenden Reise in die Welt der Immobilien in Kroatien.
Gerne organisiere ich persönlich mit meinen qualifizierten Partnern jeden Schritt bei Ihrem rechtssicheren und stressfreien Immobilienkauf in Kroatien.
Füllen Sie das Formular aus und ich melde mich gerne zum gewünschten Zeitpunkt bei Ihnen.
Bis bald
Exposé mitnehmen?
Laden Sie unser PDF-Exposé herunter und Sie haben die wichtigste Objektdaten & Bilder immer zur Hand
Exposé mitnehmen?
Nehmen Sie Kontakt mit uns auf, ein Exposé schicken wir gerne per E-Mail
Ihre Traum-Immobilie noch nicht gefunden?
Besuchen Sie diese Seiten!










