LEBEN ZWISCHEN MEER UND GRÜN: RUHIGES BAUGRUNDSTÜCK MIT PROJEKT FÜR VILLA, POOL UND GARTEN
Lage & Außenbereich
Dieses Baugrundstück in Sukošan liegt ruhig, umgeben von Wald, Grünflächen und modernen Häusern. Mit 611 m² bietet es eine solide Basis für den Bau einer privaten Villa. Die Form von etwa 17 mal 37 Metern macht die Planung einfach und übersichtlich. Privatsphäre ist gesichert, zugleich wohnen Sie in einem angenehmen Umfeld. Ein Platz mit Aussicht.
Der Meerblick ist das Highlight. Er verleiht dem Grundstück eine besondere Qualität. Strom, Leitungsanschluss und eine Zufahrtsstraße sind direkt am Grundstück vorhanden, praktisch für einen schnellen Start.
Bauprojekt
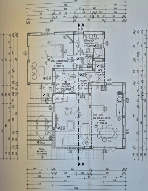
Zum Angebot gehört ein Projekt für eine moderne Villa mit Swimmingpool und Nebengebäude. Die Architektur setzt auf klare Linien und große Fensterfronten. Auf zwei Etagen sind großzügige Wohnbereiche geplant, die viel Raum für Komfort schaffen. Die Genehmigungsunterlagen sind bereits eingereicht. Damit ist ein rascher Baubeginn möglich.
Das Baugrundstück erwartet Sie in Sukošan!
- Ort: Sukošan (Gemeinde)
- Einwohnerzahl: 4.583 (2011)
- Region: Dalmatien-Zadar
- Autobahnentfernung: ca. 15 km *
- Nächster Flughafen: Zadar / ca. 11 km *
Immobiliendaten
- Objektart: Grundstück
- Objekttyp: Baugrundstück
- ID: 9255
- Kaufpreis: 90.000 €
- Provision: 3,75 % inkl. MwSt. in Kroatien
- Grundstücksgröße: 611 m²
- Land: Kroatien
- Region: Dalmatien-Zadar
- Ort: Sukošan
- Lage: Ortslage
- Meerentfernung: 3 km
Haben Sie Interesse das schöne Baugrundstück zu besitzen?
Nehmen Sie gerne Kontakt mit mir auf!
Ich bin Heiner Reker, Gründer und
Geschäftsführer von Reker Immobilien d.o.o. Ich begleite Sie bei Ihrer aufregenden Reise in die Welt der Immobilien in Kroatien.
Gerne organisiere ich persönlich mit meinen qualifizierten Partnern jeden Schritt bei Ihrem rechtssicheren und stressfreien Immobilienkauf in Kroatien.
Füllen Sie das Formular aus und ich melde mich gerne zum gewünschten Zeitpunkt bei Ihnen.
Bis bald
Exposé mitnehmen?
Laden Sie unser PDF-Exposé herunter und Sie haben die wichtigste Objektdaten & Bilder immer zur Hand
Exposé mitnehmen?
Nehmen Sie Kontakt mit uns auf, ein Exposé schicken wir gerne per E-Mail
Ihre Traum-Immobilie noch nicht gefunden?
Besuchen Sie diese Seiten!









