EIN SCHÖNES GRUNDSTÜCK MIT BAUGENEHMIGUNG FÜR EINE VILLA & EINEN AUSSENPOOL
Das Grundstück liegt in einer ruhiger Umgebung
Das Grundstück befindet sich in einer ruhigen Umgebung und überzeugt durch seine Nähe zur historischen Stadt Zadar, die nur eine kurze Fahrt entfernt ist. Zudem beträgt die Entfernung zum Meer lediglich 250 m, was das Grundstück besonders attraktiv für Erholungssuchende und Familien macht.
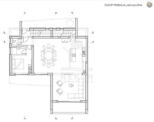
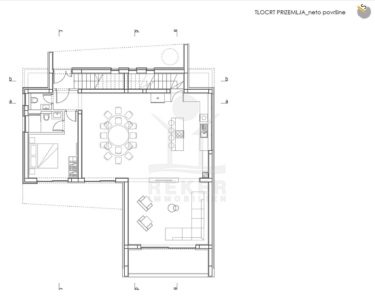
Das Baugrundstück in Sukošan bietet die perfekte Gelegenheit zum Bau einer eleganten 2-stöckigen Villa mit Untergeschoss und einem Außenpool. Die Fläche des Grundstücks beträgt 544 m², und es liegt bereits eine genehmigte Baugenehmigung für die Realisierung einer 200 m² großen Villa vor.
Im Erdgeschoss der Villa sind eine moderne Küche, ein einladendes Esszimmer und ein großzügiges Wohnzimmer vorgesehen. Zusätzlich wird 1 Schlafzimmer mit eigenem Badezimmer, ein separates WC sowie eine Terrasse, die den Zugang zum Außenpool ermöglicht, integriert.
Das Obergeschoss bietet Platz für 3 komfortable Schlafzimmer, die jeweils mit eigenen Badezimmern und Terrassen ausgestattet sind. Diese durchdachte Raumaufteilung ermöglicht hohen Wohnkomfort und Privatsphäre.
Das Baugrundstück erwartet Sie in Sukošan!
- Ort: Sukošan (Gemeinde)
- Einwohnerzahl: 4.583 (2011)
- Region: Dalmatien-Zadar
- Autobahnentfernung: ca. 15 km *
- Nächster Flughafen: Zadar / ca. 11 km *
Immobiliendaten
- Objektart: Grundstück
- Objekttyp: Baugrundstück
- ID: 8469
- Kaufpreis: 215.000 €
- Provision: 3,75 % inkl. MwSt. in Kroatien
- Grundstücksgröße: 544 m²
- Land: Kroatien
- Region: Dalmatien-Zadar
- Ort: Sukošan
- Lage: Ortslage
- Meerentfernung: 250 m
Haben Sie Interesse das schöne Baugrundstück zu besitzen?
Nehmen Sie gerne Kontakt mit mir auf!
Ich bin Heiner Reker, Gründer und
Geschäftsführer von Reker Immobilien d.o.o. Ich begleite Sie bei Ihrer aufregenden Reise in die Welt der Immobilien in Kroatien.
Gerne organisiere ich persönlich mit meinen qualifizierten Partnern jeden Schritt bei Ihrem rechtssicheren und stressfreien Immobilienkauf in Kroatien.
Füllen Sie das Formular aus und ich melde mich gerne zum gewünschten Zeitpunkt bei Ihnen.
Bis bald
Exposé mitnehmen?
Laden Sie unser PDF-Exposé herunter und Sie haben die wichtigste Objektdaten & Bilder immer zur Hand
Exposé mitnehmen?
Nehmen Sie Kontakt mit uns auf, ein Exposé schicken wir gerne per E-Mail
Ihre Traum-Immobilie noch nicht gefunden?
Besuchen Sie diese Seiten!




















