GRUNDSTÜCK IM GORSKI KOTAR MIT BAUPROJEKT FÜR MODERNES EINFAMILIENHAUS
Lage & Außenbereich
In Ravna Gora, mitten im Gorski Kotar, wartet ein 800 m² großes Baugrundstück auf neue Eigentümer. Die ruhige Lage am Rande des Dorfes verbindet Natur und Nachbarschaft: viel Grün rundherum, kleine Straßen, gepflegte Häuser. Eine Zufahrt führt direkt zum Grundstück, Strom, Wasser und Abwasser sind in unmittelbarer Nähe verfügbar.
Bauprojekt
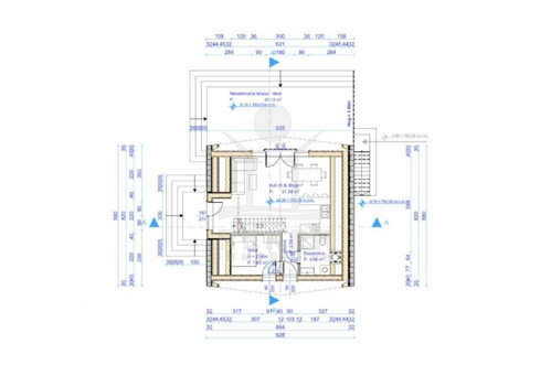
Zum Grundstück gehört bereits ein genehmigungsreifes Projekt für ein Einfamilienhaus mit 136,68 m² Bruttofläche. Geplant sind Keller, Erdgeschoss und ein erster Stock. Im Erdgeschoss: ein heller Wohn- und Essbereich mit Zugang zu einer großzügigen Terrasse, dazu Schlafzimmer und Bad. Im Obergeschoss: zwei weitere Zimmer. Damit ist das Haus ideal für Familien, die sich ein modernes Zuhause in naturnaher Umgebung wünschen.
Immobiliendaten
- Objektart: Grundstück
- Objekttyp: Baugrundstück
- ID: 9264
- Kaufpreis: 59.000 €
- Provision: 3,75 % inkl. MwSt. in Kroatien
- Grundstücksgröße: 800 m²
- Land: Kroatien
- Region: Kvarner-Bucht
- Ort: Ravna Gora
- Meerentfernung: 35 km
Haben Sie Interesse das schöne Baugrundstück zu besitzen?
Nehmen Sie gerne Kontakt mit mir auf!
Ich bin Heiner Reker, Gründer und
Geschäftsführer von Reker Immobilien d.o.o. Ich begleite Sie bei Ihrer aufregenden Reise in die Welt der Immobilien in Kroatien.
Gerne organisiere ich persönlich mit meinen qualifizierten Partnern jeden Schritt bei Ihrem rechtssicheren und stressfreien Immobilienkauf in Kroatien.
Füllen Sie das Formular aus und ich melde mich gerne zum gewünschten Zeitpunkt bei Ihnen.
Bis bald
Exposé mitnehmen?
Laden Sie unser PDF-Exposé herunter und Sie haben die wichtigste Objektdaten & Bilder immer zur Hand
Exposé mitnehmen?
Nehmen Sie Kontakt mit uns auf, ein Exposé schicken wir gerne per E-Mail
Ihre Traum-Immobilie noch nicht gefunden?
Besuchen Sie diese Seiten!





