PLANUNG FERTIG, ERSTE BAUPHASE BEZAHLT: NACHHALTIGES DESIGNHAUS MIT POOL
Lage & Außenbereich
Knapp 10 Kilometer von Poreč entfernt liegt dieses 841 m² große Baugrundstück in einer kleinen Siedlung. Die schöne yLage am Rand der Bebauung schafft Raum für Erholung – ohne den Anschluss zu verlieren. In nur zwei Minuten sind Sie auf der Autobahn. In der Stadt sind Sie in weniger als 15 Minuten. Das Grundstück selbst liegt eben, gut geschnitten und bietet genug Platz für einen Pool, Garten und Terrasse. Die Baugenehmigung ist bereits erteilt. Auch die Versorgungsbeiträge wurden schon bezahlt. Strom und Wasser liegen direkt am Grundstück.
Bauprojekt
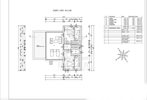
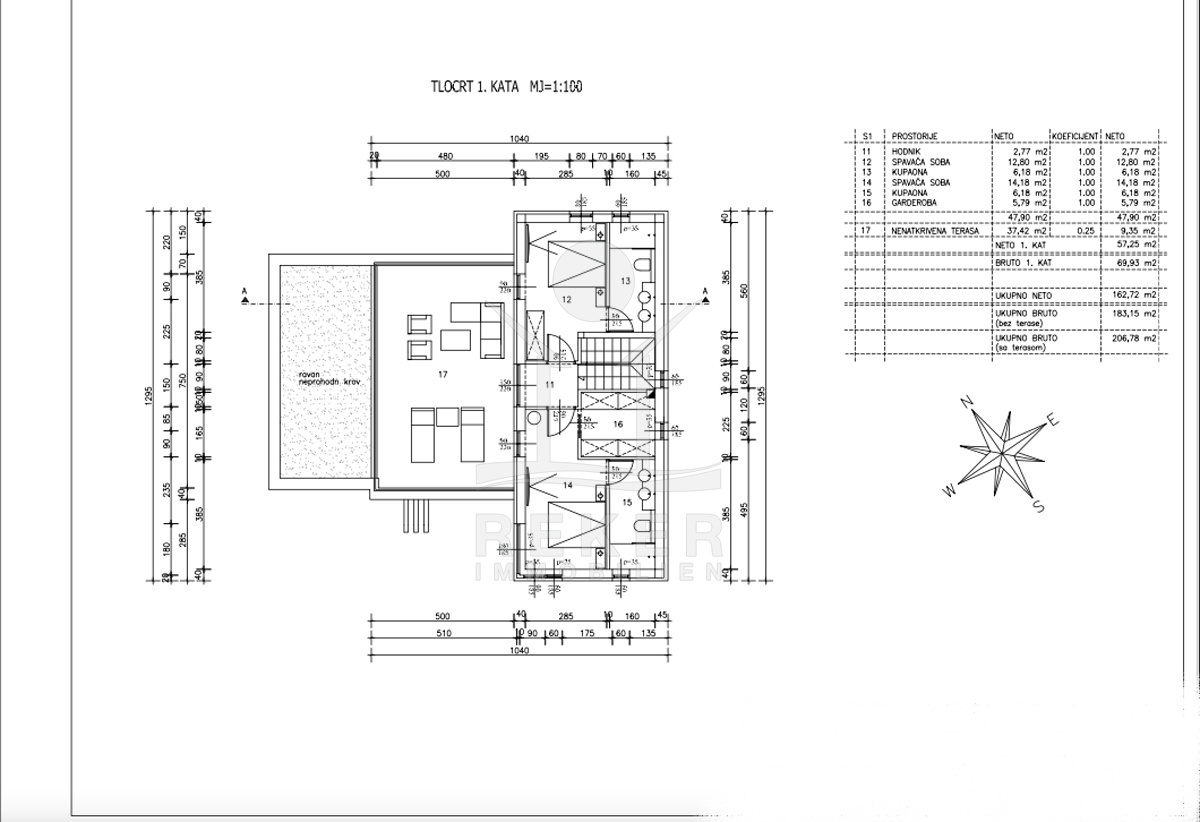
Geplant ist ein modernes Einfamilienhaus mit klaren Linien und zwei Ebenen. Die Nettofläche beträgt rund 162 m². Es gibt drei Schlafzimmer, drei Bäder und offene Wohnbereiche. Besonders schön: Das Erdgeschoss ist komplett barrierefrei und hat direkten Zugang zur Terrasse und zum 30 m² großen Pool. Das Haus wird in nachhaltiger Fertigbauweise errichtet. Der Vorteil ist energieeffizient, langlebig, durchdacht bis ins Detail. Im Kaufpreis ist bereits der erste Bauabschnitt enthalten – das spart zusätzlich rund 60.000 € und bringt das Projekt direkt voran.
Das Baugrundstück erwartet Sie in Poreč!
Die Stadt ist wegen der guten Lage und des umfangreichen Tourismusangebots mehrfach ausgezeichnet worden. Sie ist eine der bedeutendsten Küstenstädte an der Westküste der Halbinsel Istrien in Kroatien.
- Ort: Poreč (Stadt)
- Einwohnerzahl: 16.696 (2011)
- Region: Istrien
- Autobahnentfernung: ca. 10 km *
- Nächster Flughafen: Pula / ca. 56 km *
Immobiliendaten
- Objektart: Grundstück
- Objekttyp: Baugrundstück
- ID: 9007
- Kaufpreis: 199.000 €
- Provision: 3,75 % inkl. MwSt. in Kroatien
- Grundstücksgröße: 841 m²
- Land: Kroatien
- Region: Istrien
- Ort: Poreč
- Lage: Ortslage
- Meerentfernung: 10 km
Haben Sie Interesse das schöne Baugrundstück zu besitzen?
Nehmen Sie gerne Kontakt mit mir auf!
Ich bin Heiner Reker, Gründer und
Geschäftsführer von Reker Immobilien d.o.o. Ich begleite Sie bei Ihrer aufregenden Reise in die Welt der Immobilien in Kroatien.
Gerne organisiere ich persönlich mit meinen qualifizierten Partnern jeden Schritt bei Ihrem rechtssicheren und stressfreien Immobilienkauf in Kroatien.
Füllen Sie das Formular aus und ich melde mich gerne zum gewünschten Zeitpunkt bei Ihnen.
Bis bald
Exposé mitnehmen?
Laden Sie unser PDF-Exposé herunter und Sie haben die wichtigste Objektdaten & Bilder immer zur Hand
Exposé mitnehmen?
Nehmen Sie Kontakt mit uns auf, ein Exposé schicken wir gerne per E-Mail
Ihre Traum-Immobilie noch nicht gefunden?
Besuchen Sie diese Seiten!














