DIE IDEALE LAGE FÜR IHR NEUES ZUHAUSE: GRUNDSTÜCK IN PLOĆE, UMGEBEN VON WASSER UND NATURSCHÖNHEITEN
Einzigartiges Grundstück in Ploće
Das traumhafte Baugrundstück befindet sich in einer einzigartigen Gegend von Ploće und bietet die perfekte Gelegenheit, Ihr persönliches Paradies zu gestalten. Die Lage ist einfach unübertrefflich, nur wenige Schritte vom Meer, Fluss und See entfernt. Sie können hier Ihre eigenen Vorstellungen verwirklichen und Ihr individuelles Traumhaus errichten. Die Stadt Ploče liegt zwischen den großen Städten Split und Dubrovnik (UNESCO) und in der Nähe der Autobahn, sodass Sie beide bequem erreichen können.
Aufregendes Projekt für Investitionen
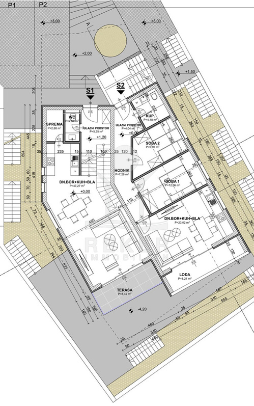
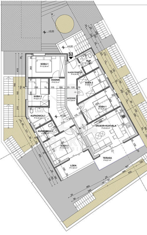
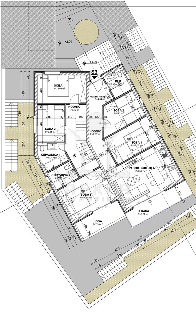
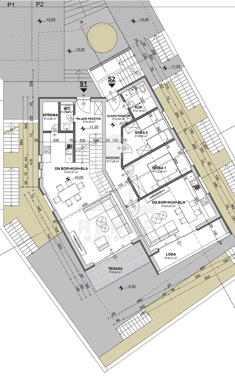
Das attraktive Grundstück bietet die perfekte Gelegenheit für Investoren. Das Anwesen verfügt über ein Projekt mit 3 Wohnungen, die jeweils über einen eigenen Eingang und Parkplatz verfügen. Eine der Wohnungen hat eine großzügige Fläche von 130 m², während die anderen beiden Wohnungen eine Größe von 65 m² haben. Zusätzlich stehen 90 m² für Freizeitflächen zur Verfügung, um den zukünftigen Bewohnern zusätzlichen Komfort zu bieten. Eine großartige Gelegenheit und ein riesiges Potenzial auf dem Mietmarkt!
Immobiliendaten
- Objektart: Grundstück
- Objekttyp: Baugrundstück
- ID: 5922
- Kaufpreis: 115.000 €
- Provision: 3,75 % inkl. MwSt. in Kroatien
- Grundstücksgröße: 450 m²
- Land: Kroatien
- Region: Dubrovnik-Neretva
- Ort: Ploće
- Meerentfernung: 600 m
Haben Sie Interesse das schöne Baugrundstück zu besitzen?
Nehmen Sie gerne Kontakt mit mir auf!
Ich bin Heiner Reker, Gründer und
Geschäftsführer von Reker Immobilien d.o.o. Ich begleite Sie bei Ihrer aufregenden Reise in die Welt der Immobilien in Kroatien.
Gerne organisiere ich persönlich mit meinen qualifizierten Partnern jeden Schritt bei Ihrem rechtssicheren und stressfreien Immobilienkauf in Kroatien.
Füllen Sie das Formular aus und ich melde mich gerne zum gewünschten Zeitpunkt bei Ihnen.
Bis bald
Exposé mitnehmen?
Laden Sie unser PDF-Exposé herunter und Sie haben die wichtigste Objektdaten & Bilder immer zur Hand
Exposé mitnehmen?
Nehmen Sie Kontakt mit uns auf, ein Exposé schicken wir gerne per E-Mail
Ihre Traum-Immobilie noch nicht gefunden?
Besuchen Sie diese Seiten!







