EXKLUSIVES BAUGRUNDSTÜCK AUF DER INSEL PAG MIT EINMALIGER TOPLAGE, MEERBLICK & BAUGENEHMIGUNG

Erstklassiges Baugrundstück auf der Insel Pag
Das exklusive Baugrundstück auf der Insel Pag befindet sich nur 200 m vom Meer entfernt und bietet eine attraktive und schöne Umgebung für Ihr Traumhaus. Die Insel Pag ist über die Pagerbrücke und verschiedene Fährverbindungen mit dem Festland verbunden, wodurch Sie eine gute Anbindung an die Region Dalmatien haben. Der beliebte Urlaubsort Novalja ist nur einen Katzensprung entfernt und bietet zahlreiche Strände, Buchten und Unterhaltungsmöglichkeiten für alle Altersgruppen. Von ruhigen Familienstränden bis hin zu lebhaften Partystränden finden Sie hier alles, was das Herz begehrt. Entlang der Uferpromenade in Novalja laden Restaurants, Konobas und Tavernen dazu ein, die lokale Küche zu genießen. Das exklusive Baugrundstück auf der Insel Pag besticht durch seine einmalige Lage und vielfältige Freizeitmöglichkeiten in der Umgebung. Hier können Sie Ihren Traum vom eigenen Haus in einer paradiesischen Umgebung verwirklichen.
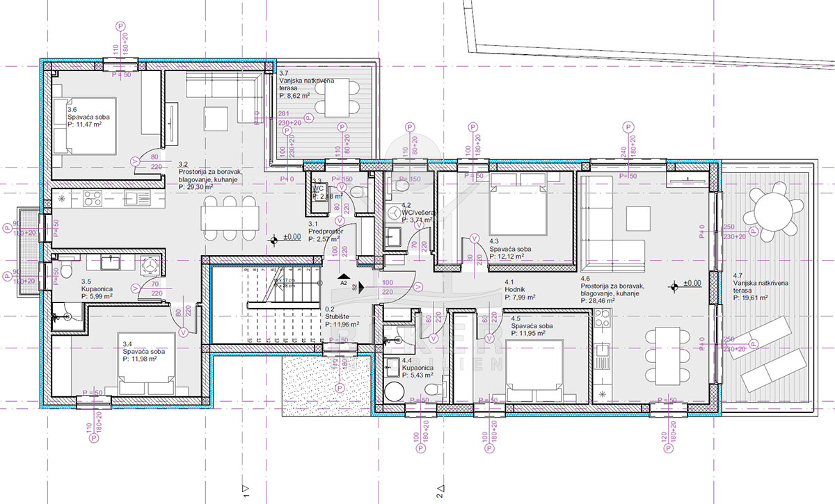
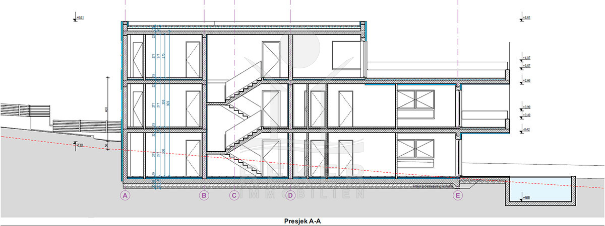
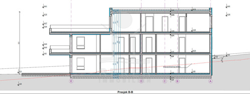
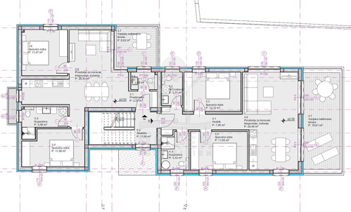
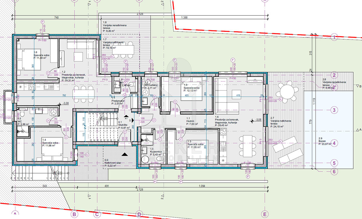
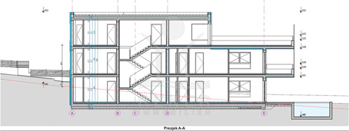
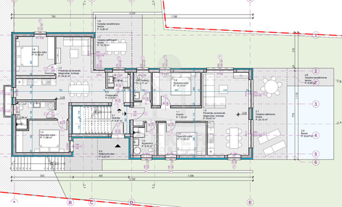
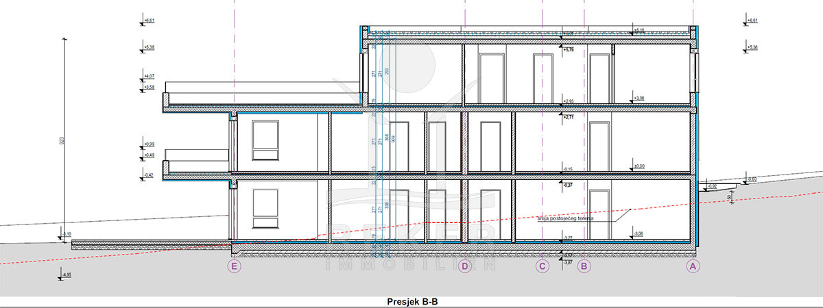
Das attraktive Grundstück bietet die Möglichkeit, ein luxuriöses dreistöckiges Gebäude mit insgesamt 5 exklusiven Wohnungen zu errichten. Mit einer Gesamtwohnfläche von 554 m² und einem großzügigen Grundstück von 985 m², das sich in einer Hanglage befindet. Das geplante Gebäude umfasst ein Erdgeschoss, ein Obergeschoss und ein zweites Obergeschoss. Es ist bereits ein beeindruckendes Architektenkonzept vorhanden, das eine modern gestaltete Wohnanlage vorsieht. Die Baugenehmigung liegt vor.
Großartiges Projekt mit Potenzial!
Das Projekt umfasst großzügige Parkmöglichkeiten für mehrere Autos, einen Pool vor der untersten Wohnung und ein luxuriöses Penthouse mit einer atemberaubenden Terrasse und Blick auf das Meer. Die Immobilie eignet sich besonders gut für die Ferienvermietung und verspricht hohe Auslastungsraten während der Saison.
Der zukünftige Investor hat die Option, alle Wohnungen einzeln zu verkaufen, das gesamte Gebäude zu veräußern oder die Wohnungen langfristig zu vermieten. Dieses Projekt bietet eine attraktive Investitionsmöglichkeit mit großem Potenzial für eine hochwertige Wohnanlage in bevorzugter Hanglage.
Das Baugrundstück erwartet Sie in Novalja!
- Ort: Novalja (Stadt)
- Einwohnerzahl: 3.663 (2011)
- Region: Dalmatien-Zadar
- Insel: Pag
- Autobahnentfernung: ca. 67 km *
- Nächster Flughafen: Zadar / ca. 98 km *

Immobiliendaten
- Objektart: Grundstück
- Objekttyp: Baugrundstück
- ID: 7357
- Kaufpreis: 375.000 €
- Provision: 3,75 % inkl. MwSt. in Kroatien
- Grundstücksgröße: 985 m²
- Land: Kroatien
- Region: Dalmatien-Zadar
- Ort: Novalja
- Lage: Ortslage
- Meerentfernung: 200 m
Haben Sie Interesse das schöne Baugrundstück zu besitzen?
Nehmen Sie gerne Kontakt mit mir auf!
Ich bin Heiner Reker, Gründer und
Geschäftsführer von Reker Immobilien d.o.o. Ich begleite Sie bei Ihrer aufregenden Reise in die Welt der Immobilien in Kroatien.
Gerne organisiere ich persönlich mit meinen qualifizierten Partnern jeden Schritt bei Ihrem rechtssicheren und stressfreien Immobilienkauf in Kroatien.
Füllen Sie das Formular aus und ich melde mich gerne zum gewünschten Zeitpunkt bei Ihnen.
Bis bald

Exposé mitnehmen?
Laden Sie unser PDF-Exposé herunter und Sie haben die wichtigste Objektdaten & Bilder immer zur Hand
Exposé mitnehmen?
Nehmen Sie Kontakt mit uns auf, ein Exposé schicken wir gerne per E-Mail
Ihre Traum-Immobilie noch nicht gefunden?
Besuchen Sie diese Seiten!