BAUGRUNDSTÜCK AUF KRK MIT 1.152 M² FÜR IHR TRAUMPROJEKT
Naturverbundenes Bauland in Njivice
Das Baugrundstück befindet sich in der malerischen Umgebung von Njivice, einem ruhigen Ferienort, der ideal für Familien und Erholungssuchende ist. In nur 500 Metern Entfernung erreichen Sie das kristallklare Meer und verschiedene Strände, darunter ein 200 m langer Sand/Kiesstrand im Zentrum. Das Ortskernzentrum von Njivice ist bequem zu Fuß erreichbar und bietet Geschäfte, Restaurants und öffentliche Verkehrsmittel in der Nähe. Die Umgebung des Baugrundstücks ist von üppigem Grün umgeben, was eine idyllische und naturnahe Atmosphäre schafft. Mit der Nähe zu verschiedenen Stränden, dem Fischerdorf Njivice und seinen kulinarischen Angeboten sowie der ruhigen Lage ist dieses Baugrundstück ein perfekter Ort, um Ihr Traumhaus zu verwirklichen.
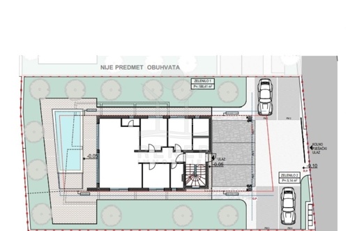
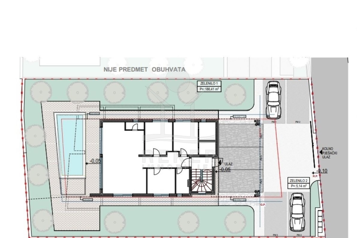
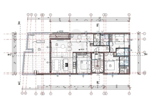
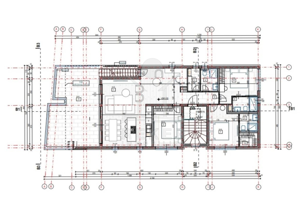
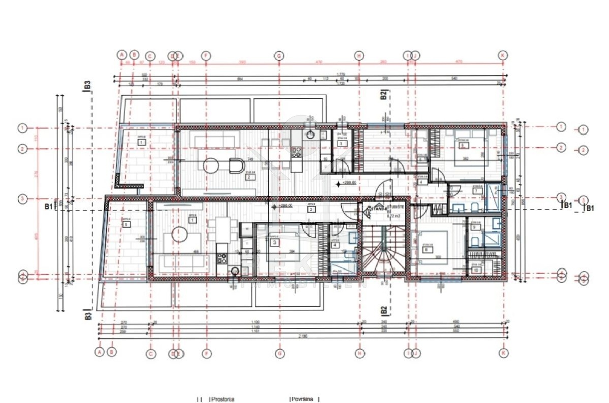
Das Baugrundstück (1.152 m²) bietet die Möglichkeit, zwei parallele Parzellen zu schaffen (A-568 m² und B-584 m²), die jeweils Platz für den Bau von zwei Gebäuden, mit Zufahrtsstraße und sämtlicher Infrastruktur, für insgesamt vier Wohneinheiten bieten. Die Gebäude können Keller-, Erdgeschoss- und zwei Etagen umfassen.
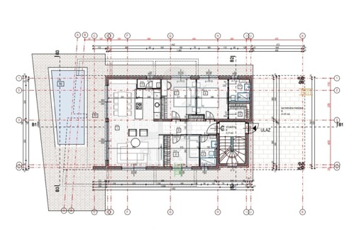
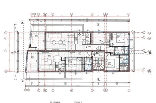
Für jedes Gebäude ist eine Nettofläche von 464,74 m² bzw. 502,04 m² vorgesehen, was ausreichend Raum für jeweils acht Wohnungen mit unterschiedlichen Schlafzimmern bietet. Die Wohnungen sind konzeptionell als Ein-, Zwei- oder Dreizimmerwohnungen geplant und verfügen über einen Wohnbereich mit Dachterrasse, Swimmingpool und Garten.
Das Baugrundstück erwartet Sie in Njivice!
- Ort: Njivice (Dorf)
- Einwohnerzahl: 1.115 (2011)
- Region: Kvarner-Bucht
- Insel: Krk
- Autobahnentfernung: ca. 13 km *
- Nächster Flughafen: Rijeka / ca. 10 km *
Immobiliendaten
- Objektart: Grundstück
- Objekttyp: Baugrundstück
- ID: 7118
- Kaufpreis: 700.000 €
- Provision: 3,75 % inkl. MwSt. in Kroatien
- Grundstücksgröße: 1152 m²
- Land: Kroatien
- Region: Kvarner-Bucht
- Ort: Njivice
- Lage: Ortslage
- Meerentfernung: 500 m
Haben Sie Interesse das schöne Baugrundstück zu besitzen?
Nehmen Sie gerne Kontakt mit mir auf!
Ich bin Heiner Reker, Gründer und
Geschäftsführer von Reker Immobilien d.o.o. Ich begleite Sie bei Ihrer aufregenden Reise in die Welt der Immobilien in Kroatien.
Gerne organisiere ich persönlich mit meinen qualifizierten Partnern jeden Schritt bei Ihrem rechtssicheren und stressfreien Immobilienkauf in Kroatien.
Füllen Sie das Formular aus und ich melde mich gerne zum gewünschten Zeitpunkt bei Ihnen.
Bis bald
Exposé mitnehmen?
Laden Sie unser PDF-Exposé herunter und Sie haben die wichtigste Objektdaten & Bilder immer zur Hand
Exposé mitnehmen?
Nehmen Sie Kontakt mit uns auf, ein Exposé schicken wir gerne per E-Mail
Ihre Traum-Immobilie noch nicht gefunden?
Besuchen Sie diese Seiten!







