DOPPELTER MEERBLICK & UNBEGRENZTE MÖGLICHKEITEN: BAUGRUNDSTÜCK MIT BAUGENEHMIGUNG AUF DER INSEL MURTER
Exklusives Baugrundstück auf der Insel Murter
Das exklusive Baugrundstück auf der traumhaften Insel Murter befindet sich in einer ruhigen und idyllischen Umgebung, nur etwa 850 Meter vom Meer entfernt. Die Insel Murter, nördlich von Sibenik gelegen, bietet eine Vielzahl von Möglichkeiten für Entspannung und Erholung. Die umliegenden Ortschaften Tisno, Jezera, Betina und Murter selbst sind idyllische Orte, geprägt von ursprünglicher Schönheit und traditionellem Lebensstil. In Murter finden Sie die notwendige Infrastruktur mit Restaurants, Geschäften und allem, was das Herz begehrt. Die Insel ist während der Saison leicht erreichbar und lockt mit einer reichen Geschichte, kulinarischen Köstlichkeiten und einer malerischen Landschaft. Die Bewohner leben hier seit Generationen vom Fischfang, der Seefahrt und der Landwirtschaft, was der Insel einen besonderen Charme verleiht. Das Baugrundstück bietet die perfekte Gelegenheit, um Ihren Traum von einem exklusiven Zuhause inmitten dieser paradiesischen Umgebung zu verwirklichen.
Grundstück mit erheblichem Baupotenzial
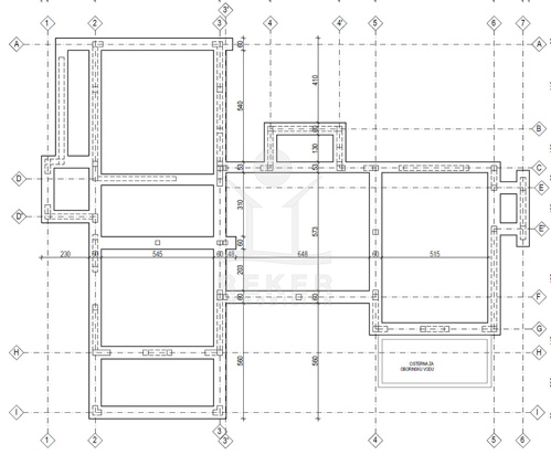
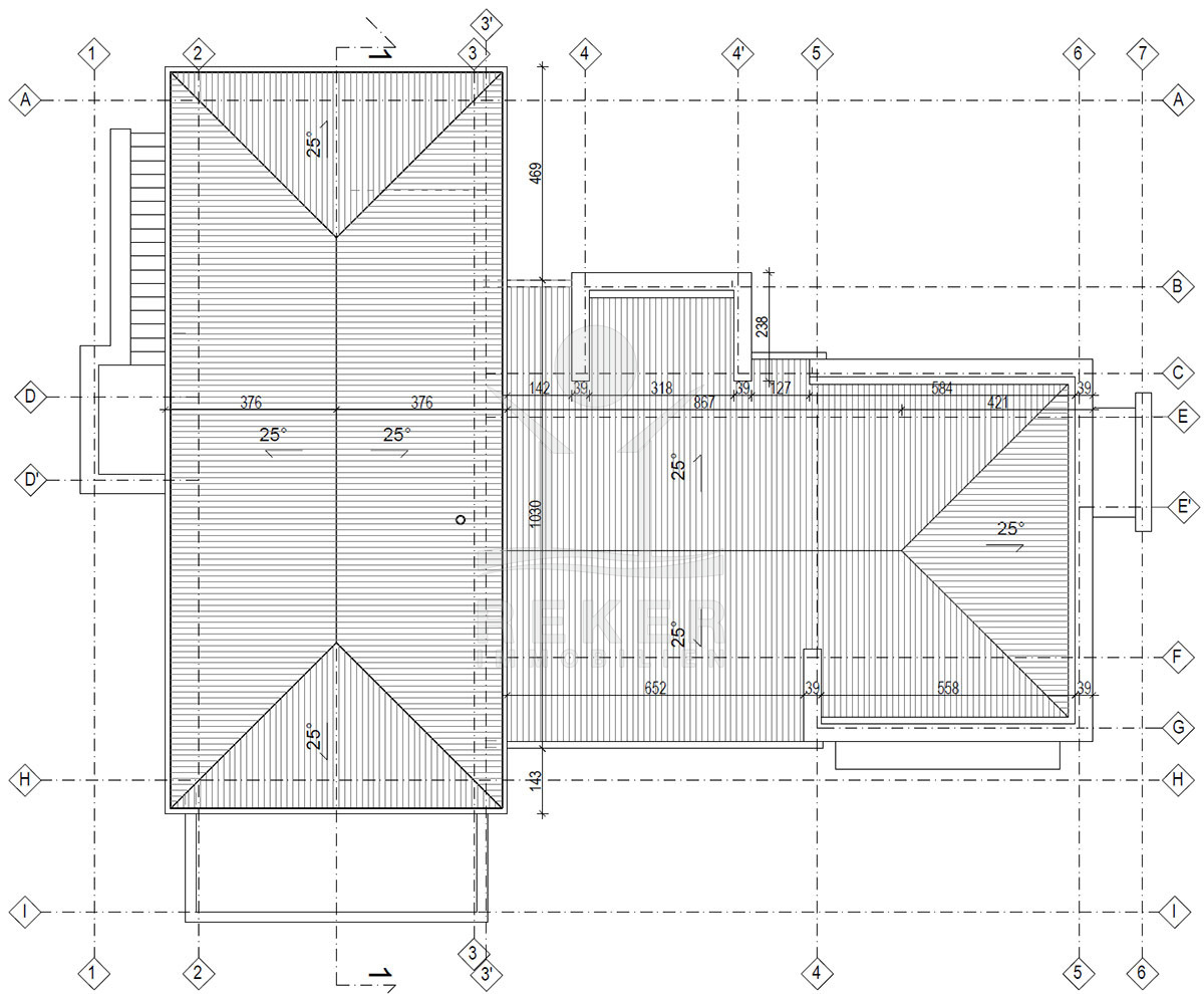
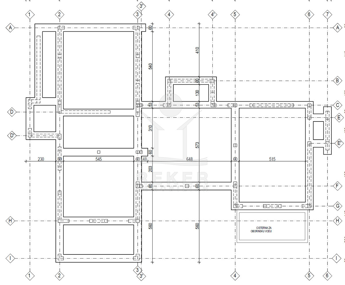
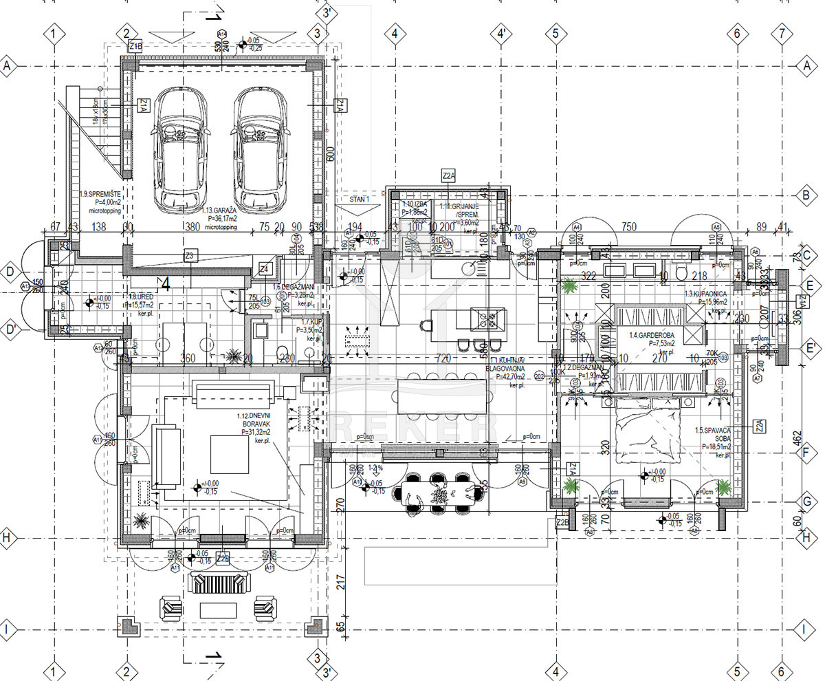
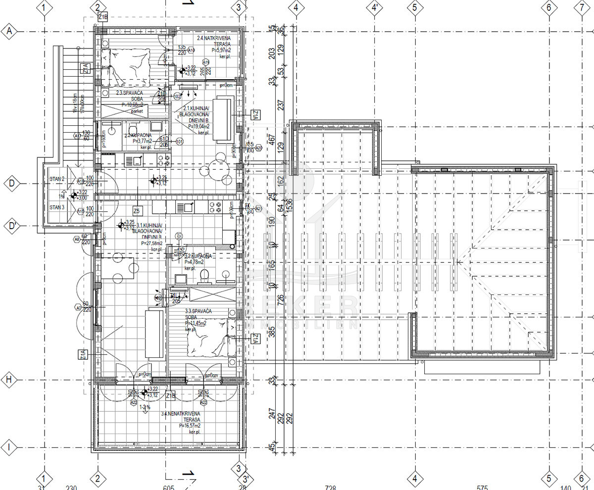
Das Baugrundstück bietet eine Gesamtfläche von ca.1.828 m², davon 1.522 m² Bauland inklusive einer vollständigen Baugenehmigung und bereits bezahlten Abgaben wie der Kommunalabgabe, Wasser, Genehmigungen und Strom. Zusätzlich verfügt es über etwa 306 m² landwirtschaftliche Fläche, auf der bis zu 10 Stellplätze geschaffen werden. Die Möglichkeit, das Grundstück zu teilen und ein zweites Baugrundstück zu schaffen, eröffnet ein enormes Potenzial für individuelle Gestaltung und Nutzung.
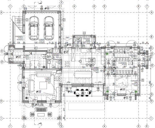
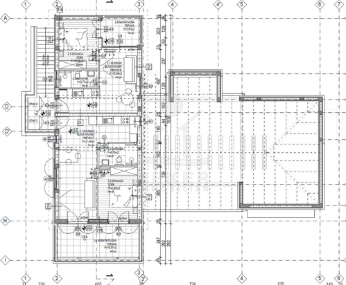
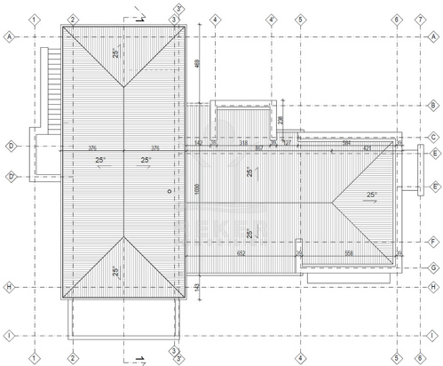
Die Möglichkeiten für dieses Baugrundstück sind vielfältig. Eine zweistöckige Villa mit einem einladenden Pool und einem großzügigen Außenbereich könnte entstehen. Der Innenraum ist so geplant, dass er ausreichend Platz für Schlafzimmer, Bäder und einen komfortablen Wohnbereich bietet. Dank der bereits vorhandenen Baugenehmigung steht dem Baubeginn nichts im Wege. Kontaktieren Sie uns gerne für weitere Informationen und lassen Sie Ihren Traum vom Eigenheim Realität werden.
Das Baugrundstück erwartet Sie in Murter!
- Ort: Murter (Gemeinde)
- Einwohnerzahl: 2.044 (2011)
- Region: Dalmatien-Sibenik
- Insel: Murter
- Autobahnentfernung: ca. 25 km *
- Nächster Flughafen: Zadar / ca. 80 km *
Immobiliendaten
- Objektart: Grundstück
- Objekttyp: Baugrundstück
- ID: 6835
- Kaufpreis: 650.000 €
- Provision: 3,75 % inkl. MwSt. in Kroatien
- Grundstücksgröße: 1922 m²
- Land: Kroatien
- Region: Dalmatien-Sibenik
- Ort: Murter
- Lage: Ortslage
- Meerentfernung: 300 m
Haben Sie Interesse das schöne Baugrundstück zu besitzen?
Nehmen Sie gerne Kontakt mit mir auf!
Ich bin Heiner Reker, Gründer und
Geschäftsführer von Reker Immobilien d.o.o. Ich begleite Sie bei Ihrer aufregenden Reise in die Welt der Immobilien in Kroatien.
Gerne organisiere ich persönlich mit meinen qualifizierten Partnern jeden Schritt bei Ihrem rechtssicheren und stressfreien Immobilienkauf in Kroatien.
Füllen Sie das Formular aus und ich melde mich gerne zum gewünschten Zeitpunkt bei Ihnen.
Bis bald
Exposé mitnehmen?
Laden Sie unser PDF-Exposé herunter und Sie haben die wichtigste Objektdaten & Bilder immer zur Hand
Exposé mitnehmen?
Nehmen Sie Kontakt mit uns auf, ein Exposé schicken wir gerne per E-Mail
Ihre Traum-Immobilie noch nicht gefunden?
Besuchen Sie diese Seiten!



















